Projekt domu Anatol 2 - plik szczegółowy

Transkrypt

Projekt domu Anatol 2 - plik szczegółowy
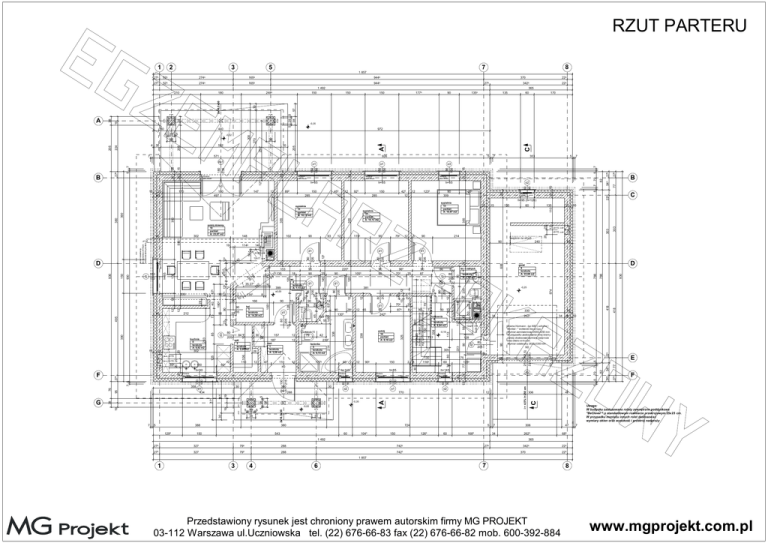
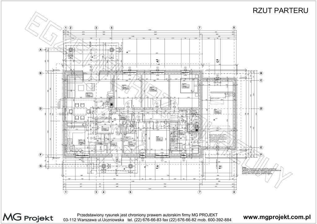
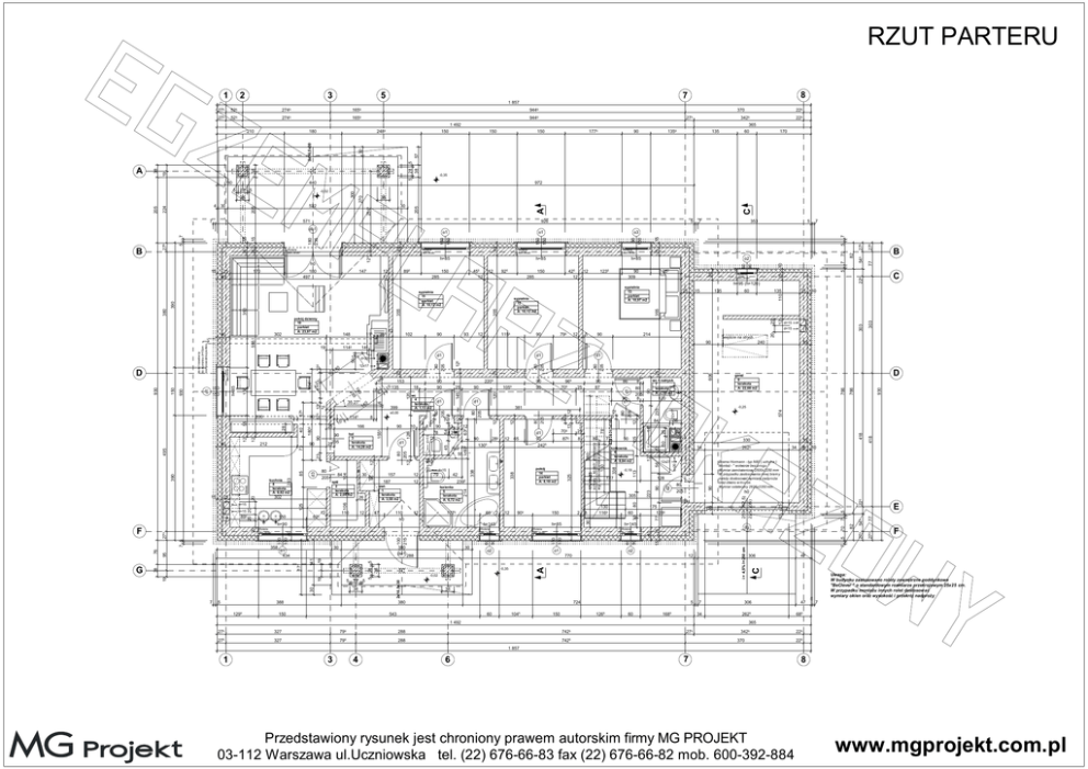
RZUT PARTERU
1
3
2
5
8
7
1 857
275
525
2745
1655
9445
275
525
2745
1655
9445
370
275
1 492
180
2485
225
365
150
150
150
1775
90
1355
135
60
170
28
38
38
19
-0,35
5
A
38
5
57
30
2x16,5x30
210
225
3425
440
972
38
5
895
150
455
12
285
12
925
150
425
12
285
12
1235
90
309
355
102
90
93
275
110
wej cie na strych
303
12
35
38
543
60
1045
150
5
1265
60
1685
7
306
34
2625
1 492
418
418
225
545
77
275
275
82
7
5
47
Uwaga:
W budynku zastosowano rolety zewn trzne poddynkowe
"BeClever " o standardowym rozmiarze przekrojowym 25x25 cm.
W przypadku monta u innych rolet dostosowa
wymiary okien oraz wysoko i przekrój nadpro y
38
724
F
7
306
C
A
12
E
5
25
90
35
h0
10
d=20
o2
380
150
10
dg
770
-0,35
930
574
25
d2
h=145
o1
766
606
12x17
235
145
12
50
12
56
90
175
1285
25
Brama Hormann - typ N80 ( uchylna )
Monta - " w otworze bez progu "
Wymiar zamówieniowy 2500x2250 mm
W przypadku zastosowania innej bram y
nale y dostosowa wymiary nadpro a
oraz otworu w m urze.
Wymiar ostateczny 2625x2350 mm
i = 4,5% l=250 cm
5
2x16,5x30
5 28
766
90
d1
60
Roleta
BeClever
150
150
o2
288
80
130
1165
34
250 (262,5)
225 (235)
8
80
205
35
2625
70
h=85
Roleta
BeClever
90
60
30
2
12x27
77
150
330
34
25
905
36
128
40
12
D
gara
9
terakota
A: 22,68 m2
-0,25
5
19
240
15
2
28 5
38
19
141
380
dw1
338
150
305
60
100
215
30
177
-0,19
30
1775
90
kot ownia
6
terakota
A: 8,84 m2
380
2395
12
7
223
80
wc + natrysk
7
terakota
A: 2,55 m2
84
12
78
8
325
pokój
14
parkiet
A: 8,18 m2
h=145
388
1295
d=15
120
115
875
60
90
110
h0
80
205
8
205
12
13
65
338
42
azienka
5
terakota
A: 6,72 m2
80
12
25
80
205
12
12
338
79
12
8
113
285
17x19x25
schody - konstr. drewniana
wg. opracowania wykonawcy
90
1305
25
30
47
25
80
205
80
205
25
8
705
d1
90
2425
40
12
86
120
12
12
Roleta
BeClever
171
90
87
25
12
12
sie
1
terakota
A: 3,58 m2
26
110
30
5
10
355
214
90
d1
80
205
13
31
80
205
157
187
965
705
55.31°
12
12
30
1055
145
90
78
d=15
96
104
8
150
150
7 5
90
-0,02
7
25
d1
90
90
635
6
45
d1
125
80
12
205
25
80
10
40
20
275
5
106
125
12
o1
434
38
76
Roleta
BeClever
358
95
12
d1
54
hol
3
terakota
A: 14,28 m2
84
205
625
19
G
795
381
12
90
90
112
166
25
h=90
F
90
2205
d1
8
23
80
d3
85
20
205
25
81
6
399
d=15
90
73
5
10
90
235
25
90
302
20 20
18
wc
4
terakota
A: 1,13 m2
128
675
40
25
1145
spi
2
terakota
A: 2,04 m2
150
90
90
±0,00
85
1805
28
90
0
14
1555
1045
81
35.27°
153
10 135
120
6
5
283
390
895
1155
d1
50
12x17
0
14
675 135
150
212
495
12
12
55
12
d=15
d=15
12
d1
23
kuchnia
8
terakota
A: 8,92 m2
25
135
145
605
1145
105
Roleta
BeClever
h=85
200
15
60
d=15
12
214
19
125
40
135
20
115
18 d=20
150
150
15
90
555
kana nawiewny
do kominka d=15cm
pod posadzka parteru
o1
150
930
148
0
14
5
23
930
D
302
25
C
20
40
pokój dzienny
10
parkiet
A: 23,97 m2
sypialnia
12
parkiet
A: 10,12 m2
355
355
350
390
380
sypialnia
11
parkiet
A: 10,12 m2
545
7
10
Roleta
BeClever
h=95 (h=120)
sypialnia
13
parkiet
A: 10,97 m2
77
70
955
225
12
12
B
303
147
82
25
o2
h=85
275
7
5
90
150
150
Roleta
BeClever
h=85
60
90
180
497
7
5
170
353
25
25
40
Roleta
BeClever
h=85
7
o3
35
15
40
150
150
40
h0
5
o1
Roleta
BeClever
125
Roleta
BeClever
25
25
o1
180
235
15
15
7
5
275
B
C
926
db1
15
571
150
7
30
2515
532
205
224
205
38
4 30
A
-0,02
205
5
300
5 28
270
80
47
5
7
685
365
275
327
795
288
7425
275
327
795
288
7425
275
3425
370
225
225
1 857
1
3
4
6
7
Przedstawiony rysunek jest chroniony prawem autorskim firmy MG PROJEKT
03-112 Warszawa ul.Uczniowska tel. (22) 676-66-83 fax (22) 676-66-82 mob. 600-392-884
8
www.mgprojekt.com.pl
RZUT STRYCHU
1
3
2
5
8
7
1 982
75
1025
525
35
24
525
75
24
2745
1655
2745
1655
9445
56
370
8885
552
275
725
75
2675
991
225
290
50
50
525
365
49
50
3005
198
3005
75
461
186
14
36
284
14
332
601
9
9
80
216
25
15
25
15
77
32
45
50
50
10
225
25
330
89
140
101
25
10
50
25
10
50
40
303
300
up drew.
14x14 cm
766
696
1855
h=50 cm
49
225
77
F
1025
50
45
50
32
25
50
50
1025
25
10
675
40
75
E
69
95
1225
49
G
418
40
10
216
418
373
75
9
36
30
40
30
40
40
25
80
ciana z g-k
186
9
282
207
78
ciana z g-k
419
78
118
78
118
79
466
395
1 098
180
strych nieu ytkowy
wyk adz adzina
A: 6,27 m2
pow. pod ogi
A: 22,97 m2
15
275
15
h=180 cm
235
14
845
365
405
25
78
25
±2,68
O-5
h=50 cm
F
314
strych
wyk adz adzina
A: 56,51 m2
pow. pod ogi
A: 115,64 m2
607
265
14
up drew.
14x14 cm
O-5
40
3635
atew 14x24 l=1642
495
h=180 cm
D
75
14
up drew.
14x14 cm
17x19x25
385
190
418
14
up drew.
14x14 cm
40
40
Uwaga:
drzwi niestandardowe
80/205 (70/200)
±3,07
131
3075
wej cie na strych
schody - konstr. drewniana
wg. opracowania wykonawcy
14
atew 14x24 l=1642
850
120
h=67
o4
120
100
25
Roleta
BeClever
25
15
up drew.
14x14 cm
70
55
up drew.
14x14 cm
1 278
h=180 cm
50
Nadpro e N5
25
120
120
875
D
1 347
540
40
14
303
1 412
454h=180 cm
h=50 cm
253
25
C
O-5
1855
25
15
448
78
118
15
78
78
118
75
70
O-5
365
405
380
78
305
738
B
675
25
h=50 cm
50
50
10
40
40
30
40
40
B
25
275
15
75
2205
2515
198
A
365
75
75
378
275
1025
327
200
235
327
56
200
789
288
795
56
6865
288
50
290
275
7425
75
2675
50
225
370
Uwaga:
W budynku zastosowano rolety zewn trzne poddynkowe
"BeClever " o standardowym rozmiarze przekrojowym 25x25 cm.
W przypadku monta u innych rolet dostosowa
wymiary okien oraz wysoko i przekrój nadpro y
50
725
1 982
1
3
4
6
7
Przedstawiony rysunek jest chroniony prawem autorskim firmy MG PROJEKT
03-112 Warszawa ul.Uczniowska tel. (22) 676-66-83 fax (22) 676-66-82 mob. 600-392-884
8
www.mgprojekt.com.pl
PRZEKRÓJ
84 14
1475
295
14x14
7x15
35
B-B
5
A-A
15
7x12
1495
12
14
12
1495
355
elementy ozdobnego krzy aka
atew 14x14
+7,10
+6,64
24
+6,06
24
+6,21
5,0
5,0
2,5
dachówka ceramiczna ***
aty 5x6 cm
kontr aty 2,5 x 5 cm
folia wiatrochronna paroprzepuszczalna do zewn trz
20,0 krokwie 7x20 cm / we na ** 20+5 cm
5,0 p yty g-k na stela u stalowym + folia paroizolacyjna
paroprzepuszczalna do wewn.
+6,21
B-B
+6,40
15
tka 7x15
+6,64
+6,80
14
+6,80
445
+7,00
tka 7x15
atew 14x14
+5,76
+5,55
155
24 295
posadzka - parkiet / terakota
szlichta zbr. siatk #3 co 15 cm nadpro owieniec
1x folia PE 0,2 mm
25x25 cm
17,0 styropian *
16,0 strop monolityczny wylewany
tynk cement.-wapienny
Roleta
BeCleve
25x25
5
30
20
10
361
±0.00
-0.35
95
awa fundamentowa
h= 40 cm
+ podk ad chudobetonowy 10cm
235
250
70
85
2,0 posadzka
6,0 szlichta zbr. #3 co 15 cm
15,0 styropian *
3x folia PE 0,2 mm
15,0 podkad chudobetonowy
piasek zag szczony do gruntu rodzimego
okadzina podmurówki
- ceg a klinkierowa
( system mocowania,
odwadniania i wentylacji
- zgodny z technologi Habe
- lub równorz dn )
up S1
225
10
325
folia kube kowa
12,0 ciana z bloczków betonowych gr. 12 cm
na zapr. cement.
15,0 styropian *
izol. przeciwwilgociowa - prepar. nufoflex 2x
tynk cement. - szpryc kl. I
24,0 ciana z bloczków betonowych gr. 24 cm
na zapr. cement .
stopa fund. Z1
40
135
498
40
135
15
-1.35
25
150
269
tynk cienkowarstwowy ****
15,0 styropian *
25,0 ciana z porothermu 25P+W
na zapr. cementowo-wap.
tynk cementowo-wap.
38
15 6
2
19
85
135
-0.95
Roleta
BeCleve
25x25
ok adzina zewn trzna
- p ytki klinkierowe
-0.02
40
folia kube kowa
12,0 ciana z bloczków betonowych gr. 12 cm
na zapr. cement.
15,0 styropian *
izol. przeciwwilgociowa - prepar. nufoflex 2x
32510
225
tynk cement. - szpryc kl. I
24,0 ciana z bloczków betonowych gr. 24 cm
na zapr. cement .
awa fundamentowa
h= 40 cm
+ podk ad chudobetonowy 10cm
posadzka w kot owni
-0,19
+2,76
25
2,0
5,0
205
nadpro e N1
95
35
±0.00
125
14
29
38
25 345 25
25 30
wieniec 25x25
+2,66
7x15
16
2905
100
299
2445
9
34
25
poz.01
( 25x34 )
atew 14x30
atew 14x25
+3,01
5
-0.02
-0.35
+2.35
+0.70
5
+3,19
poz.02
( 25x25 )
235
269
+0.85
70
okadzina podmurówki
- ceg a klinkierowa
( system mocowania,
odwadniania i wentylacji
- zgodny z technologi Habe
- lub równorz dn )
150
Roleta
BeCleve
25x25
a
ian wcy
wn a
r e on
. d w yk
r
t
s a
on ni
:
ok - k owa
id y
W hod pr ac
sc . o x25
wg x19
17
39
+2,69
nadpro owieniec
25x25 cm
+4,26
krokiew 7x20
up 14x14
mur ata 14x14 cm +
kotwy M12 co 100 cm
+3,33
16
22 29
+2,85
+4,50
atew 14x24
+3,74
205
+2.64
up drew.
14x14
+3.07
16
7x15
+2,86
9 16 95
25
25
14
+3,33
+4,95
+4,74
nadpro e N5
100
up drew.
14x14
2695
atew 14x24
Roleta
BeCleve
25x25
+3,19
+3,01
25 25
+4,99
wymian 7x20
wymian 7x20
67
mur ata 14x14 cm +
kotwy M12 co 100 cm
wieniec 25x25
atew 14x24
-0.95
-1.35
awa fundamentowa
h= 40 cm
+ podk ad chudobetonowy 10cm
* proponowane rodzaje styropianu w zale no ci od miejsca zastosowania:
1. balkon/pod oga (w tym na gruncie) - "Termo Organika dach - pod oga"
2. dach / stropodach - "Termo Organika dach - pod oga"
3. ciany zewn trzne - "Termo Organika fasada"
4. fundamenty
- "Termo Organika fundament"
dla budynków o podwy szonej energooszcz dno ci:
1. balkon/pod oga (w tym na gruncie) "Termo Organika Termonium dach - pod oga"
2. ciany zewn trzne - "Termo Organika Termonium Plus fasada"
3. fundamenty
- "Termo Organika Termonium fundament"
** proponowana we na mineralna/szklana w zale no ci
od miejsca zastosowania:
"We na Knauf Insulation w Ecose Technology"
1. dach sko ny - Classic 032; Classic 039; Unifit 035; Unifit 039
2. strop drewniany - Classic 039; Classic 044
3. fasada wentylowana - TP 116 ; TP 435 B; TP 425 B ; TPM 135
*** proponowane rodzaje pokrycia dachowego
(w projekcie przyj to obci enie dachówk ceramiczn ):
1. "Dachówka ceramiczna Creaton"
2. "Dachówka cementowa Euronit"
3. Blacho-dachówka
4. Blacha p aska, czona listwowo
**** kompletny system ocieple Termo Organika
***** deska elewacyjna Cedral
****** w razie zmiany materia u np. na styropian lub we
mineraln
grubo ocieplenia dostosowa do obowi zuj cych przepisów
Przedstawiony rysunek jest chroniony prawem autorskim firmy MG PROJEKT
03-112 Warszawa ul.Uczniowska tel. (22) 676-66-83 fax (22) 676-66-82 mob. 600-392-884
www.mgprojekt.com.pl
155
PRZEKRÓJ
14
D-D
83
C-C
5
15
7x12
7x15
35
1465
245
5
14x14
148
14
12
12
148
35
elementy ozdobnego krzy aka
+7,10
+7,00
155
155
D-D
+6,80
+5,54
+5,39
585
15
2125
16
7x15
nadpro e/wieniec
25x38 poz.03a
Roleta
BeCleve
25x25
tynk cienkowarstwowy silikatowy
10,0 styropian "sciana"
25,0 ciana z porothermu 25P+W
na zapr. cementowo-wap.
tynk cementowo-wap.
90
2695
2575
205
+2,48
25
szlichta zbr. siatk #3 co 15 cm
1x folia PE 0,2 mm
15,0 styropian *
16,0 strop monolityczny wylewany
10,0 docieplenie styropian *
tynk cienkowarstwowy****
25
5,0
+2,62
385
5
15
14
16
+2,68
16
+2,32
+1,86
2345
15
±0,00
325
5 275
awa fundamentowa
h= 40 cm
+ podk ad chudobetonowy 10cm
folia kube kowa
10,0 styropian *
izol. przeciwwilgociowa - prepar. nufoflex 2x
tynk cement. - szpryc kl. I
24,0 ciana z bloczków betonowych gr. 24 cm
na zapr. cement .
5,0 styrodur
95
-0,35
110
okadzina podmurówki
- ceg a klinkierowa
( system mocowania,
odwadniania i wentylacji
- zgodny z technologi Habe
- lub równorz dn )
40
-1,35
-0,52
40
40
-0,95
83
110
stopa fund. Z1
80
6
-0,37
70
346
35
-0,27
2
-0,25
25
-0,02
-0,19
-0,35
10
-0,02
25
70
95
5
15
145
±0,00
23
N1
Brama Hormann - typ N80 ( uchylna )
Monta - " w otworze bez progu "
Wymiar zamówieniowy 2500x2250 mm
W przypadku zastosowania innej bram y
nale y dostosowa wymiary nadpro a
oraz otworu w m urze.
Wymiar ostateczny 2625x2350 mm
up S1
215
7x15
+2,14
+2,48
16
14
225 16
14
h=50 cm
+2,36
44
15
90
Roleta
BeCleve
25x25
nadpro e/wieniec
25x39 poz.03
ok adzina zewn trzna
- p ytki klinkierowe
361
wy az na strych
+2,51
N2
mur ata 14x14 cm +
kotwy M12 co 100 cm
2325
mur ata 14x14 cm +
kotwy M12 co 100 cm
h=180 cm
2325
+3,73
atew 14x30
215
+4,81
krokiew 7x20
30
25
+2,66
+4,95
+3,97
41
+2,81
dachówka ceramiczna ***
aty 5x6 cm
tka 7x15
25
+3,01
20
atew 14x20
+4,41
5,0
5,0
+4,96 2,5 kontr aty 2,5 x 5 cm
folia wiatrochronna paroprzepuszczalna do zewn trz
20,0 krokwie 7x20 cm
+4,26
5
24 295
up 14x14
+4,41
15
atew 14x24
72
155
14 245
5
atew 14x14
2,0 posadzka
10,0 p yta betonowa B15 zbr. siatk #8 co 15
folia izolac. PE 0,3 mm x 3
15,0 podk ad betonowy B12,5
piasek zag szczony do g boko ci gruntu
rodzimego
275
5 325
awa fundamentowa
h= 40 cm
+ podk ad chudobetonowy 10cm
folia kube kowa
ciana z bloczków betonowych gr. 12 cm
na zapr. cement.
10,0 styropian *
izol. przeciwwilgociowa - prepar. nufoflex 2x
tynk cement. - szpryc kl. I
24,0 ciana z bloczków betonowych gr. 24 cm
na zapr. cement .
12,0
* proponowane rodzaje styropianu w zale no ci od miejsca zastosowania:
1. balkon/pod oga (w tym na gruncie) - "Termo Organika dach - pod oga"
2. dach / stropodach - "Termo Organika dach - pod oga"
3. ciany zewn trzne - "Termo Organika fasada"
4. fundamenty
- "Termo Organika fundament"
dla budynków o podwy szonej energooszcz dno ci:
1. balkon/pod oga (w tym na gruncie) "Termo Organika Termonium dach - pod oga"
2. ciany zewn trzne - "Termo Organika Termonium Plus fasada"
3. fundamenty
- "Termo Organika Termonium fundament"
** proponowana we na mineralna/szklana w zale no ci
od miejsca zastosowania:
"We na Knauf Insulation w Ecose Technology"
1. dach sko ny - Classic 032; Classic 039; Unifit 035; Unifit 039
2. strop drewniany - Classic 039; Classic 044
3. fasada wentylowana - TP 116 ; TP 435 B; TP 425 B ; TPM 135
*** proponowane rodzaje pokrycia dachowego
(w projekcie przyj to obci enie dachówk ceramiczn ):
1. "Dachówka ceramiczna Creaton"
2. "Dachówka cementowa Euronit"
3. Blacho-dachówka
4. Blacha p aska, czona listwowo
**** kompletny system ocieple Termo Organika
***** deska elewacyjna Cedral
****** w razie zmiany materia u np. na styropian lub we
mineraln
grubo ocieplenia dostosowa do obowi zuj cych przepisów
Przedstawiony rysunek jest chroniony prawem autorskim firmy MG PROJEKT
03-112 Warszawa ul.Uczniowska tel. (22) 676-66-83 fax (22) 676-66-82 mob. 600-392-884
www.mgprojekt.com.pl
ELEWACJE
ELEWACJA FRONTOWA :
ELEWACJA TYLNA :
Przedstawiony rysunek jest chroniony prawem autorskim firmy MG PROJEKT
03-112 Warszawa ul.Uczniowska tel. (22) 676-66-83 fax (22) 676-66-82 mob. 600-392-884
www.mgprojekt.com.pl
ELEWACJE
ELEWACJA BOCZNA :
ELEWACJA BOCZNA :
Przedstawiony rysunek jest chroniony prawem autorskim firmy MG PROJEKT
03-112 Warszawa ul.Uczniowska tel. (22) 676-66-83 fax (22) 676-66-82 mob. 600-392-884
www.mgprojekt.com.pl