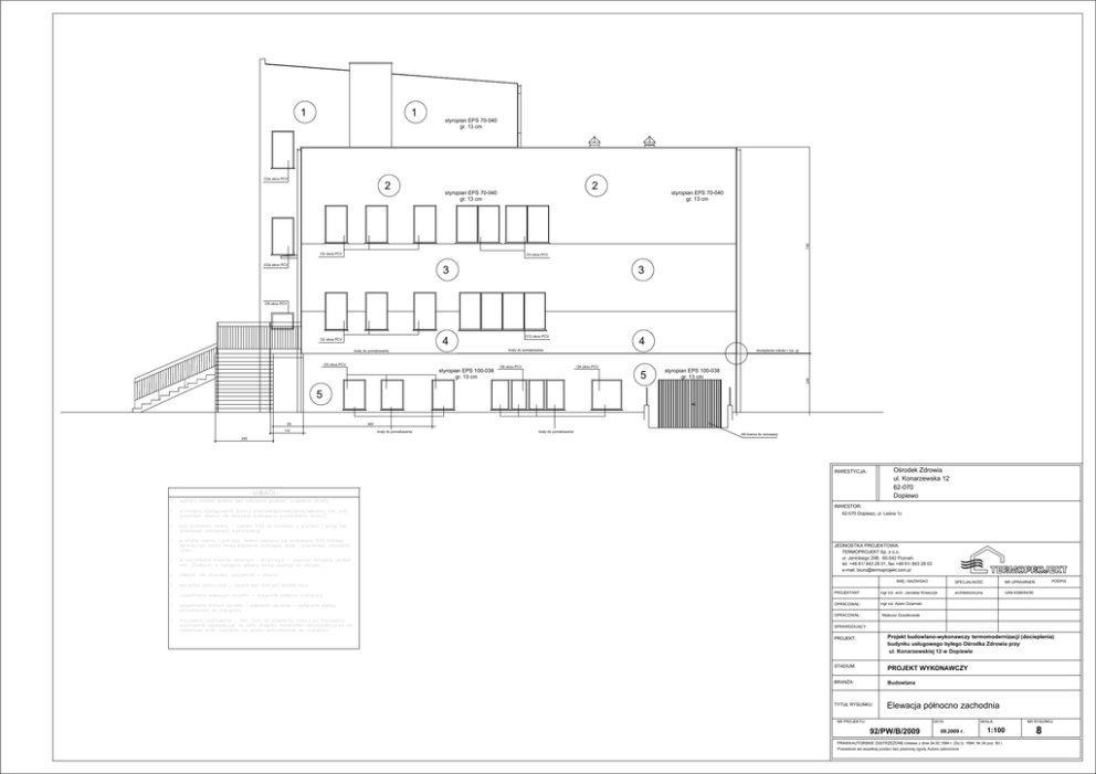
Elewacja północno zachodnia

Transkrypt

Elewacja północno zachodnia
1
1
O2a okno PCV
2
styropian EPS 70-040
gr. 13 cm
styropian EPS 70-040
gr. 13 cm
750
2
styropian EPS 70-040
gr. 13 cm
O2 okna PCV
O3 okna PCV
O2a okno PCV
3
3
O9 okno PCV
O12 okno PCV
4
kraty do pomalowania
kraty do pomalowania
O5 okna PCV
styropian EPS 100-038
gr. 13 cm
O6 okno PCV
docieplenie cokołu ( rys. g)
O4 okno PCV
5
styropian EPS 100-038
gr. 13 cm
240
4
O2 okna PCV
5
89
110
460
kraty do pomalowania
kraty do pomalowania
A8 brama do renowacji
255
Ośrodek Zdrowia
ul. Konarzewska 12
62-070
Dopiewo
INWESTYCJA:
UWAGI
·
wymiary stolarki podano bez odliczania grubości ocieplenia ościeży
·
w miejscu występowania izolacji przeciwwilgociowej/przeciwwodnej (np. pod
poziomem terenu) nie stosować kołkowania (uszkodzenia izolacji)
·
pod poziomem terenu - system BSO do kontaktu z gruntem i wodą, lub
dodatkowo zastosować hydroizolację
·
w strefie cokołu i pod poz. terenu zabrania się stosowania BSO którego
warstwy lub siatka mogą kapilarnie podciągać wodę i powodować odpadanie
tynku
·
w narożnikach otworów okiennych i drzwiowych - wykonać zbrojenie ukośne
min. 20x40cm, a następnie główną siatkę wywinąć na ościeża
·
UWAGA: nie stosować uszczelnień z silikonu
·
wszystkie spoiny płyt - czyste bez żadnych śladów kleju
INWESTOR:
JEDNOSTKA PROJEKTOWA:
TERMOPROJEKT Sp. z o.o.
ul. Janickiego 20B, 60-542 Poznań,
tel. +48 61/ 843 28 01, fax +48 61/ 843 28 03
e-mail: [email protected]
IMIĘ i NAZWISKO
·
uzupełnienie większych szczelin - wyłącznie paskami styropianu
·
uzupełnienie małych szczelin i głębokich ubytków - wyłącznie pianką
poliuretanową do styropianu
·
62-070 Dopiewo, ul. Leśna 1c
mocowanie rusztowania - min. 2cm od ocieplenia, otwory po mocowaniu
rusztowania zabezpieczyć na całej długości materiałem termoizolacyjnym np.
systemowe kołki rozprężne lub pianka poliuretanowa do styropianu
PROJEKTANT:
mgr inż. arch. Jarosław Krawczyk
OPRACOWAŁ:
mgr inż. Adam Dziamski
OPRACOWAŁ:
Mateusz Grześkowiak
SPECJALNOŚĆ
NR UPRAWNIEŃ
architektoniczna
UAN-9386/64/90
PODPIS
SPRAWDZAJĄCY:
PROJEKT:
Projekt budowlano-wykonawczy termomodernizacji (docieplenia)
budynku usługowego byłego Ośrodka Zdrowia przy
ul. Konarzewskiej 12 w Dopiewie
STADIUM:
PROJEKT WYKONAWCZY
BRANŻA:
Budowlana
TYTUŁ RYSUNKU:
Elewacja północno zachodnia
DATA:
NR PROJEKTU:
92/PW/B/2009
09.2009 r.
SKALA:
1:100
PRAWA AUTORSKIE ZASTRZEŻONE-Ustawa z dnia 04.02.1994 r. (Dz.U. 1994. Nr 24 poz. 83 )
Powielanie we wszelkiej postaci bez pisemnej zgody Autora zabronione
NR RYSUNKU:
8