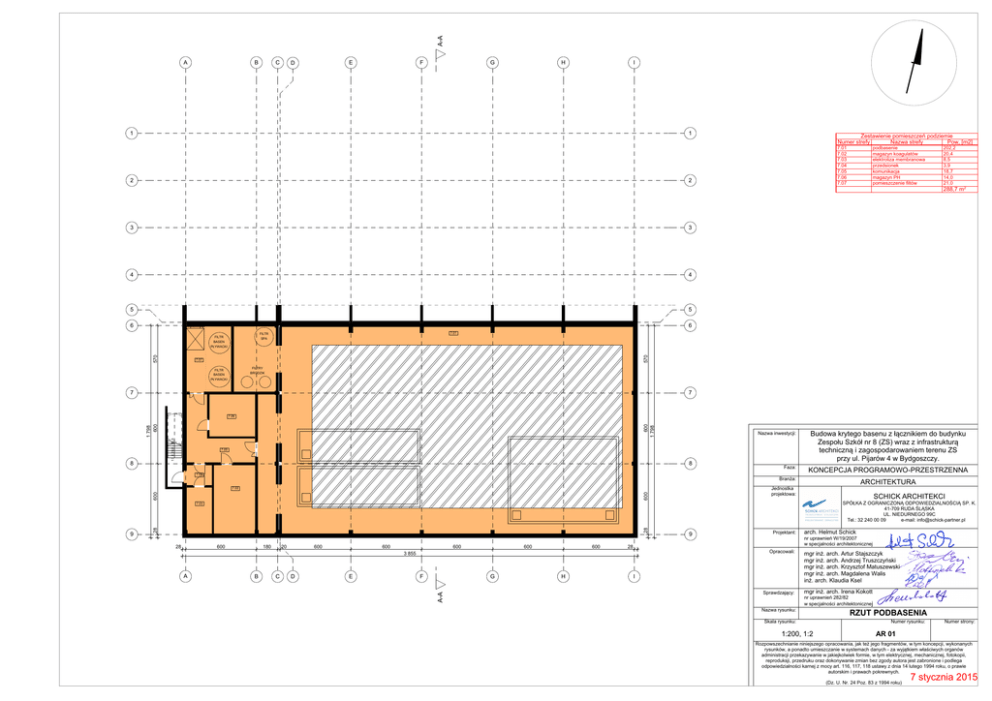
Rzut podbasenia

Transkrypt

Rzut podbasenia
A-A
A
B
C
E
D
F
G
H
I
1
1
2
Zestawienie pomieszczeń podziemie
Numer strefy
Nazwa strefy
Pow, [m2]
7.01
7.02
7.03
7.04
7.05
7.06
7.07
2
3
3
4
4
5
5
6
podbasenie
magazyn koagulatów
elektroliza membranowa
przedsionek
komunikacja
magazyn PH
pomieszczenie filtów
202,2
20,4
8,5
3,9
18,7
14,0
21,0
288,7 m2
6
570
570
7.01
FILTR
SPA
FILTR
BASEN
PŁYWACKI
7.07
FILTRY
BRODZIK
FILTR
BASEN
PŁYWACKI
7
7
600
1 798
13 X 20,0 / 20,5
1 798
600
7.06
8
Nazwa inwestycji:
7.05
8
7.04
Faza:
Budowa krytego basenu z łącznikiem do budynku
Zespołu Szkół nr 8 (ZS) wraz z infrastrukturą
techniczną i zagospodarowaniem terenu ZS
przy ul. Pijarów 4 w Bydgoszczy.
KONCEPCJA PROGRAMOWO-PRZESTRZENNA
Branża:
600
600
ARCHITEKTURA
Jednostka
projektowa:
7.02
SCHICK ARCHITEKCI
SPÓŁKA Z OGRANICZONĄ ODPOWIEDZIALNOŚCIĄ SP. K.
41-709 RUDA ŚLĄSKA
UL. NIEDURNEGO 99C
e-mail: [email protected]
Tel.: 32 240 00 09
28
28
600
180
20
600
600
600
600
600
28
A
B
C
D
E
F
G
H
9
Projektant:
arch. Helmut Schick
nr uprawnień W/19/2007
w specjalności architektonicznej
Opracowali:
3 855
A-A
9
28
7.03
I
Sprawdzający:
mgr inż. arch. Artur Stajszczyk
mgr inż. arch. Andrzej Truszczyński
mgr inż. arch. Krzysztof Matuszewski
mgr inż. arch. Magdalena Walis
inż. arch. Klaudia Ksel
mgr inż. arch. Irena Kokott
nr uprawnień 282/82
w specjalności architektonicznej
Nazwa rysunku:
Skala rysunku:
1:200, 1:2
RZUT PODBASENIA
Numer rysunku:
Numer strony:
AR 01
Rozpowszechnianie niniejszego opracowania, jak też jego fragmentów, w tym koncepcji, wykonanych
rysunków, a ponadto umieszczanie w systemach danych - za wyjątkiem właściwych organów
administracji przekazywanie w jakiejkolwiek formie, w tym elektrycznej, mechanicznej, fotokopii,
reproduksji, przedruku oraz dokonywanie zmian bez zgody autora jest zabronione i podlega
odpowiedzialności karnej z mocy art. 116, 117, 118 ustawy z dnia 14 lutego 1994 roku, o prawie
autorskim i prawach pokrewnych.
(Dz. U. Nr. 24 Poz. 83 z 1994 roku)
7 stycznia 2015