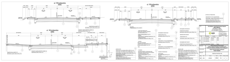
14011_PAB_przekroje

Transkrypt

14011_PAB_przekroje
chodnik
jezdnia
zmienna
0.50
2.00
5.00
0.40
1.00
3.00
skarpa
zmienna
5.00
3.50
0.40
zjazd przez cie¿kŒ rowerow„
3.50
0.95
pobocze
chodnik
2.00
0.50
2.75
0%
2,
3.50
1.50
0%
2,
5
1,
1:
2,
0%
humus 15cm
obsianie traw„
3.50
0.95
2.00
1.50
0.20
0%
.5,
max
0%
2,
chodnik
0.50
bitumiczna tama
2,
0%
cie¿ka rowerowa
0%
2,
pobocze skarpa
5.00
3.00
9
uszczelniaj„ca 40x5mm
opaska
1.00
0.50
zmienna
0.20
8
ZATOKA AUTOBUSOWA
bitumiczna tama
+ 0.00 (niweleta)
uszczelniaj„ca 40x5mm
0%
2,
2,
0%
5
1,
1:
0%
2,
kostka kamienna 18 x 20 cm ciŒta p‡omieniowana
0%
2,
8,
0%
1:
1,
5
warstwa wi„¿„ca - podsypka cementowo-piaskowa 1:3 gr. 5 cm
humus 15cm
obsianie traw„
podbudowa - beton cementowy C20/25; gr. 22 cm
doprowadzenie pod‡o¿a do grupy nonoci pod‡o¿a G-1
1.
15
humus 15cm
obsianie traw„
o ni
wel
et
yj
ezdni
0.55
+ 0.00 (niweleta)
jezdnia
5.00
zmienna
2,
0%
jezdnia
ul. Wroc‡awska
KR5
0.
01
pobocze
o ni
wel
et
yj
ezdni
skarpa
ul. Wroc‡awska
KR5
jezdnia
3
9
2
1
grunt stabilizowany cementem Rm=2,5 MPa; gr. 15 cm
6
3
7
1
4
krawŒ¿nik betonowy na p‡ask 20 x 30
5
3
2
0.30
Inwestor
‡awa betonowa z oporem z betonu C12/15 gr. 15 cm
Podsypka piaskowa; gr. 10 cm o Is= 0,95
5
KRAW˚flNIK PERONOWY
zjazd indywidualny
jezdnia
ul. Wroc‡awska
KR5
krawŒ¿nik bet. najazdowy 20x22x100 cm (wiat‡o 4 cm)
ZJAZD INDYWIDUALNY
‡awa betonowa z betonu C12/15 gr. 15 cm
jezdnia
Gmina Wa‡brzych - Zarz„d Drg, Komunikacji i Utrzymania
Miasta w Wa‡brzychu
Dren DN100
zatoka autobusowa
9
krawŒ¿nik peronowy (kamienny)
kostka z betonu prasowanego z wype‡nieniem
peron autobusowy / chodnik
cie¿ka rowerowa
spoin drobnym piaskiem gr. 8 cm
58-300 Wa‡brzych, ul. Matejki 1
tel. 74 641 44 00, fax. 74 641 44 04
e-mail: [email protected]
4b
KRAW˚flNIK GRANITOWY
4a
Egis Polska In¿ynieria Sp. z o.o.
Jednostka projektowa
‡awa betonowa z oporem (25cm) z betonu C16/20 gr. 10 cm
52-418 Wroc‡aw, ul. Bukowskiego 2
3.50
3.00
podsypka cementowo-piaskowa 1:3; gr. 3 cm
3.50
3.00
3.00
2.00
1.00
0.90
‡awa betonowa z betonu C12/15 gr. 15 cm
grunt stabilizowany cementem Rm=1,5 MPa; gr. 15 cm
max
.5,
0%
0%
2,
CIEK
na podsypce cem-piaskowej 1:3 - gr. 5 cm
0%
2,
uszczelniaj„ca 40x5mm
2,
0%
OPASKA
5a
0%
2,
KRAW˚flNIK BETONOWY
‡awa betonowa z betonu C12/15 gr. 24 cm
kostka z betonu prasowanego
CIEK
5
4a
‡awa betonowa z betonu C12/15 gr. 15 cm
3.
05
2
warstwa wi„¿„ca - beton asfaltowy 0/16mm (ACWMS 16W); gr. 7 cm
‡awa betonowa z betonu C12/15 gr. 17 cm
warstwa podbudowy - beton asfaltowy 0/16mm (ACWMS 16P); gr. 7 cm
5a
warstwa podbudowy pomocniczej
3
mgr in¿. Pawe‡ Waligra
298/DO/09
drogowa
Projektant
mgr in¿. Pawe‡ Hawrysz
241/DO/11
drogowa
Asystent
mgr in¿. Agnieszka Kubis
55/DO/08
drogowa
mgr in¿. Tomasz Rzodkiewicz
Wykonani
ewi
el
obr
an¿
owejdokument
acj
ipr
oj
ekt
owej
naz
adani
epn.Roz
budowadr
ogikr
aj
owejnr35(
ul
.Wr
oc‡
awska)naodci
nku
odul
.Pogodnejdoul
.St
acyj
nejwr
azz
eskr
z
y¿
owani
amiiz
agospodar
owani
em pl
.Lel
ewel
a
Et
apI
I-odci
nekodbudynkupr
z
yul
.Wr
oc‡
awski
ejnr137donr115w Wa‡
br
z
ychu
Nazwa opracowania
PROJEKT ARCHITEKTONICZNO BUDOWLANY
CIEflKA ROWEROWA
2
warstwa cieralna
PROJEKT DROGOWY
warstwa wi„¿„ca - beton asfaltowy 0/16mm (ACWMS 16W); gr. 9 cm
warstwa podbudowy - beton asfaltowy 0/16mm (ACWMS 16P); gr. 14 cm
Nazwa rysunku
PRZEKROJE KONSTRUKCYJNE
warstwa podbudowy pomocniczej
beton asfaltowy 0/5mm (AC 5 S) gr. 4 cm
podbudowa
podbudowa
kruszywo o CBR>25%; k>8m/d; gr. 15 cm
kruszywo ‡amane 0/31,5 stabilizowane mechanicznie gr. 15 cm
kruszywo ‡amane 0/31,5 stabilizowane mechanicznie gr. 15 cm
kruszywo o CBR>25%; k>8m/d; gr. 30 cm
‡awa betonowa z
doprowadzenie pod‡o¿a do grupy nonoci pod‡o¿a G-1
stabilizacja technologiczna
stabilizacja technologiczna
doprowadzenie pod‡o¿a do grupy nonoci pod‡o¿a G-1
betonu C12/15 gr. 15 cm
grunt stabilizowany cementem Rm=2,5 MPa; gr. 15 cm
grunt stabilizowany cementem Rm=1,5 MPa; gr. 15 cm
grunt stabilizowany cementem Rm=1,5 MPa; gr. 15 cm
grunt stabilizowany cementem Rm=2,5 MPa; gr. 15 cm
kruszywo ‡amane 0/31,5 stabilizowane mechanicznie gr. 20 cm
warstwa mrozoochronna
Projektant
warstwa cieralna - beton asfaltowy SMA 8mm (SMA 8 S); gr. 4 cm
podsypka cementowo-piaskowa 1:3; gr. 3 cm
1.75
drogowa
Podpis
1
CHODNIK
na przejciach dla pieszych gr. 7/8 cm
ZAP/0130/PWOD/05
Nazwa zadania
JEZDNIA KR5
p‡yty betonowe 50x50x7cm / kostka kamienna ciŒta
Specjalno
mgr in¿. S‡awomir Rabenda
Sprawdzaj„cy
p‡omieniowana / p‡yta fakturowana typu "stop" 30x30x8cm
8
1.
00
‡awa betonowa z oporem z betonu C12/15 gr. 15 cm
3
0.
15
krawŒ¿nik betonowy na p‡ask 20 x 30
1
Nr uprawnieæ
Projektant
kostka kamienna 2 x 18 x 20 cm ciŒta p‡omieniowana
1b
warstwa cieralna - beton asfaltowy SMA 8mm (SMA 8 S); gr. 4 cm
krawŒ¿nik betonowy wibroprasowany 20 x 30
‡awa betonowa z oporem (15cm) z betonu C12/15 gr. 15 cm
JEZDNIA KR3
4b
4
Zesp‡ projektowy
Asystent
z wype‡nieniem spoin drobnym piaskiem; gr. 8 cm
0%
2,
nasyp
krawŒ¿nik bet. najazdowy 20x22x100 cm (wiat‡o 4 cm)
‡awa betonowa z oporem z betonu C12/15 gr. 10 cm
6
podsypka cementowo-piaskowa 1:3; gr. 3 cm
9
Bran¿a
obrze¿e betonowe 8 x 30
kostka kamienna 2 x 18 x 20 cm ciŒta p‡omieniowana
0.
01
+ 0.00 (niweleta)
e-mail: [email protected]
stabilizacja technologiczna
p‡yty betonowe typu "stop" - 30 x 30 x 8 cm
bitumiczna tama
tel. 71 337 46 12, fax 71 364 33 95
podbudowa
kruszywo ‡amane 0/31,5 stabilizowane mechanicznie gr. 15 cm
0.30 0.50
OBRZEflE BETONOWE
krawŒ¿nik granitowy 20 x 25
7
DROGI
5.80
5.00
o ni
wel
et
yj
ezdni
Gr
ani
ca pasa dr
ogowego
5.00
kruszywo ‡amane 0/31,5 stabilizowane mechanicznie gr. 20 cm
warstwa mrozoochronna
Skala
Data
Nr umowy
Bran¿a
Stadium
Rewizja
Nr rysunku
1:500
2015
647/2014
DROGI
PB
A
2