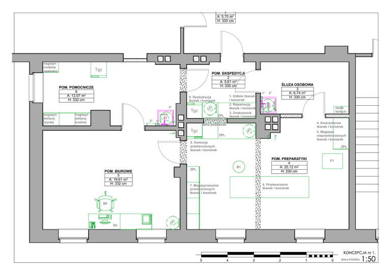
Koncepcja

Transkrypt

Koncepcja
1
A: 5,70 m2
H: 330 cm
magazyn
środków
czystości
Tgz
POM. EKSPEDYCJI
2
A: 5,61 m2
H: 330 cm
1*
3*
magazyn
bielizny
czystej
1. Odbiór tkanek
i komórek
2. Rejestracja
tkanek i komórek
3. Znakowanie
tkanek i komórek
9. Dystrybucja
tkanek i komórek
3*
Tgc
zlew
magazyn
bielizny
brudnej
2*
ZPL
2*
ŚLUZA OSOBOWA
3
A: 6,74 m2
H: 330 cm
3*
zlew
POM. POMOCNICZE
6
A: 12,07 m2
H: 332 cm
szafa
fartuch
1*
4. Kwarantanna
tkanek i komórek
okno podawcze
Tgc
6*
5. Magazyn
nieprzetworzonych
tkanek i komórek
ZPL
8. Karencja
przetworzonych
tkanek i komórek
ZPL
B1
ZPL
POM. BIUROWE
5
A: 19,61 m2
H: 332 cm
POM. PREPARATYKI
4
A: 25,12 m2
H: 330 cm
F1
6. Przetwarzanie
tkanek i komórek
7. Magazynowanie
przetworzonych
tkanek i komórek
B5
Eb
3*
KONCEPCJA nr 1.
5
4
3
2
1
0
SKALA RYSUNKU:
1:50