W2 W2 W2 W2 W2 W2 W2 W2 W2

Transkrypt

W2 W2 W2 W2 W2 W2 W2 W2 W2
A'
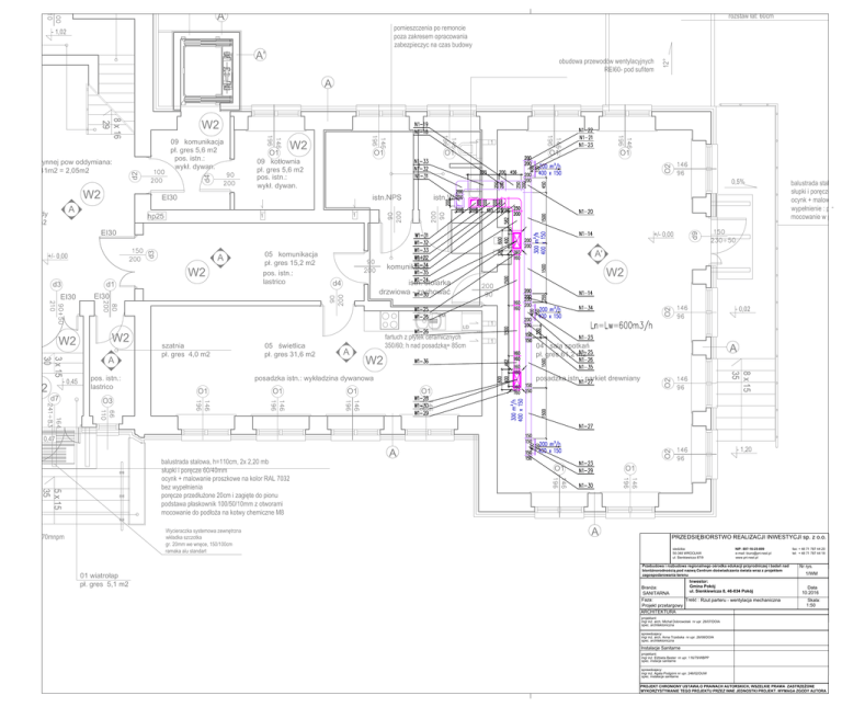
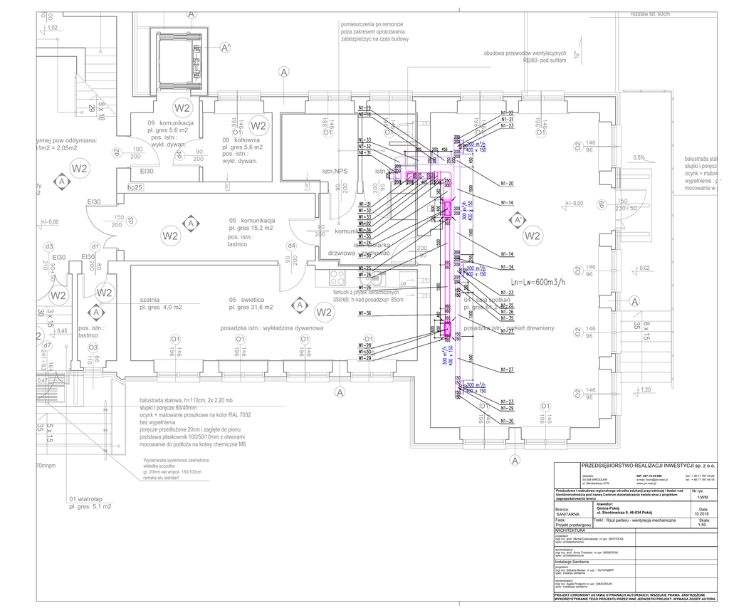
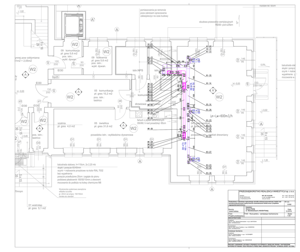
pomieszczenia po remoncie
poza zakresem opracowania
zabezpieczyc na czas budowy
- 1,02
A'
REI60- pod sufitem
A
8 x 16
29
W2
09 komunikacja
O1
O1
0,5%
EI30
istn.NPS
hp25
istn.WC
ocynk + malowanie
1
1
mocowanie w pionie
EI30
+/- 0,00
d3
+/- 0,00
A
W2
d1
EI30
A'
istn.
komunikacja
W2
istn. stolarka
d4
EI30
ZM
LD
1
szatnia
d7
pos. istn.:
lastrico
A
W2
posadzka istn.: parkiet drewniany
O1
O1
O1
8 x 15
35
3 x 15
30
A
A
- 0,45
W2
W2
1
O2
W2
- 0,02
O2
d3
05 komunikacja
pos. istn.:
lastrico
balustrada stalowa 1
d9
A
O1
O2
W2
1 hol+schody
pow. 31,4 m2
O1
pos. istn.:
d4
d2
5% czynnej pow oddymiana:
0,05x41m2 = 2,05m2
O1
pos. istn.:
1
W2
O1
O3
- 0,47
- 1,20
O2
balustrada stalowa, h=110cm, 2x 2,20 mb
A
O1
O1
ocynk + malowanie proszkowe na kolor RAL 7032
5 x 15
35
A
- 1,20 = 157,70mnpm
siedziba:
ramaka alu standart
ul. Sienkiewicza 87/9
NIP: 897-16-25-899
e-mail: [email protected]
www.pri-nest.pl
fax: + 48 71 787 44 20
tel: + 48 71 787 44 18
Nr rys.
1/WM
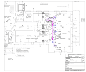
zagospodarowania terenu
Inwestor:
SANITARNA
Faza:
Projekt przetargowy
ARCHITEKTURA
Data
10.2016
Rzut parteru - wentylacja mechaniczna
Skala:
1:50
projektant:
spec. architektoniczna
sprawdzajacy:
spec. architektoniczna
Instalacje Sanitarne
projektant:
spec. instacje sanitarne
sprawdzajacy:
spec. instalacje sanitarne
WYKORZYSTYWANIE TEGO PROJEKTU PRZEZ INNE JEDNOSTKI PROJEKT. WYMAGA ZGODY AUTORA