5-6_AK przekroje ABC

Transkrypt

5-6_AK przekroje ABC
1
2
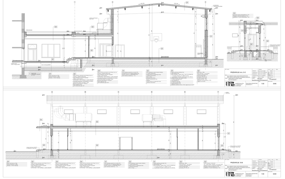
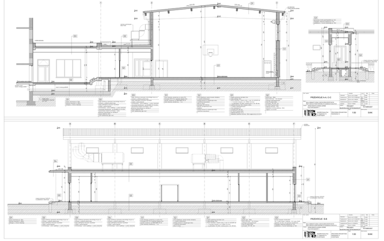
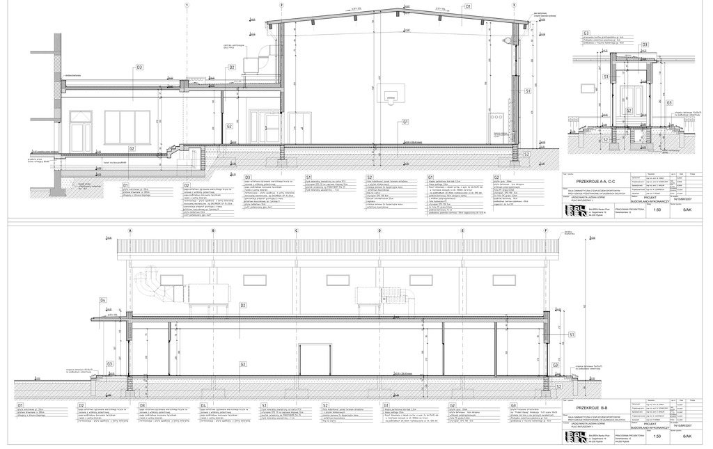
+8,905
5,70°= 10%
3
D1
5,70°= 10%
+8,705
+8,05
+7,355
75
85
85
135
+8,05
pas nadrynnowy
z blachy tytanowo-cynkowej
G3
-prasowana kostka granitopodobna gr. 6cm
-Podsypka cementowo-piaskowa gr. 5cm
-podbudowa z tłucznia kamiennego gr. 15cm
62
60
+7,10
60
+7,10
70
centrala wentylacyjna
GOLD RX20
D3
+4,22
+4,22
155
+3,67
10
5
137
416
282
220
5
G3
476
G2
±0,00
150
86
108
12
2
30 5 2
10 5
150
80
-2,12
kanał instalacyjny
80x80
S2
140
-0,64 3
x15
x30
40
103
S2
-0,30
-1,40
84
kanał instalacyjny80x80
15 10
5
62
8
±0,00
-0,62
71
przebicie przez
ściane istniejącą 80x80
x2
30
-0,62
5,5
24
12 5 7
-0,62 posadzka szkoły istniejącej
1
4x
±0,00 = 326.45 mnpm
9
±0,00
45 2
-1,09
Nadproże żelbetowe
nad wnęką grzejnikową
6.5*24.0
G2
-0,64
0
5x3
3x1
210
G2
stopnice betonowe 15x35x75
na podbudowie cementowej
±0,00
62
G1
305
205
419
305
450
282
145
5
4835
7355
S1
40
47
+2,20
835
370
+3,72
22
10
5,71°= 10%
+3,67
S1
367
+4,22
795
+4,22
8705
obróbka blacharska
134
D2
2015
D3
47
3
10
202
200
2,86°= 5%
-1,40
-1,40
-1,70
-2,10
-2,10
piasek gruby
stabilizowany cementem
do I >0,9
D1
D2
-płyta warstwowa gr. 20cm
-płatwie drewniane co 280cm
-dźwigary z drewna klejonego
-papa asfaltowa zgrzewana wierzchniego krycia na
osnowie z włókniny poliestrowej
-papa podkładowa mocowana łącznikami
razem z wełną mineraln.
-termoizolacja - płyta spadkowa z wełny mineralnej
mocowanej mechanicznie np DACHROCK SP 15-25cm
-paroizolacja preparat gruntujący z masy
asfaltowo kauczukowej np: Cyklolep R
-płyta żelbetowa 22cm
-sufit podwieszany gips.-kart.
A
Tytuł rysunku
D3
S1
-papa asfaltowa zgrzewana wierzchniego krycia na
osnowie z włókniny poliestrowej
-papa podkładowa mocowana łącznikami
razem z wełną mineraln.
-termoizolacja - płyta spadkowa z wełny mineralnej
mocowanej mechanicznie np DACHROCK SP 15-25cm
-paroizolacja preparat gruntujący z masy
asfaltowo kauczukowej np: Cyklolep R
-płyta żelbetowa 12cm
-sufit podwieszany gips.-kart.
B
S2
-tynk mineralny zewnątrzny na siatce PCV
-styropian EPS 70 na zaprawie klejowej 12cm
-pustak ceramiczny np POROTHERM PW 25
-tynk mineralny wewnętrzny - 1 cm
C
G1
-folia kubełkowa/ ponad terenem okładzina
z płytek klinkierowych
-izolacja pionowa 2x dyspersyjna masa
asfaltowo-kauczukowa
-klej na siatce
-styropian EPS 100 8cm
-bloczki żwirobetonowe 25cm
-rapówka
-izolacja pionowa 2x dyspersyjna masa
asfaltowo-kauczukowa
G2
- klepka parkietowa buk/dąb 2,2cm
- ślepa podłoga 1,9cm
- Ruszt drewniany z desek so/św, o wym. 2x ok.25x95 mm
w rozstawie osiowym co ok. 500mm na krzyż
na podkładkach 20-35mm rozmieszczone co ok. 500 mm
- podkład betonowy 10cm zbrojona siatką
z włókien polipropylenowych
- folia budowlana PE
- styropian EPS 100 5cm
- 2x folia PE gruba 0,5mm
- podkład betonowy 15 cm
- podbudowa piaskowo-żwirowa ~30cm zagęszczony do Is>0,95
D
Nazwisko
PRZEKROJE A-A, C-C
-płytki gres 20mm
-płyta betonowa 6cm zbrojona
włóknami polipropylenowymi
-folia PE gruba 0,2mm
-styropian EPS 100 5cm
-2x folia PE gruba 0,2mm
-podkład betonowy 10cm
-podbudowa żwirowo-piaskowa ~30cm
zagęszcz. do Is>0,95
Obiekt
SALA GIMNASTYCZNA Z ZAPLECZEM SPORTOWYM
PRZY SZKOLE PODSTAWOWEJ W ŁAZISKACH DOLNYCH
Inwestor
Opracował
mgr inż. arch. M. ZIMNY
Projektował arch.
mgr inż. arch. B. KONIECZNY
Sprawdził arch.
mgr inż. arch. Z. MAZUR
E
F
Data
Sprawdził
518/02
mgr inż. P. RENKE
PROJEKT
BUDOWLANO-WYKONAWCZY
10.2007
Nr projektu
74/15/BR/2007
Numer rysunku
1:50
PRACOWNIA PROJEKTOWA
Świerklańska 12
Podpis
9.2006
Projektował konstr. mgr inż. M. CZARNECKI
Skala
BAUREN Renke Piotr
ul. Cegielniana 16
44-200 Rybnik
-
3/05/
9.2006
SLOKK
3/05/
9.2006
SLOKK
SLK/0603/
POOK/04 10.2007
Stadium
URZĄD MIASTA ŁAZISKA GÓRNE
PLAC RATUSZOWY 1
upr.nr
5/AK
obróbka
blacharska
+8,90
+8,90
D4
922
D2
+4,22
S1
210
210
2
2x1
5x3
5
-0,32
5
100
S2
140
117
40
-1,40
-0,02
6
2
±0,00 = 326.45 mnpm
stopnice betonowe 15x35x75
na podbudowie cementowej
10
±0,00
47
-0,32
x35
G3
10 5 6
30
2
5
2x1
G2
2
G3
stopnice betonowe 15x35x75
na podbudowie cementowej
305
305
210
227
305
357
422
95
40
5
22
40
5
95
40
75
230
5
75
230
130
3
22
12
+3,72
212
5,70°= 10%
15
50
+4,22
-1,40
Tytuł rysunku
D1
-płyta warstwowa gr. 20cm
-płatwie drewniane co 280cm
-dźwigary z drewna klejonego
D2
-papa asfaltowa zgrzewana wierzchniego krycia na
osnowie z włókniny poliestrowej
-papa podkładowa mocowana łącznikami
razem z wełną mineraln.
-termoizolacja - płyta spadkowa z wełny mineralnej
mocowanej mechanicznie np DACHROCK SP 15-25cm
D3
-papa asfaltowa zgrzewana wierzchniego krycia na
osnowie z włókniny poliestrowej
-papa podkładowa mocowana łącznikami
razem z wełną mineraln.
-termoizolacja - płyta spadkowa z wełny mineralnej
mocowanej mechanicznie np DACHROCK SP 15-25cm
D4
-papa asfaltowa zgrzewana wierzchniego krycia na
osnowie z włókniny poliestrowej
-papa podkładowa mocowana łącznikami
razem z wełną mineraln.
-termoizolacja - płyta spadkowa z wełny mineralnej
mocowanej mechanicznie np DACHROCK SP 15-25cm
S1
-tynk mineralny zewnątrzny na siatce PCV
-styropian EPS 70 na zaprawie klejowej 12cm
-pustak ceramiczny np POROTHERM PW 25
-tynk mineralny wewnętrzny - 1 cm
S2
-folia kubełkowa/ ponad terenem okładzina
z płytek klinkierowych
-izolacja pionowa 2x dyspersyjna masa
asfaltowo-kauczukowa
-klej na siatce
-styropian EPS 100 8cm
G1
- klepka parkietowa buk/dąb 2,2cm
- ślepa podłoga 1,9cm
- Ruszt drewniany z desek so/św, o wym. 2x ok.25x95 mm
w rozstawie osiowym co ok. 500mm na krzyż
na podkładkach 20-35mm rozmieszczone co ok. 500 mm
- podkład betonowy 10cm zbrojona siatką
G2
-płytki gres 20mm
-płyta betonowa 6cm zbrojona
włóknami polipropylenowymi
-folia PE gruba 0,2mm
-styropian EPS 100 5cm
-2x folia PE gruba 0,2mm
G3
-płytki tarasowe strukturalne
np: "Probet-Dasag" Andaluzja 7431 szare 30x30
płukane lub inne o nie gorszych parametrach
-Podsypka cementowo-piaskowa gr. 5cm
-podbudowa z tłucznia kamiennego gr. 15cm
Nazwisko
PRZEKROJE B-B
Obiekt
SALA GIMNASTYCZNA Z ZAPLECZEM SPORTOWYM
PRZY SZKOLE PODSTAWOWEJ W ŁAZISKACH DOLNYCH
Inwestor
URZĄD MIASTA ŁAZISKA GÓRNE
PLAC RATUSZOWY 1
Opracował
mgr inż. arch. M. ZIMNY
Projektował arch.
mgr inż. arch. B. KONIECZNY
Sprawdził arch.
mgr inż. arch. Z. MAZUR
-
Data
Projektował konstr. mgr inż. M. CZARNECKI
Sprawdził
518/02
mgr inż. P. RENKE
Stadium
PROJEKT
BUDOWLANO-WYKONAWCZY
PRACOWNIA PROJEKTOWA
Świerklańska 12
44-200 Rybnik
Podpis
10.2007
3/05/
10.2007
SLOKK
553/01
10.2007
SL-435
SLK/0603/
POOK/04 10.2007
Skala
BAUREN Renke Piotr
ul. Cegielniana 16
44-200 Rybnik
upr.nr
10.2007
Nr projektu
74/15/BR/2007
Numer rysunku
1:50
6/AK