formularz KREATYWNI projektanci i architekci

Transkrypt

formularz KREATYWNI projektanci i architekci
MIĘDZYNARODOWE TARGI POZNAŃSKIE sp. z o. o.
POZNAŃ INTERNATIONAL FAIR Ltd.
Zespół Projektu arena DESIGN 2009 / arena DESIGN 2009 Project Team
ul. Głogowska 14, 60-734 Poznań, Poland
tel. +48/61/ 869 2000, 869 2303 / -2515 / -2184 / - 23 66 fax: +48 /61/ 869 29 52
Konto / Bank account: Bank Handlowy w Warszawie S.A. o/Poznań
Nr konta / account no: 37 103012470000000055861201
IBAN: PL 66103012470000000055861358, SWIFT: CITIPLPX
Płatnik VAT czynny / Active VAT Payer, NIP / Tax ID: 777-00-00-488
Sąd Rejonowy Poznań – Nowe Miasto i Wilda w Poznaniu / Poznan District Court
Wydział VIII Krajowego Rejestru Sądowego / 8th Division of National Court Register
KRS / National Court Register number: 0000202703
Kapitał zakładowy / Share capital: 42 310 200,00 PLN
POZNAŃ 03. – 06.06.2009
STREFA KREATYWNI / CREATIVES ZONE
PROJEKTANCI I ARCHITEKCI / DESIGNERS AND ARCHITECTS
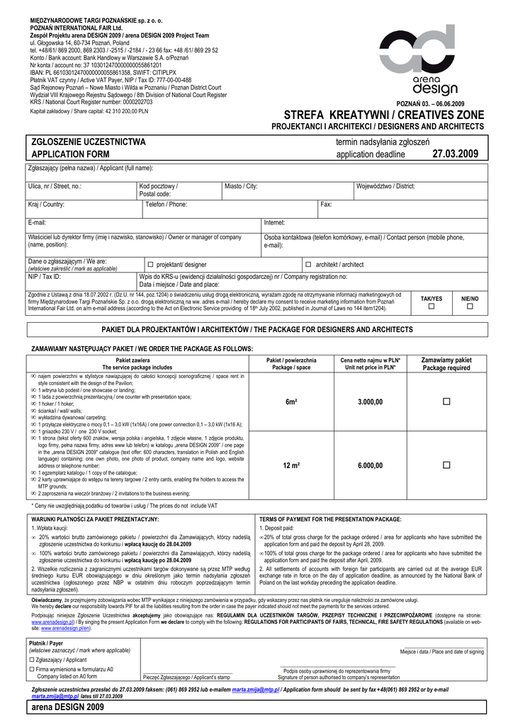
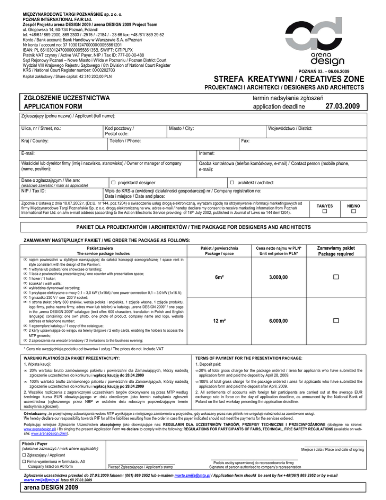
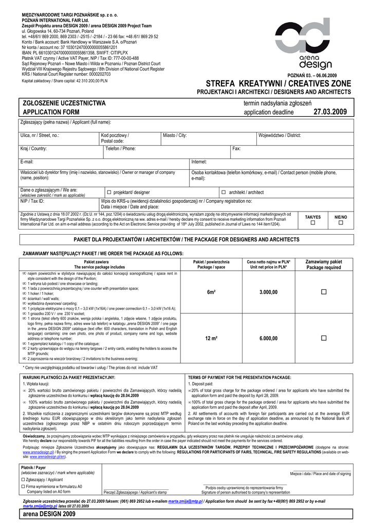
ZGŁOSZENIE UCZESTNICTWA
APPLICATION FORM
termin nadsyłania zgłoszeń
application deadline
27.03.2009
Zgłaszający (pełna nazwa) / Applicant (full name):
Ulica, nr / Street, no.:
Kod pocztowy /
Postal code:
Telefon / Phone:
Kraj / Country:
Miasto / City:
Województwo / District:
Fax:
E-mail:
Internet:
Właściciel lub dyrektor firmy (imię i nazwisko, stanowisko) / Owner or manager of company
(name, position):
Osoba kontaktowa (telefon komórkowy, e-mail) / Contact person (mobile phone,
e-mail):
Dane o zgłaszającym / We are:
(właściwe zakreślić / mark as applicable)
NIP / Tax ID:
projektant/ designer
architekt / architect
Wpis do KRS-u (ewidencji działalności gospodarczej) nr / Company registration no:
Data i miejsce / Date and place:
Zgodnie z Ustawą z dnia 18.07.2002 r. (Dz.U. nr 144, poz.1204) o świadczeniu usług drogą elektroniczną, wyraŜam zgodę na otrzymywanie informacji marketingowych od
firmy Międzynarodowe Targi Poznańskie Sp. z o.o. drogą elektroniczną na ww. adres e-mail / hereby declare my consent to receive marketing information from Poznań
International Fair Ltd. on a/m e-mail address (according to the Act on Electronic Service providing of 18th July 2002, published in Journal of Laws no 144 item1204).
TAK/YES
NIE/NO
PAKIET DLA PROJEKTANTÓW I ARCHITEKTÓW / THE PACKAGE FOR DESIGNERS AND ARCHITECTS
ZAMAWIAMY NASTĘPUJĄCY PAKIET / WE ORDER THE PACKAGE AS FOLLOWS:
•
•
•
•
•
•
•
•
•
•
•
•
Pakiet zawiera
The service package includes
najem powierzchni w stylistyce nawiązującej do całości koncepcji scenograficznej / space rent in
style consistent with the design of the Pavilion;
1 witryna lub podest / one showcase or landing;
1 lada z powierzchnią prezentacyjną / one counter with presentation space;
1 hoker / 1 hoker;
ścianka/i / wall/ walls;
wykładzina dywanowa/ carpeting;
1 przyłącze elektryczne o mocy 0,1 – 3,0 kW (1x16A) / one power connection 0,1 – 3,0 kW (1x16 A);
1 gniazdko 230 V / one 230 V socket;
1 strona (tekst oferty 600 znaków, wersja polska i angielska, 1 zdjęcie własne, 1 zdjęcie produktu,
logo firmy, pełna nazwa firmy, adres www lub telefon) w katalogu „arena DESIGN 2009” / one page
in the „arena DESIGN 2009" catalogue (text offer: 600 characters, translation in Polish and English
language) containing: one own photo, one photo of product, company name and logo, website
address or telephone number;
1 egzemplarz katalogu / 1 copy of the catalogue;
2 karty uprawniające do wstępu na tereny targowe / 2 entry cards, enabling the holders to access the
MTP grounds;
2 zaproszenia na wieczór branŜowy / 2 invitations to the business evening;
Pakiet / powierzchnia
Package / space
Cena netto najmu w PLN*
Unit net price in PLN*
Zamawiamy pakiet
Package required
6m²
3.000,00
12 m²
6.000,00
* Ceny nie uwzględniają podatku od towarów i usług / The prices do not include VAT
WARUNKI PŁATNOŚCI ZA PAKIET PREZENTACYJNY:
1. Wpłata kaucji:
• 20% wartości brutto zamówionego pakietu / powierzchni dla Zamawiających, którzy nadeślą
zgłoszenie uczestnictwa do konkursu i wpłacą kaucję do 28.04.2009
TERMS OF PAYMENT FOR THE PRESENTATION PACKAGE:
1. Deposit paid:
• 20% of total gross charge for the package ordered / area for applicants who have submitted the
application form and paid the deposit by April 28, 2009.
• 100% wartości brutto zamówionego pakietu / powierzchni dla Zamawiających, którzy nadeślą
zgłoszenie uczestnictwa do konkursu i wpłacą kaucję po 28.04.2009
2. Wszelkie rozliczenia z zagranicznymi uczestnikami targów dokonywane są przez MTP według
średniego kursu EUR obowiązującego w dniu określonym jako termin nadsyłania zgłoszeń
uczestnictwa (ogłoszonego przez NBP w ostatnim dniu roboczym poprzedzającym termin
nadsyłania zgłoszeń).
• 100% of total gross charge for the package ordered / area for applicants who have submitted the
application form and paid the deposit after April, 2009.
2. All settlements of accounts with foreign fair participants are carried out at the average EUR
exchange rate in force on the day of application deadline, as announced by the National Bank of
Poland on the last workday preceding the application deadline.
Oświadczamy, Ŝe przejmujemy zobowiązania wobec MTP wynikające z niniejszego zamówienia w przypadku, gdy wskazany przez nas płatnik nie ureguluje naleŜności za zamówione usługi.
We hereby declare our responsibility towards PIF for all the liabilities resulting from the order in case the payer indicated should not meet the payments for the services ordered.
Podpisując niniejsze Zgłoszenie Uczestnictwa akceptujemy jako obowiązujące nas: REGULAMIN DLA UCZESTNIKÓW TARGÓW, PRZEPISY TECHNICZNE I PRZECIWPOśAROWE (dostępne na stronie:
www.arenadesign.pl) / By singing the present Application Form we declare to comply with the following: REGULATIONS FOR PARTICIPANTS OF FAIRS, TECHNICAL, FIRE SAFETY REGULATIONS (available on website: www.arenadesign.pl/en).
Płatnik / Payer
(właściwe zaznaczyć / mark where applicable)
_______________________________
Miejsce i data / Place and date of signing
Zgłaszający / Applicant
Firma wymieniona w formularzu A0
Company listed on A0 form
___________________________________
Pieczęć Zgłaszającego / Applicant’s stamp
_____________________________________________
Podpis osoby uprawnionej do reprezentowania firmy
Signature of person authorised to company’s representation
Zgłoszenie uczestnictwa przesłać do 27.03.2009 faksem: (061) 869 2952 lub e-mailem [email protected] / Application form should be sent by fax +48(061) 869 2952 or by e-mail
[email protected] lates till 27.03.2009
arena DESIGN 2009