ŁĄ C ZN IK PO ŁU DN IO WY - Muzeum Narodowe w Poznaniu
Transkrypt
										ŁĄ C ZN IK PO ŁU DN IO WY - Muzeum Narodowe w Poznaniu
                                        
                                        
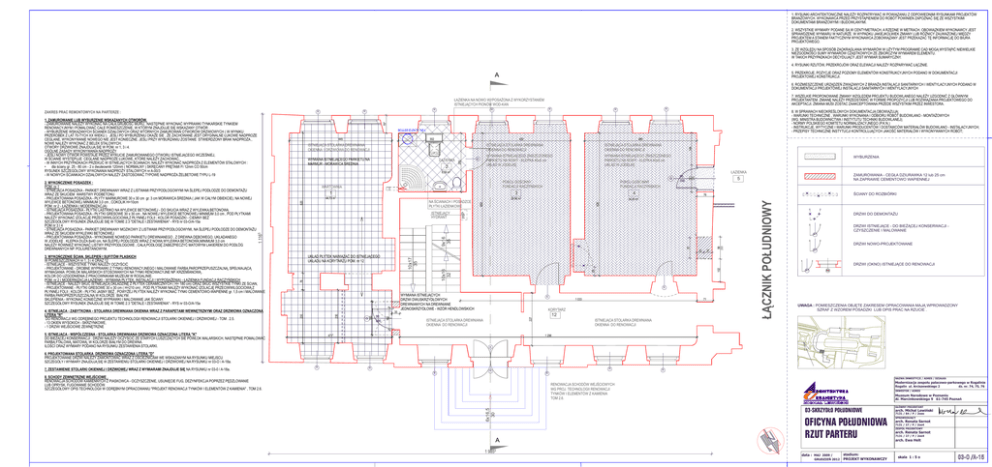
                                1. RYSUNKI ARCHITEKTONICZNE NALEśY ROZPATRYWAĆ W POWIĄZANIU Z ODPOWIEDNIMI RYSUNKAMI PROJEKTÓW BRANśOWYCH. WYKONAWCA PRZED PRZYSTĄPIENIEM DO ROBÓT POWINIEN ZAPOZNAĆ SIĘ ZE WSZYSTKIMI DOKUMENTAMI BRANśOWYMI I BUDOWLANYMI. 2. WSZYSTKIE WYMIARY PODANE SĄ W CENTYMETRACH, A RZĘDNE W METRACH. OBOWIĄZKIEM WYKONAWCY JEST SPRAWDZENIE WYMIARU W NATURZE. W WYPADKU JAKIEJKOLWIEK ZMIANY LUB RÓśNICY ZAUWAśONEJ MIĘDZY PROJEKTEM A STANEM FAKTYCZNYM WYKONAWCA ZOBOWIĄZANY JEST PRZEKAZAĆ TĘ INFORMACJĘ DO BIURA PROJEKTOWEGO. 3. ZE WZGLĘDU NA SPOSÓB ZAOKRĄGLANIA WYMIARÓW W UśYTYM PROGRAMIE CAD MOGĄ WYSTĄPIĆ NIEWIELKIE NIEZGODNOŚCI SUMY WYMIARÓW CZĄSTKOWYCH ZE ZBIORCZYM WYMIAREM ELEMENTU. W TAKICH PRZYPADKACH DECYDUJĄCY JEST WYMIAR SUMARYCZNY. 4. RYSUNKI RZUTÓW, PRZEKROJÓW ORAZ ELEWACJI NALEśY ROZPARYWAĆ ŁĄCZNIE. 5. PRZEKROJE, POZYCJE ORAZ POZIOMY ELEMENTÓW KONSTRUKCYJNYCH PODANO W DOKUMENTACJI PROJEKTOWEJ KONSTRUKCJI. A 6. ROZMIESZCZENIE URZĄDZEŃ ZWIĄZANYCH Z BRANśĄ INSTALACJI SANITARNYCH I WENTYLACYJNYCH PODANO W DOKUMENTACJI PROJEKTOWEJ INSTALACJI SANITARNYCH I WENTYLACYJNYCH 7. WSZELKIE PROPONOWANE ZMIANY WZGLĘDEM PROJEKTU BUDOWLANEGO NALEśY UZGODNIĆ Z GŁÓWNYM PROJEKTANTEM. ZMIANĘ NALEśY PRZEDSTAWIĆ W FORMIE PROPOZYCJI LUB ROZWIĄZANIA PROJEKTOWEGO DO AKCEPTACJI. ZMIANA MUSI ZOSTAC ZAAKCEPTOWANA PRZEDE WSZYSTKIM PRZEZ INWESTORA. ŁAZIENKA NA NOWO WYPOSAśONA Z WYKORZYSTANIEM ISTNIEJĄCYCH PIONÓW WOD-KAN R R R R 8. W SPRAWACH NIEOKREŚLONYCH DOKUMENTACJĄ OBOWIĄZUJĄ: - WARUNKI TECHNICZNE , WARUNKI WYKONANIA I ODBIORU ROBÓT BUDOWLANO - MONTAśOWYCH (WG. MINISTRA BUDOWNICTWA I INSTYTUTU TECHNIKI BUDOWLANEJ); - NORMY POLSKIEGO KOMITETU NORMALIZACYJNEGO (P.K.N.) - INSTRUKCJE, WYTYCZNE I WARUNKI PRODUCENTÓW I DOSTAWCÓW MATERIAŁÓW BUDOWLANO - INSTALACYJNYCH; - PRZEPISY TECHNICZNE INSTYTUCJI KONTROLUJĄCYCH JAKOŚĆ MATERIAŁÓW I WYKONYWANYCH ROBÓT; 795 1. ZAMUROWANIE LUB WYBURZENIE WSKAZANYCH OTWORÓW. - ZAMUROWANIE NALEśY WYKONAĆ NA CAŁĄ GRUBOŚĆ MURU, NASTĘPNIE WYKONAĆ WYPRAWKI TYNKARSKIE TYNKIEM RENOWACYJNYM I POMALOWAĆ CAŁE POMIESZCZENIE, W KTÓRYM ZNAJDUJE SIĘ WSKAZANY OTWÓR . - WYBURZENIE WSKAZANYCH ŚCIANEK DZIAŁOWYCH ORAZ WTÓRNYCH ZAMUROWAŃ OTWORÓW DRZWIOWYCH ( W WYNIKU PRZERÓBEK Z LAT 70-TYCH XX WIEKU ). JEŚLI PO WYBURZENIU OKAśE SIE , śE ZACHOWANE JEST ORYGINALNE ŁUKOWE NADPROśE CEGLANE, WYKONYWANIE NOWEGO NIE JEST KONIECZNE. JEŚLI PRZY WYBURZANIU ZOSTANIE STWIERDZONY BRAK NADPROśA , NOWE NALEśY WYKONAĆ Z BELEK STALOWYCH. OTWORY DRZWIOWE ZNAJDUJĄ SIĘ W POM. nr 1, 3 i 4. OGÓLNE ZASADY WYKONYWANIA NADPROśY - JEŚLI NOWY OTWÓR POWSTAJE PRZEZ WYKUCIE ZAMUROWANEGO OTWORU ISTNIEJĄCEGO WCZEŚNIEJ, W ŚCIANIE WYSTĘPUJE CEGLANE NADPROśE ŁUKOWE, KTÓRE NALEśY ZACHOWAĆ, - W INNYCH PRZYPADKACH PRZEKUĆ W ISTNIEJĄCYCH ŚCIANACH, NALEśY WYKONAĆ NADPROśA Z ELEMENTÓW STALOWYCH : • dla ściany gr. 25 - 80 cm - 2 x dwuteownik 120mm ( NORMALNY ) SKRĘCANY PRĘTAMI FI 12mm CO 50cm RYSUNEK SZCZEGÓŁOWY WYKONANIA NADPROśY STALOWYCH nr A-00/3 - W NOWYCH ŚCIANKACH DZIAŁOWYCH NALEśY ZASTOSOWAĆ TYPOWE NADPROśA śELBETOWE TYPU L-19 R R R ZAKRES PRAC REMONTOWYCH NA PARTERZE : BOJLER ELEKTR.100 L 302 430 2 ISTNIEJĄCA STOLARKA DREWNIANA OKIENNA DO RENOWACJI ISTNIEJĄCA STOLARKA DREWNIANA OKIENNA DO RENOWACJI WYMIANA ISTNIEJĄCEGO ZNISZCZONEGO PARKIETU NA NOWY - KLEPKA 40x8 cm UKŁAD W JODEŁKĘ WYMIANA ISTNIEJĄCEGO ZNISZCZONEGO PARKIETU NA NOWY - KLEPKA 40x8 cm UKŁAD W JODEŁKĘ ŁAZIENKA POKÓJ GOŚCINNY FUNDACJI RACZYŃSKICH WARTOWNIA 3 4 29,96 m2 34,20 m2 620 206 5. ISTNIEJĄCA - WSPÓŁCZESNA - STOLARKA DREWNIANA DRZWIOWA OZNACZONA LITERĄ "K" DO BIEśĄCEJ KONSERWACJI . DRZWI NALEśY OCZYŚCIĆ ZE STARYCH ŁUSZCZĄCYCH SIE POWŁOK MALARSKICH, NASTĘPNIE POMALOWAĆ FARBĄ FTALOWĄ, MATOWĄ, W KOLORZE BIAŁYM DO DREWNA. ILOŚCI ORAZ WYMIARY PODANO NA RYSUNKU ZESTAWIENIA STOLARKI. 99 102 39 K 1 033 71 KORYTARZ 12 227 100 D 150 230 35 90 200 WYMIANA ISTNIEJĄCYCH DRZWI DWUSKRZYDŁOWYCH DREWNIANYCH NA DREWNIANE JEDNOSKRZYDŁOWE - WZÓR HENDLOWSKICH ISTNIEJĄCA STOLARKA DREWNIANA OKIENNA DO RENOWACJI 4715 ISTNIEJĄCA STOLARKA DREWNIANA OKIENNA DO RENOWACJI 200 91 9x16 35 10x16 32 10x17 35 76 37 K 230 4. ISTNIEJĄCA - ZABYTKOWA - STOLARKA DREWNIANA OKIENNA WRAZ Z PARAPETAMI WEWNĘTRZNYMI ORAZ DRZWIOWA OZNACZONA LITERĄ "R" DO RENOWACJI WG ODRĘBNEGO PROJEKTU TECHNOLOGII RENOWACJI STOLARKI OKIENNEJ I DRZWIOWEJ - TOM . 2.5. - 13 OKIEN WYSOKICH - SKRZYNKOWE, - 1 DRZWI WEJŚCIOWE ZEWNĘTRZNE 32 UKŁAD PŁYTEK NAWIĄZAĆ DO ISTNIEJĄCEGO UKŁADU NA KORYTARZU POM. nr 12 ŚCIANY DO ROZBIÓRKI 76 HP 620 NA ŚCIANACH I POSADZCE PŁYTKI ŁAZIENKOWE ZAMUROWANIA - CEGŁA DZIURAWKA 12 lub 25 cm NA ZAPRAWIE CEMENTOWO WAPIENNEJ 5 620 1 44,73 m2 ISTNIEJĄCY HYDRANT 3. WYKOŃCZENIE ŚCIAN, SKLEPIEŃ I SUFITÓW PŁASKICH W POMIESZCZENIACH nr 1, 3 i 4 ORAZ 12 - ISTNIEJĄCE - WSZYSTKIE TYNKI NALEśY OCZYŚCIĆ - PROJEKTOWANE - DROBNE WYPRAWKI Z TYNKU RENOWACYJNEGO I MALOWANIE FARBĄ PAROPRZEPUSZCZALNĄ, SPEŁNIAJĄCĄ WYMAGANIA POWŁOK MALARSKICH STOSOWANYCH NA TYNKI RENOWACYJNE NP. KRZEMIANOWĄ . KOLOR DO UZGODNIENIA Z PRACOWNIKAMI MUZEUM W ROGALINIE. POM. nr 2 ( MODERNIZACJA ŁAZIENKI - WYMIANA PŁYTEK, INSTALACJI I WYPOSAśENIA) - ŁAZIENKA FUNDACJI RACZYŃSKICH - ISTNIEJĄCE - NALEśY SKUĆ ISTNIEJĄCĄ OKŁADZINĘ Z PŁYTEK CERAMICZNYCH ( H= 180 cm) ORAZ SKUĆ WSZYSTKIE TYNKI ZE ŚCIAN, - PROJEKTOWANE - PŁYTKI GRESOWE 30 x 30 cm ( H=210 cm) , POD PŁYTKAMI NALEśY WYKONAĆ IZOLACJĘ PRZECIWWILGOCIOWĄ Z PŁYNNEJ FOLII ; KOLOR - PŁYTKI JASNY BEś , POWYśEJ PŁYTEK NALEśY WYKONAĆ TYNKI CEMENTOWO-WAPIENNE gr. 1,5 cm I MALOWANIE FARBĄ PAROPRZEPUSZCZALNĄ W KOLORZE BIAŁYM. SKLEPIENIA - WYKONAĆ KONIECZNE WYPRAWKI I MALOWANIE JAK ŚCIANY. SZCZEGÓŁOWY RYSUNEK ZNAJDUJE SIĘ W TOMIE 2.3 "DETALE I ZESTAWIENIA" - RYS nr 03-O/A-15a POKÓJ GOŚCINNY FUNDACJI RACZYŃSKICH 90 200 121 D 8,59 m2 1 1165 2. WYKOŃCZENIE POSADZEK : POM. nr 1 - STNIEJĄCA POSADZKA - PARKIET DREWNIANY WRAZ Z LISTWAMI PRZYPODŁOGOWYMI NA ŚLEPEJ PODŁODZE DO DEMONTAśU WRAZ ZE SKUCIEM WARSTWY PODBETONU - PROJEKTOWANA POSADZKA - PŁYTY MARMUROWE 30 x 30 cm gr. 3 cm MORAWICA ŚREDNIA ( JAK W CAŁYM OBIEKCIE), NA NOWEJ WYLEWCE BETONOWEJ MINIMUM 3,0 cm , COKOLIK H=10cm POM. nr 2 - ŁAZIENKA ( MODERNIZACJA) - ISTNIEJĄCA POSADZKA - PŁYTKI LASTRIKO NA WYLEWCE BETONOWEJ - DO SKUCIA WRAZ Z WYLEWKĄ BETONOWĄ - PROJEKTOWANA POSADZKA - PŁYTKI GRESOWE 30 x 30 cm , NA NOWEJ WYLEWCE BETONOWEJ MINIMUM 3,0 cm , POD PŁYTKAMI NALEśY WYKONAĆ IZOLACJĘ PRZECIWWILGOCIOWĄ Z PŁYNNEJ FOLII ; KOLOR POSADZKI - CIEMNY BEś SZCZEGÓŁOWY RYSUNEK ZNAJDUJE SIĘ W TOMIE 2.3 "DETALE I ZESTAWIENIA" - RYS nr 03-O/A-15a POM nr 3 I 4 - STNIEJĄCA POSADZKA - PARKIET DREWNIANY MOZIKOWY Z LISTWAMI PRZYPODŁOGOWYMI, NA ŚLEPEJ PODŁODZE DO DEMONTAśU WRAZ ZE SKUCIEM WYKLEWKI BETONOWEJ - PROJEKTOWANA POSADZKA - WYKONANIE NOWEGO PARKIETU DREWNIANEGO , Z DREWNA DĘBOWEGO, UKŁADANEGO W JODEŁKE . KLEPKA DUśA 8x40 cm, NA ŚLEPEJ PODŁODZE WRAZ Z NOWĄ WYLEWKA BETONOWĄ MINIMUM 3,0 cm NALEśY RÓWNIEś WYKONAĆ LISTWY PRZYPODŁOGOWE , CAŁĄ PODŁOGĘ ZABEZPIECZYĆ MATOWYM LAKIEREM DO PODŁÓG DREWNIANYCH NP. POLIURETANOWYM. WYBURZENIA ŁĄCZNIK POŁUDNIOWY ŁAZIENKA 263 WYMIANA ISTNIEJĄCEGO PARKIETU NA MARMUR - MORAWICA ŚREDNIA K ISTNIEJĄCA STOLARKA DREWNIANA OKIENNA I DRZWIOWA DO RENOWACJI 490 144 445 DRZWI DO DEMONTAśU DRZWI ISTNIEJĄCE - DO BIEśĄCEJ KONSERWACJI CZYSZCZENIE I MALOWANIE K1 DRZWI NOWO-PROJEKTOWANE D1 DRZWI (OKNO) ISTNIEJĄCE DO RENOWACJI R1 R2 UWAGA : POMIESZCZENIA OBJĘTE ZAKRESEM OPRACOWANIA MAJĄ WPROWADZONY SZRAF Z WZOREM POSADZKI LUB OPIS PRAC NA RZUCIE . 1 296 K 6. PROJEKTOWANA STOLARKA DRZWIOWA OZNACZONA LITERĄ "D" PROJEKTOWANE DRZWI NALEZY ZAMONTOWAĆ WRAZ Z OŚCIEśNICAMI WE WSKAZANYM NA RYSUNKU MIEJSCU SZCZEGÓŁY I WYMIARY ZNAJDUJĄ SIĘ W ZESTAWIENIU STOLARKI OKIENNEJ I DRZWIOWEJ NA RYSUNKU nr 03-O / A-18a. 7. ZESTAWIENIE STOLARKI OKIENNEJ I DRZWIOWEJ WRAZ Z WYMIARAMI ZNAJDUJE SIĘ NA RYSUNKU nr 03-0 / A-18a. R R R R R R R 8. SCHODY ZEWNĘTRZNE WEJŚCIOWE . RENOWACJA SCHODÓW KAMIENNYCH Z PIASKOWCA - OCZYSZCZENIE, USUNIĘCIE FUG, DEZYNFEKCJA POPRZEZ PĘDZLOWANIE LUB OPRYSK, FUGOWANIE SCHODÓW. SZCZEGÓŁOWY OPIS TECHNOLOGII W ODRĘBNYM OPRACOWANIU "PROJEKT RENOWACJI TYNKÓW I ELEMENTÓW Z KAMIENIA" , TOM 2.6. NAZWA INWESTYCJI / ADRES / DZIAŁKA Modernizacja zespołu pałacowo-parkowego w Rogalinie Rogalin ul. Arciszewskiego 2 dz. nr. 74, 75, 76 RENOWACJA SCHODÓW WEJŚCIOWYCH WG PROJ. TECHNOLOGII RENOWACJI TYNKÓW I ELEMENTÓW Z KAMIENIA TOM 2.6. INWESTOR / ADRES Muzeum Narodowe w Poznaniu Al. Marcinkowskiego 9 61-745 Poznań 6x16,5 30 03-SKRZYDŁO POŁUDNIOWE GŁÓWNY PROJEKTANT arch. Michal Lewiński 7131 / 84 / P / 2ooo A 1 9855 OFICYNA POŁUDNIOWA RZUT PARTERU SPRAWDZAJĄCY arch. Renata Sarnot 7131 / 27 / P / 2oo4 ZESPÓŁ PROJEKTOWY arch. Renata Sarnot 7131 / 27 / P / 2oo4 arch. Ewa Helt data : MAJ 2009 / GRUDZIEŃ 2012 stadium: PROJEKT WYKONAWCZY skala 1 : 5 o 03-O /A-15
 doc
                    doc download
															download                                                         Reklamacja
															Reklamacja                                                         
		     
		     
		     
		     
		     
		     
		    