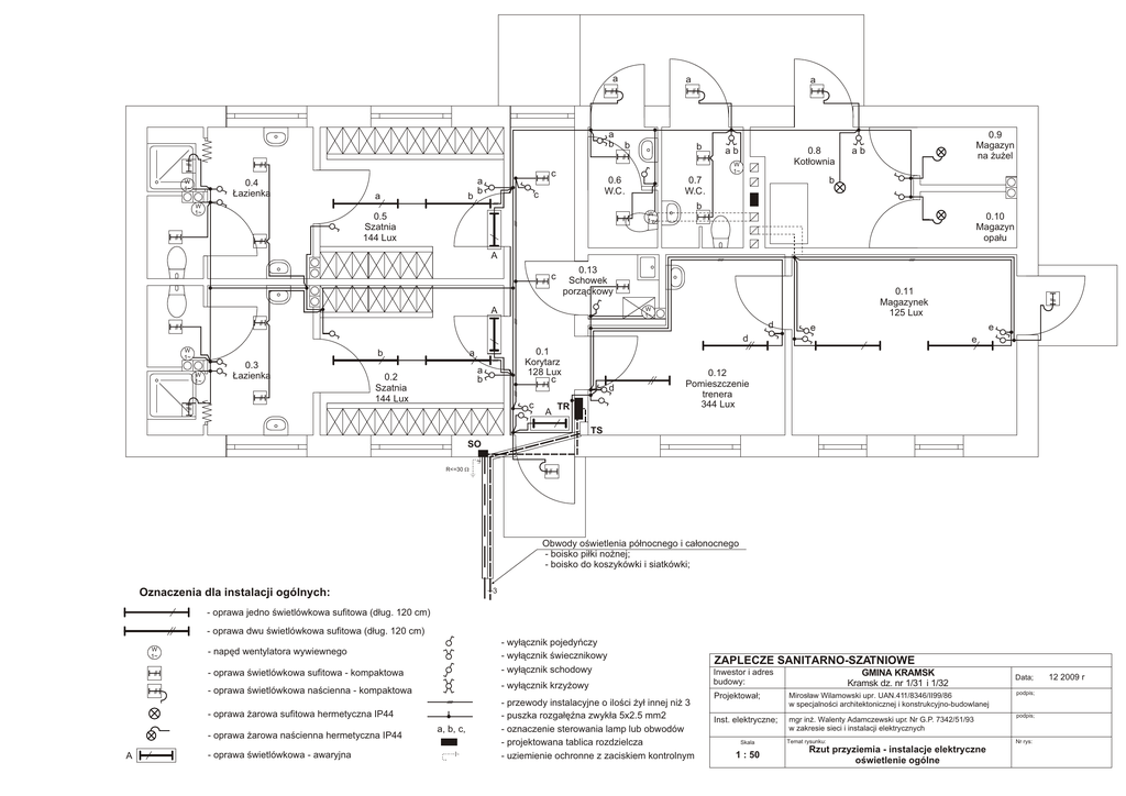
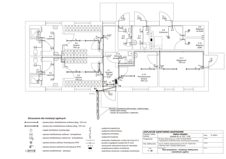
Zaplecze sanitarno-szatniowe

Transkrypt

Zaplecze sanitarno-szatniowe
a
a
b
0.4
£azienka
W
1~
a
b
b
a
b
ab
0.8
Kot³ownia
W
1~
c
a
b
a
0.6
W.C.
c
0.7
W.C.
0.9
Magazyn
na ¿u¿el
ab
b
b
W
1~
W
1~
0.5
Szatnia
144 Lux
0.10
Magazyn
opa³u
A
0.13
Schowek
porz¹dkowy
c
A
0.11
Magazynek
125 Lux
W
1~
d
e
e
d
W
1~
b
W
1~
0.3
£azienka
0.1
Korytarz
128 Lux
c
a
a
b
0.2
Szatnia
144 Lux
c
A
d
TR
e
0.12
Pomieszczenie
trenera
344 Lux
TS
SO
R<=30 W
Obwody oœwietlenia pó³nocnego i ca³onocnego
- boisko pi³ki no¿nej;
- boisko do koszykówki i siatkówki;
3
Oznaczenia dla instalacji ogólnych:
- oprawa jedno œwietlówkowa sufitowa (d³ug. 120 cm)
- oprawa dwu œwietlówkowa sufitowa (d³ug. 120 cm)
W
1~
- wy³¹cznik pojedyñczy
- wy³¹cznik œwiecznikowy
- wy³¹cznik schodowy
- napêd wentylatora wywiewnego
- oprawa œwietlówkowa sufitowa - kompaktowa
- wy³¹cznik krzy¿owy
- oprawa œwietlówkowa naœcienna - kompaktowa
- oprawa ¿arowa sufitowa hermetyczna IP44
- oprawa ¿arowa naœcienna hermetyczna IP44
A
- oprawa œwietlówkowa - awaryjna
a, b, c,
- przewody instalacyjne o iloœci ¿y³ innej ni¿ 3
- puszka rozga³êŸna zwyk³a 5x2.5 mm2
- oznaczenie sterowania lamp lub obwodów
- projektowana tablica rozdzielcza
- uziemienie ochronne z zaciskiem kontrolnym
ZAPLECZE SANITARNO-SZATNIOWE
Inwestor i adres
budowy:
GMINA KRAMSK
Kramsk dz. nr 1/31 i 1/32
Projektowa³;
Miros³aw Wilamowski upr. UAN.411/8346/II99/86
w specjalnoœci architektonicznej i konstrukcyjno-budowlanej
Inst. elektryczne;
mgr in¿. Walenty Adamczewski upr. Nr G.P. 7342/51/93
w zakresie sieci i instalacji elektrycznych
Skala
1 : 50
Temat rysunku:
Rzut przyziemia - instalacje elektryczne
oœwietlenie ogólne
Data;
podpis;
podpis;
Nr rys:
12 2009 r
0.9
Magazyn
na ¿u¿el
0.8
Kot³ownia
0.6
W.C.
0.4
£azienka
0.7
W.C.
0.5
Szatnia
0.10
Magazyn
opa³u
C.O.
0.13
Schowek
porz¹dkowy
0.3
£azienka
0.11
Magazynek
0.1
Korytarz
0.12
Pomieszczenie
trenera
0.2
Szatnia
TR
SO
R<=30 W
Oznaczenia dla instalacji ogólnych:
- gniazdo pojedyñcze hermetyczne 16A
- przewody instalacyjne o iloœci ¿y³ innej ni¿ 3
- puszka rozga³êŸna zwyk³a 5x2.5 mm2
C.O.
- odbiorniki stacjonarne: kocio³ C.O.
ZAPLECZE SANITARNO-SZATNIOWE
Inwestor i adres
budowy:
Projektowa³;
Miros³aw Wilamowski upr. UAN.411/8346/II99/86
w specjalnoœci architektonicznej i konstrukcyjno-budowlanej
Inst. elektryczne;
mgr in¿. Walenty Adamczewski upr. Nr G.P. 7342/51/93
w zakresie sieci i instalacji elektrycznych
- projektowana tablica rozdzielcza
- uziemienie ochronne z zaciskiem kontrolnym
GMINA KRAMSK
Kramsk dz. nr 1/31 i 1/32
Skala
1 : 50
Temat rysunku:
Rzut przyziemia - instalacje elektryczne
gniazda ogólne i odbiorniki stacjonarne
Data;
podpis;
podpis;
Nr rys:
12 2009 r
UWAGA:
1. Zwody i przewody odprowadzaj¹ce wykonaæ drutem DFe/Zn œr. 6 mm w uk³adzie naprê¿anym
2.Uziom otokowy wykonaæ z bednarki BFe/Zn 25x4
3.Wszystkie po³¹czenia instalacji w otoku wykonaæ przez spawanie, pozosta³e po³¹czenia przez
zaciski zabezpieczaj¹c antykorozyjnie.
4.Zaciski kontrolne mocowaæ na wysokoœci 1.8 m.
5.Zwody pionowe i uziomy pionowe zabudowaæ w rurce RL 28 w bruŸdzie w œcianie i zatynkowaæ
poza zaciskami kontrolnymi
Oznaczenia dla instalacji odgromowej:
ZAPLECZE SANITARNO-SZATNIOWE
Inwestor i adres
budowy:
Projektowa³;
Miros³aw Wilamowski upr. UAN.411/8346/II99/86
w specjalnoœci architektonicznej i konstrukcyjno-budowlanej
Inst. elektryczne;
mgr in¿. Walenty Adamczewski upr. Nr G.P. 7342/51/93
w zakresie sieci i instalacji elektrycznych
- po³¹czenia nieroz³¹czne zwodów.
- zwód pionowy
- zwód z zaciskiem kontrolnym
- uziom otokowy fundamentowy projektowany
GMINA KRAMSK
Kramsk dz. nr 1/31 i 1/32
Skala
1 : 50
Temat rysunku:
Rzut dachu - instalacja odgromowa
Data;
podpis;
podpis;
Nr rys:
12 2009 r
ZKP
z³¹cze typu ZKtw-1/4TL
L1,L2,L3,N
TR
FR 103
In=40 A
S191
B6
kWh
S191
B10
YDY 5 x 16 mm2
l = 9 mb
250
S193
C20
S191
B16
S191
B16
S191
B6
S191
B10
S191
B16
S191
B20
SO
R <= 30 W
A1
Istn. przy³¹cze
A1
S1
N
R<= 30 W
“R”
“R”
“A”
“A”
A1
S2
A2
N
PE
2
S3
A2
A2
PEN
OŒWIETLENIE PÓ£NOCNE
YDY 3x2.5
YDY 3x1.5
YKY 2x10
YKY 2x10
YKY 2x10
3
4
1
2
3
1600
1500
1500
300
YDY 3x2.5 YDY 3x2.5
1
2
REZERWA
OŒWIETLENIE PÓ£NOCNE
Nr. pola
3900
GNIAZDO PIECA
C.O.
YDY 5x16
2600
GNIAZDA OGÓLNE
0.6, 0.7, 0.8
Przewody
1300
GNIAZDA OGÓLNE
0.2, 0.3, 0.4,0.5, 0.11, 0.12
10000
OŒWIETLENIE OGÓLNE
PRZYZIEMIE
MOC [W]
OŒWIETLENIE CA£ONOCNE
YKY 4 x 16 mm
l = 116 mb
OCHRONNIKI PRZEPIÊCIOWE
4xDEHNguard
kWh
ZASILANIE Z TG
DO TR NA WY£ACZNIK G£ÓWNY
kWh
NAZWA POLA
kWh
TS
NP3F 25 A
DI = 30 mA
FR 103
In=40 A
5
ZAPLECZE SANITARNO-SZATNIOWE
Inwestor i adres
budowy:
GMINA KRAMSK
Kramsk dz. nr 1/31 i 1/32
Projektowa³;
Miros³aw Wilamowski upr. UAN.411/8346/II99/86
w specjalnoœci architektonicznej i konstrukcyjno-budowlanej
Inst. elektryczne;
mgr in¿. Walenty Adamczewski upr. Nr G.P. 7342/51/93
w zakresie sieci i instalacji elektrycznych
Skala
-
Data;
podpis;
podpis;
Nr rys:
Temat rysunku:
Schemat zasadniczy zasilania
12 2009 r
Ogrzewanie
Woda zimna
Woda gor¹ca
inne media
w rurach metal.
2
przewody typu DY 2.5 mm
listwa LZ 2.5
w puszce hermetycznej
szyna PE na tablicy TR
2
przewody typu DY 2.5 mm
ZAPLECZE SANITARNO-SZATNIOWE
Inwestor i adres
budowy:
GMINA KRAMSK
Kramsk dz. nr 1/31 i 1/32
Projektowa³;
Miros³aw Wilamowski upr. UAN.411/8346/II99/86
w specjalnoœci architektonicznej i konstrukcyjno-budowlanej
Inst. elektryczne;
mgr in¿. Walenty Adamczewski upr. Nr G.P. 7342/51/93
w zakresie sieci i instalacji elektrycznych
Skala
-
Temat rysunku:
Po³¹czenia szyny lokalnej w ³azience
Data;
podpis;
podpis;
Nr rys:
12 2009 r
LEGENDA
- proj. Wlz. kablowy nn 0.4 kV typu YKY 4x16 mm2
- proj. kable sterowania oœwietleniem nn 0.23 kV typu YKY 2x10 mm2
- proj. przepusty ochronne z rury AROTA typu DVK F 110 mm2
- proj. oprawa oœwietleniowa - pó³nocna
- proj. oprawa oœwietleniowa - ca³onocna
2
2
l= 6mb
SO
l= 6mb
l= 2x7mb
4
2
2
2
2
l= 1mb
l= 3mb
Istn. z³¹cze kablowo-pomiarowe
ZKP
ZAPLECZE SANITARNO-SZATNIOWE
Inwestor i adres
budowy:
GMINA KRAMSK
Kramsk dz. nr 1/31 i 1/32
Projektowa³;
Miros³aw Wilamowski upr. UAN.411/8346/II99/86
w specjalnoœci architektonicznej i konstrukcyjno-budowlanej
Inst. elektryczne;
mgr in¿. Walenty Adamczewski upr. Nr G.P. 7342/51/93
w zakresie sieci i instalacji elektrycznych
Skala
1 : 500
Temat rysunku:
Plan trasy wlz. i kabli zasilaj¹cych
oœwietlenie boisk sportowych
Data;
podpis;
podpis;
Nr rys:
12 2009 r