ababcdef 1 2 3 4 5 6 1 2 3 4 5 6 cdef

Transkrypt

ababcdef 1 2 3 4 5 6 1 2 3 4 5 6 cdef
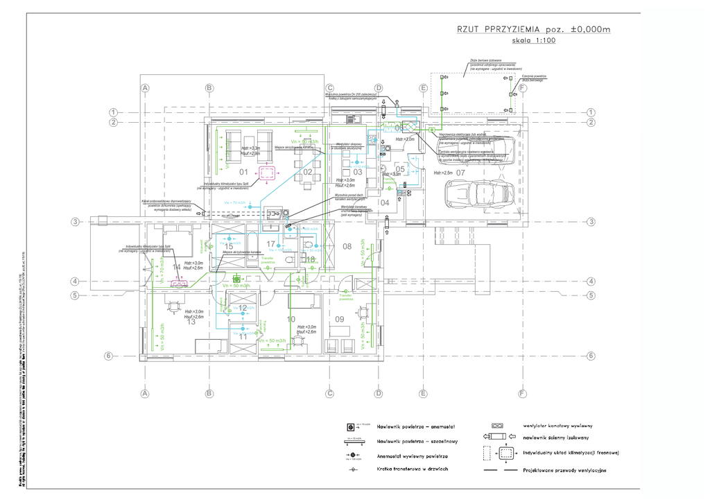
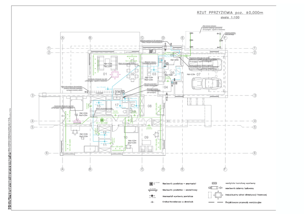
Złoże żwirowe izolowane
(przedmiot odrębnego opracowania)
(nie wymagane - uzgodnić w inwestorem)
Czerpnia powietrza
złoża żwirowego
A
B
C
D
E
F
Wurzutnia powietrza Dn 200 zabezieczyć
kratką z żaluzjami samozamykajacymi
1
2
1
2
Vn = 50 m3/h
Miejsce skrzyżowania kanałów
Hstr.=3,3m
Hsuf.=2,9m
Vw =110 m3/h
01
02
05
03
Hstr.=3,0m
Hstr.=3,0m
Hsuf.=2,6m
Indywidualny klimatyzator typu Split
(nie wymagany - uzgodnić w inwestorem)
Centrala wentylacyjna nawiewno-wywiewna
z wymiennikiem ciepła o parametrach dostosowanych
do oporów instalacji wewnętrznej i złoża żwirowego
Hstr.=2,5m
07
Transfer
powietrza
Wyrzutnia ponad dach
kanałem wentylacyjnym
Kanał podposadzkowy doprowadzający
powietrze do kominka (spełniający
wymagania dostawcy wkładu)
Nagrzewnica elektryczna (lub wodna)
uruchamiana pulserem, zabezpieczona presostatem
(nie wymagana - uzgodnić w inwestorem)
Hstr.=3,0m
Wentylator okapowy
w obudowie akustycznej
Vw = 100 m3/h
Vn = 130 m3/h
06
Vw = 70 m3/h
Wentylator kanałowy
uruchamiany higrostatem
(jeśli wymagany)
04
3
3
15
Vw = 100 m3/h
Miejsce skrzyżowania kanałów
Hstr.=3,0m
Transfer
powietrza
14 Hsuf.=2,6m
16
Vn = 50 m3/h
Transfer
powietrza
5
4
5
Transfer
powietrza
12
Vw = 50 m3/h
13
Vw = 50 m3/h
11
Transfer
powietrza
Vn = 50 m3/h
Hstr.=3,0m
Hsuf.=2,6m
08
Vw = 50 m3/h
18
Transfer
powietrza
Transfer
powietrza
Vn = 70 m3/h
4
17
Vw = 70 m3/h
10
09
Hstr.=3,0m
Hsuf.=2,6m
Vn = 50 m3/h
Vn = 50 m3/h
Transfer
powietrza
Indywidualny klimatyzator typu Split
(nie wymagany - uzgodnić w inwestorem)
Vn = 50 m3/h
Vw = 400 m3/h
6
6
A
B
C
D
Vn = 75 m3/h
Vn = 70 m3/h
Vw = 100 m3/h
E
F