M10525-1 – FIGHTER 2020 z FIGHTER 310/360/410P, zbiornik
Transkrypt
										M10525-1 – FIGHTER 2020 z FIGHTER 310/360/410P, zbiornik
                                        
                                        
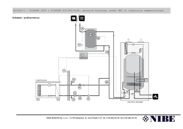
                                M10525-1 – FIGHTER 2020 z FIGHTER 310/360/410P, zbiornik buforowy, moduł SMO 10 (regulacja temperaturowa) Schemat podłączenia NIBE-BIAWAR Sp. z o.o., 15-703 Białystok, Al. Jana Pawła II 57, tel. 0 85 662 84 90, fax 0 85 662 84 09 M10525-1 – FIGHTER 2020 z FIGHTER 310/360/410P, zbiornik buforowy, moduł SMO 10 (regulacja temperaturowa) Zastosowanie Domy jednorodzinne. Opis działania systemu SMO 10 steruje pracą pompy ciepła FIGHTER 2020, zaworem mieszającym w FIGHTER 310/360/410P i pompami obiegowymi. Podstawowym źródłem ciepła jest FIGHTER 310/360/410P. FIGHTER 2020 pracuje na ogrzewanie zgodnie z wybraną w SMO 10 krzywą grzania, jednak z priorytetem produkcji ciepłej wody. Ciepła woda uŜytkowa jest produkowana przez pompę ciepła zasilaną powietrzem wentylacyjnym. PoniŜej temperatury równowagi*, gdy wydajność FIGHTER 2020 jest niewystarczająca do pokrycia zapotrzebowania na ciepło uruchomi się grzałka zanurzeniowa w FIGHTER 310/360/410P. PoniŜej temperatury wyłączenia spręŜarki** całkowite zapotrzebowanie na ciepło musi być pokryte przez kocioł elektryczny w FIGHTER 310/360/410P. * ** temperatura równowagi – temperatura zewnętrzna, przy której moc grzewcza pompy ciepła jest równa zapotrzebowaniu n ciepło budynku temperatura wyłączenia spręŜarki - temperatura zewnętrzna, przy której spręŜarka pompy ciepła powinna się wyłączyć (nie moŜe być niŜsza niŜ -20OC) NIBE-BIAWAR Sp. z o.o., 15-703 Białystok, Al. Jana Pawła II 57, tel. 0 85 662 84 90, fax 0 85 662 84 09 M10525-1 – FIGHTER 2020 z FIGHTER 310/360/410P, zbiornik buforowy, moduł SMO 10 (regulacja temperaturowa) Specyfikacja urządzeń Poz. 15 31 35 44 49 52* 56 63 76 81 89 93 94 120 Nazwa urządzenia Czujnik temperatury zewnętrznej Stycznik pomocniczy Pompa obiegowa Zawór odcinający Zawór zwrotny Zawór bezpieczeństwa Czujnik temperatury, powrót system grzewczy 2 Filtr zanieczyszczeń Zawór spustowy Zawór regulacyjny Czujnik temperatury, zasilanie bufora SMO 10 Czujnik temperatury, powrót system grzewczy 1 Zbiornik buforowy Symbol urządzenia HR 10 Dostawca NIBE NIBE Uwagi Dostarczane z SMO 10 NIBE Dostarczane z FIGHTER 2020 Dostarczane z SMO 10 Dostarczane z SMO 10 Bu BIAWAR NIBE-BIAWAR Sp. z o.o., 15-703 Białystok, Al. Jana Pawła II 57, tel. 0 85 662 84 90, fax 0 85 662 84 09
 doc
                    doc download
															download                                                         Reklamacja
															Reklamacja                                                         
		     
		     
		     
		     
		     
		     
		     
		    