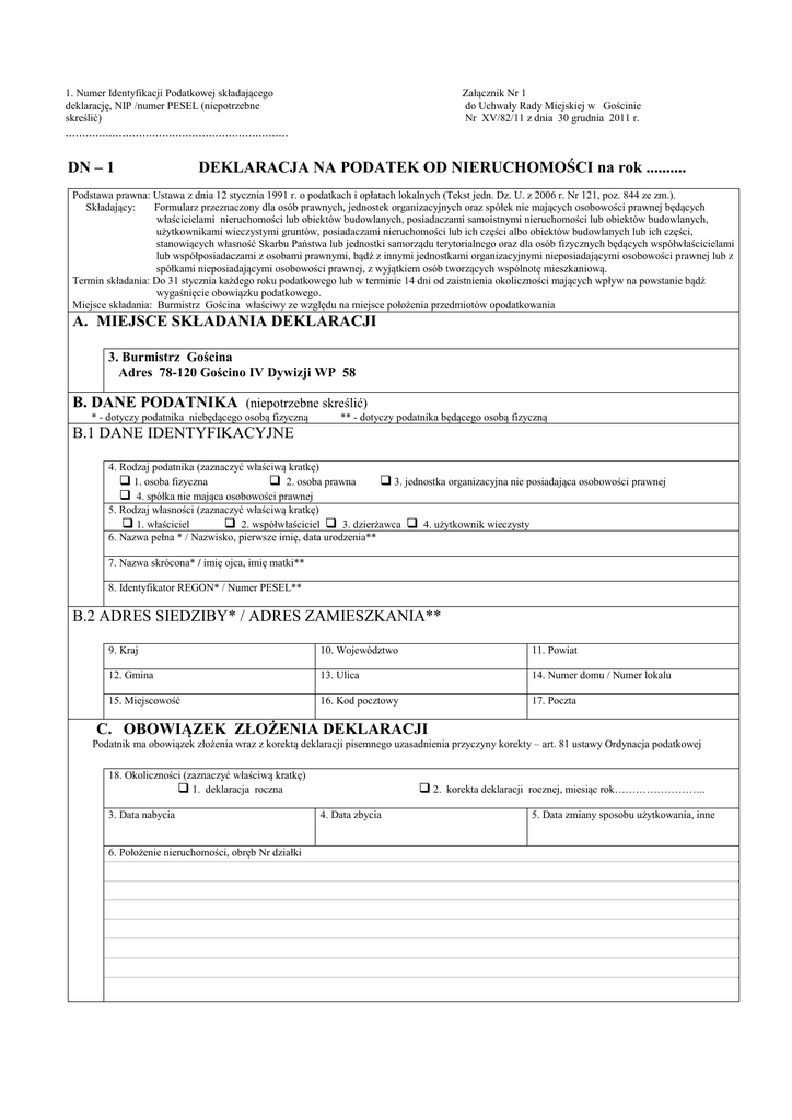
1 DEKLARACJA NA PODATEK OD NIERUCHOMOŚCI na rok

Transkrypt

1 DEKLARACJA NA PODATEK OD NIERUCHOMOŚCI na rok
1. Numer Identyfikacji Podatkowej składającego
deklarację, NIP /numer PESEL (niepotrzebne
skreślić)
Załącznik Nr 1
do Uchwały Rady Miejskiej w Gościnie
Nr XV/82/11 z dnia 30 grudnia 2011 r.
...................................................................
DN – 1
DEKLARACJA NA PODATEK OD NIERUCHOMOŚCI na rok ..........
Podstawa prawna: Ustawa z dnia 12 stycznia 1991 r. o podatkach i opłatach lokalnych (Tekst jedn. Dz. U. z 2006 r. Nr 121, poz. 844 ze zm.).
Składający:
Formularz przeznaczony dla osób prawnych, jednostek organizacyjnych oraz spółek nie mających osobowości prawnej będących
właścicielami nieruchomości lub obiektów budowlanych, posiadaczami samoistnymi nieruchomości lub obiektów budowlanych,
użytkownikami wieczystymi gruntów, posiadaczami nieruchomości lub ich części albo obiektów budowlanych lub ich części,
stanowiących własność Skarbu Państwa lub jednostki samorządu terytorialnego oraz dla osób fizycznych będących współwłaścicielami
lub współposiadaczami z osobami prawnymi, bądź z innymi jednostkami organizacyjnymi nieposiadającymi osobowości prawnej lub z
spółkami nieposiadającymi osobowości prawnej, z wyjątkiem osób tworzących wspólnotę mieszkaniową.
Termin składania: Do 31 stycznia każdego roku podatkowego lub w terminie 14 dni od zaistnienia okoliczności mających wpływ na powstanie bądź
wygaśnięcie obowiązku podatkowego.
Miejsce składania: Burmistrz Gościna właściwy ze względu na miejsce położenia przedmiotów opodatkowania
A. MIEJSCE SKŁADANIA DEKLARACJI
3. Burmistrz Gościna
Adres 78-120 Gościno IV Dywizji WP 58
B. DANE PODATNIKA (niepotrzebne skreślić)
* - dotyczy podatnika niebędącego osobą fizyczną
** - dotyczy podatnika będącego osobą fizyczną
B.1 DANE IDENTYFIKACYJNE
4. Rodzaj podatnika (zaznaczyć właściwą kratkę)
1. osoba fizyczna
2. osoba prawna
3. jednostka organizacyjna nie posiadająca osobowości prawnej
4. spółka nie mająca osobowości prawnej
5. Rodzaj własności (zaznaczyć właściwą kratkę)
1. właściciel
2. współwłaściciel 3. dzierżawca 4. użytkownik wieczysty
6. Nazwa pełna * / Nazwisko, pierwsze imię, data urodzenia**
7. Nazwa skrócona* / imię ojca, imię matki**
8. Identyfikator REGON* / Numer PESEL**
B.2 ADRES SIEDZIBY* / ADRES ZAMIESZKANIA**
9. Kraj
10. Województwo
11. Powiat
12. Gmina
13. Ulica
14. Numer domu / Numer lokalu
15. Miejscowość
16. Kod pocztowy
17. Poczta
C. OBOWIĄZEK ZŁOŻENIA DEKLARACJI
Podatnik ma obowiązek złożenia wraz z korektą deklaracji pisemnego uzasadnienia przyczyny korekty – art. 81 ustawy Ordynacja podatkowej
18. Okoliczności (zaznaczyć właściwą kratkę)
1. deklaracja roczna
3. Data nabycia
6. Położenie nieruchomości, obręb Nr działki
2. korekta deklaracji rocznej, miesiąc rok……………………..
4. Data zbycia
5. Data zmiany sposobu użytkowania, inne
D. DANE DOTYCZĄCE PRZEDMIOTÓW OPODATKOWANIA (z wyjątkiem zwolnionych)
Wyszczególnienie
Podstawa
opodatkowania
Stawka podatku
wynikająca z Uchwały
Rady Miejskiej Gościno z
dnia ........ Nr..... .....
w zł, gr.
Kwota podatku
w zł, gr.
D.1 POWIERZCHNIA GRUNTÓW
1. związanych z prowadzeniem działalności gospodarczej,
bez względu na sposób zakwalifikowania w ewidencji
gruntów i budynków za wyjątkiem 1 lit a
1a. związanych z prowadzeniem działalności gospodarczej,
w zakresie świadczenia usług wypoczynkowych i
turystycznych , bez względu na sposób zakwalifikowania
w ewidencji gruntów i budynków
2. pod jeziorami, zajętych na zbiorniki wodne retencyjne
lub elektrowni wodnych
3. pozostałe grunty w tym zajęte na prowadzenie odpłatnej
działalności pożytku publicznego przez organizacje
pożytku publicznego
19.
20.
21.
................... m2
22.
.................,.......
23.
.................,.......
24.
................... m2
.................,.......
.................,.......
25.
26.
27.
.................... ha
28.
.................,.......
29.
.................,.......
30.
................... m2
.................,.......
.................,.......
D.2 POWIERZCHNIA UŻYTKOWA BUDYNKÓW LUB ICH CZĘŚCI (*)
1. mieszkalnych – ogółem
w tym:
- kondygnacji o wysokości od 1,40 do 2,20 m (zaliczyć 50%
powierzchni)
- kondygnacji o wysokości powyżej 2,20 m
2. związanych z prowadzeniem działalności gospodarczej oraz od
budynków mieszkalnych lub ich części zajętych na prowadzenie
działalności gospodarczej za wyjątkiem 2a, 2b
w tym:
- kondygnacji o wysokości od 1,40 do 2,20 m (zaliczyć 50%
powierzchni)
- kondygnacji o wysokości powyżej 2,20 m
31.
32.
33.
..................... m2 ...................,...... ...................,......
........................... m2
........................,........ ........................,........
........................... m2
........................,........ ........................,........
34.
35.
..................... m2 ...................,...... ....................,.....
........................... m2
........................,........ ........................,........
........................... m2
........................,........ ........................,........
2a. zajętych na prowadzenie działalności gospodarczej oraz od budynków 37.
mieszkalnych lub ich części zajętych na prowadzenie działalności
gospodarczej w zakresie świadczenia usług turystycznych i
wypoczynkowych
w tym:
- kondygnacji o wysokości od 1,40 do 2,20 m (zaliczyć 50%
powierzchni)
- kondygnacji o wysokości powyżej 2,20 m
2b. zajętych na prowadzenie działalności gospodarczej oraz od budynków
mieszkalnych lub ich części zajętych na prowadzenie działalności
gospodarczej w zakresie świadczenia usług żywienia zbiorowego dzieci
w szkołach i przedszkolach
w tym:
- kondygnacji o wysokości od 1,40 do 2,20 m (zaliczyć 50%
powierzchni)
- kondygnacji o wysokości powyżej 2,20 m
3. zajęte na prowadzenie działalności gospodarczej w zakresie obrotu
kwalifikowanym materiałem siewnym ogółem,
w tym:
- kondygnacji o wysokości od 1,40 do 2,20 m (zaliczyć 50%
powierzchni)
- kondygnacji o wysokości powyżej 2,20 m
4. związanych z udzielaniem świadczeń zdrowotnych, w rozumieniu
przepisów o działalności leczniczej, zajętych przez podmioty
udzielające tych świadczeń
w tym:
- kondygnacji o wysokości od 1,40 do 2,20 m (zaliczyć 50%
powierzchni)
- kondygnacji o wysokości powyżej 2,20 m
5. pozostałych, w tym zajętych na prowadzenie odpłatnej działalności
pożytku publicznego przez organizacje pożytku publicznego ogółem
w tym:
- kondygnacji o wysokości od 1,40 do 2,20 m (zaliczyć 50%
powierzchni)
- kondygnacji o wysokości powyżej 2,20 m
36.
38.
39.
..................... m2 ...................,...... ..................,.......
........................... m2
........................,........ ......................,........
........................... m2
........................,........ ......................,........
40.
41.
42.
..................... m2 ...................,...... ..................,.......
........................... m2
........................,........ ......................,........
........................... m2
........................,........ ......................,........
43.
44.
45.
..................... m2 ...................,...... ...................,......
........................... m2
........................,........ ........................,........
2
........................,........ ........................,........
........................... m
46.
47.
48.
..................... m2 ...................,...... ..................,.......
........................... m2
2
........................... m
........................,........ ......................,........
........................,........ .......................,........
49.
50.
..................... m2 ..................,......
51.
..................,.......
........................... m2
.......................,........
.......................,........
2
.......................,........
........................,........
........................... m
* Do powierzchni użytkowej budynku lub jego części należy zaliczyć powierzchnię mierzoną, po wewnętrznej długości ścian na wszystkich kondygnacjach, z wyjątkiem powierzchni klatek schodowych
oraz szybów dźwigowych. Za kondygnację uważa się również garaże podziemne, piwnice, sutereny i poddasza użytkowe.
D. 3 BUDOWLE
1. budowle
(wartość zł, o której mowa w przepisach o podatkach dochodowych)
52.
.......................
53.
.............
54.
.................,.......
E. ŁĄCZNA KWOTA PODATKU
Kwota podatku (zaokrąglona do pełnych złotych)
Suma kwot z lit.. D
55.
.........................zł
F. INFORMACJA O PRZEDMIOTACH ZWOLNIONYCH
(podać powierzchnię, bądź wartość budowli przedmiotów zwolnionych oraz przepis prawa - z jakiego tytułu występuje zwolnienie)
F. 1 ZWOLNIENIA PRZEDMIOTOWE
Powierzchnia
gruntów
Powierzchnia
budynków
Wartość budowli
57.
58.
59.
Podstawa prawna zwolnienia
56.
Miejsce położenia
60.
Oznaczenie w
ewidencji
budynków i
gruntów
61.
Stawka podatku jaką
byłby objęty dany
przedmiot gdyby
podlegał
opodatkowaniu
62.
F. 2 ZWOLNIENIA PODMIOTOWE
Powierzchnia
gruntów
Powierzchnia
budynków
Wartość budowli
64.
65.
66.
Podstawa prawna zwolnienia
63.
Miejsce położenia
67.
Oznaczenie w
ewidencji
budynków i
gruntów
68.
Stawka podatku jaką
byłby objęty dany
przedmiot gdyby
podlegał
opodatkowaniu
69.
G. OŚWIADCZENIE I PODPIS PODATNIKA / OSOBY REPREZENTUĄCEJ PODATNIKA
Oświadczam, że są mi znane przepisy Kodeksu karnego skarbowego o odpowiedzialności za podanie danych niezgodnych z rzeczywistością
70. Imię i nazwisko osoby odpowiedzialnej za prawidłowe obliczenie podatku
71. Data wypełnienia (dzień – miesiąc - rok)
72. Podpis (pieczęć) podatnika / osoby reprezentującej podatnika
73. Telefon kontaktowy
H. ADNOTACJE ORGANU PODATKOWEGO
74. Uwagi organu podatkowego
75. Identyfikator przyjmującego formularz
76. Podpis przyjmującego formularz
POUCZENIE:
1. Niniejsza deklaracja stanowi podstawę do wystawienia tytułu wykonawczego, zgodnie z przepisami ustawy z dnia
17 czerwca 1966 roku o postępowaniu egzekucyjnym w administracji (Dz. U. z 2005, Nr poz. 1954 z póź. zm.),
2. Obliczony w deklaracji podatek od nieruchomości należy wpłacić bez wezwania w ratach proporcjonalnych do
czasu trwania obowiązku podatkowego, na rachunek Gminy Gościno - PBS O/Gościno 66 8581 1030 0500 0273 2000 0001
w terminie do dnia 15 każdego miesiąca, a za styczeń do dnia 31 stycznia
Raty
Kwota
raty
I
II
III
IV
V
VI
VII
VIII
IX
X
XI
XII
3. Obowiązek składnia deklaracji na podatek od nieruchomości dotyczy również podatników korzystających ze zwolnień na mocy przepisów ustawy z
dnia 12 stycznia 1991 r. o podatkach i opłatach lokalnych (Tekst jednolity Dz. U. z 2006 r. Nr 121, poz..844 z późn. zm.)