RZUT PODDASZA 1:100
Transkrypt
										RZUT PODDASZA 1:100
                                        
                                        
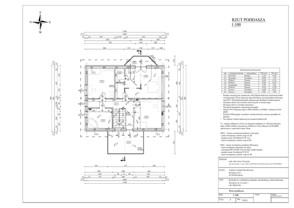
                                E N RZUT PODDASZA 1:100 S W 1140 1085 12 130 12 27,5 15 25 382 27,5 524 300 160 650 720 560 135 25 190 260 210 135 15 100 A 25 15 27,5 135 160 (0) 210 15 2/8 NR 2/1 2/2 2/3 2/4 2/5 2/6 2/7 2/8 508 431 22 70 12 70 205 Zestawienie pomieszczeń MZ2 2/4 2/3 431 T-1 2/5 200 278 T-1 120 25 27,5 bariera h=100cm 219 150 MW2 150 (90) 120 165 90 65 90 96 bariera h=90cm 1 1 25 195 2/2 - 110 15 27,5 T-1 325 T-1 90 (0) 210 90 (90) 120 25 180 2/7 + 2,75 - 2/6 282 285 150 (90) 120 150 80 205 - - + 2,77 2/1 290 + 2,77 15 27,5 90 1 417 12 1 12 885 940 243 17x163 303 90 90 (90) 120 90 80 205 12120 67 90 165 90 (90) 120 80 205 940 885 12 70 80 205 + 2,77 POMISZCZENIE Korytarz Łazienka Pokój 2 Pokój 3 Garderoba Pokój 4 Taras 2 Taras 3 POSADZKA Panele Terakota Panele Panele Panele Panele Terakota Terakota PM (m2) 11,46 10,00 16,46 25,68 2,60 16,30 16,80 4,66 PU(m2) 11,46 7,30 13,52 23,97 1,60 13,26 14,57 3,68 Pustaki wentylacyjne ceramiczne 188/188mm budować od pozionu kratki wentylacyjnej. Przez strop rura spiro Ø150mm, powyżej piętra izolowana rura PCV. Ponad połacią dachu zakończenie daszkiem wentylacyjnym. Wymiary okien oraz otworów drzwiowych w świetle muru Wymiary drzwi w świetle ościerznicy Wysokość parapetów od poziomu posadzki Wieńce W-2 zbrojone stalą A-IIIN (34GS) i A-0/St0S/ z betonu C16/20 (B20) Poziom 0,00 przyjęto wysokość wykończeniowej warstwy posadzki na parterze Nie opierać więźby dachowej na ścianach działowych T1 - trzpień żelbetowy 25x25 cm zbrojenie podłużne 4 x Ø12mm zbrojone stała A-IIIN (34GS), strzemiona o Ø6mm co 25cm, Beton C16/20 (B20) zakotwione w spoiwach ściany 50cm MW2 - ściana wewnętrzna działowa 12cm proj. - tynk wewnętrzny cement.-wap. kl. III - pustak ceram. Porotherm P+W 11,5 - tynk wewnętrzny cement.-wap. kl III MZ2 - ściana zewnętrzna ocieplona 40cm proj. - tynk zewnętrzny mineralny na siatce - styropian EPS 70-040 15cm na klej i kołki montaż. - pustak ceram. Porotherm P+W 25 - tynk wewnętrzny cement.-wap. kl. III 2% bariera h=100cm A Projektował: tech. bud. Jerzy Tomczyk upr. bud. do proj. w spec. archit. nr GP7342/236/94 konstr.-bud. nr GP 7342/236B/94 325 15 27,5 25 398 430 351 517 90 12 300 73 90 290 1085 1140 298 12 442 457 395 25 15 27,5 Inwestor: Andrzej i Jolanta Sieczkowscy Krzykosy 63A 62-650 Krzykosy Temat: Rozbudowa z nadbudową budynku mieszkalnego, jednorodzinnego Krzykosy dz. nr ewid. 1 obr. Dąbrówka Rzut poddasza Skala: Nr rys.: Podpis: 1:100 5 Data: 2016-06 nr upr.: GP7342/236/94
 doc
                    doc download
															download                                                         Reklamacja
															Reklamacja                                                         
		     
		     
		     
		     
		     
		     
		     
		     
		     
		    