E:\\Paweł\\2. Projekty\\Aktualne\\GABRYŚ Zbigniew

Transkrypt

E:\\Paweł\\2. Projekty\\Aktualne\\GABRYŚ Zbigniew
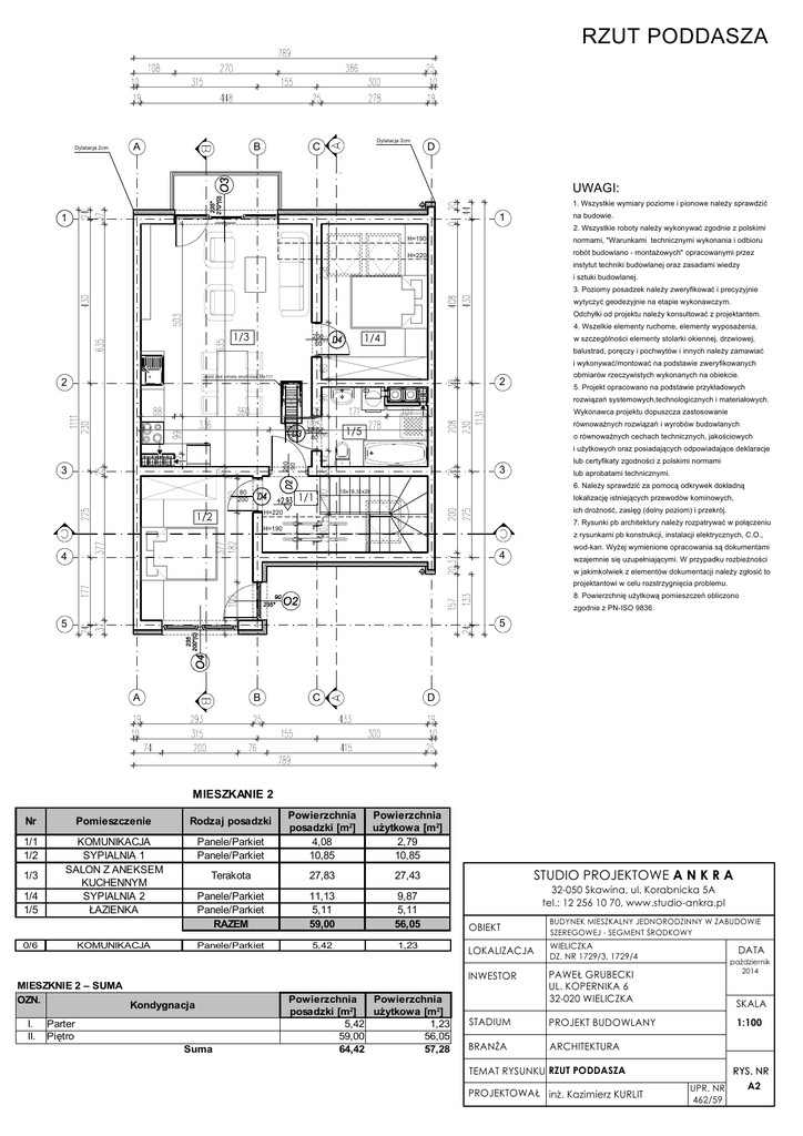
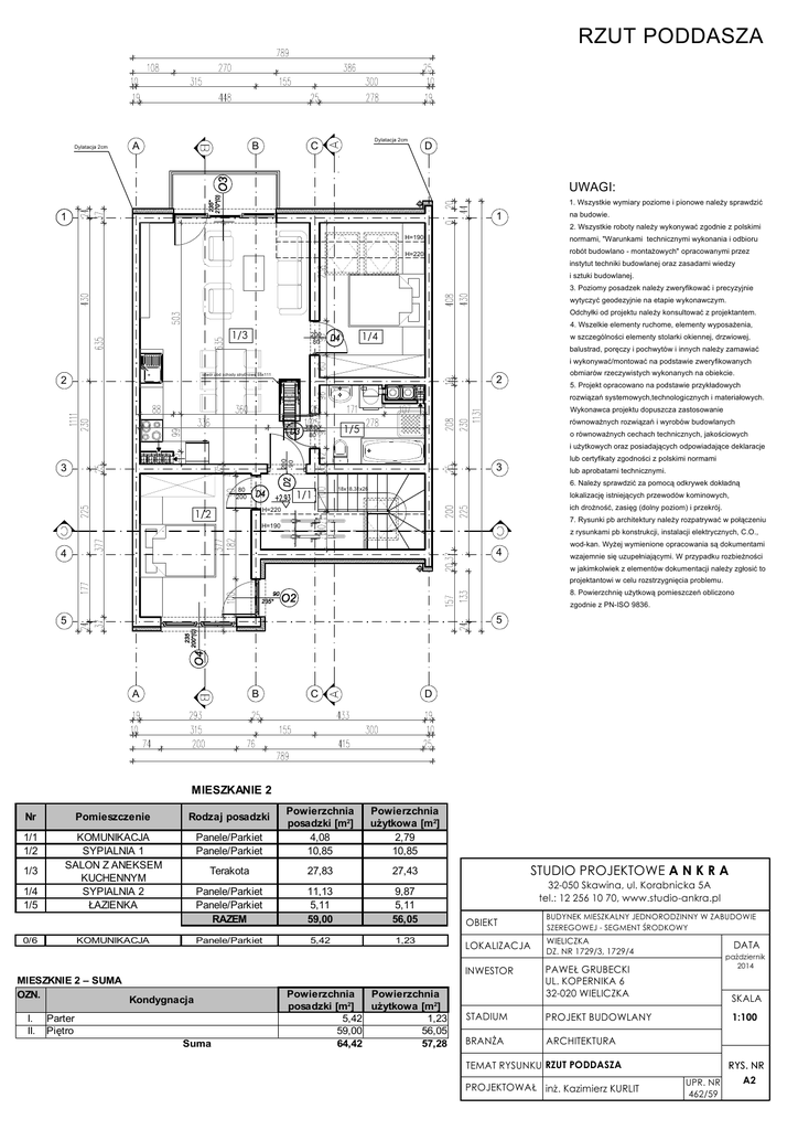
RZUT PODDASZA
Dylatacja 2cm
A
B
Dylatacja 2cm
C
D
UWAGI:
1. Wszystkie wymiary poziome i pionowe naleŜy sprawdzić
1
1
na budowie.
2. Wszystkie roboty naleŜy wykonywać zgodnie z polskimi
H=190
normami, "Warunkami technicznymi wykonania i odbioru
H=220
robót budowlano - montaŜowych" opracowanymi przez
instytut techniki budowlanej oraz zasadami wiedzy
i sztuki budowlanej.
3. Poziomy posadzek naleŜy zweryfikować i precyzyjnie
wytyczyć geodezyjnie na etapie wykonawczym.
Odchyłki od projektu naleŜy konsultować z projektantem.
4. Wszelkie elementy ruchome, elementy wyposaŜenia,
1/3
1/4
200
80
w szczególności elementy stolarki okiennej, drzwiowej,
balustrad, poręczy i pochwytów i innych naleŜy zamawiać
i wykonywać/montować na podstawie zweryfikowanych
otwór pod schody strychowe 55x111
2
2
obmiarów rzeczywistych wykonanych na obiekcie.
5. Projekt opracowano na podstawie przykładowych
rozwiązań systemowych,technologicznych i materiałowych.
Wykonawca projektu dopuszcza zastosowanie
200
80
równowaŜnych rozwiązań i wyrobów budowlanych
1/5
o równowaŜnych cechach technicznych, jakościowych
i uŜytkowych oraz posiadających odpowiadające deklaracje
lub certyfikaty zgodności z polskimi normami
200
90
3
80
200
3
1/1
6. NaleŜy sprawdzić za pomocą odkrywek dokładną
18x18,31x26
lokalizację istniejących przewodów kominowych,
ich droŜność, zasięg (dolny poziom) i przekrój.
H=220
1/2
lub aprobatami technicznymi.
7. Rysunki pb architektury naleŜy rozpatrywać w połączeniu
H=190
z rysunkami pb konstrukcji, instalacji elektrycznych, C.O.,
wod-kan. WyŜej wymienione opracowania są dokumentami
4
4
wzajemnie się uzupełniającymi. W przypadku rozbieŜności
w jakimkolwiek z elementów dokumentacji naleŜy zgłosić to
projektantowi w celu rozstrzygnięcia problemu.
8. Powierzchnię uŜytkową pomieszczeń obliczono
zgodnie z PN-ISO 9836.
5
5
A
B
C
D
MIESZKANIE 2
Nr
Pomieszczenie
Rodzaj posadzki
1/1
1/2
KOMUNIKACJA
SYPIALNIA 1
SALON Z ANEKSEM
KUCHENNYM
SYPIALNIA 2
ŁAZIENKA
Panele/Parkiet
Panele/Parkiet
1/3
1/4
1/5
0/6
KOMUNIKACJA
Powierzchnia
posadzki [m2]
4,08
10,85
Powierzchnia
uŜytkowa [m2]
2,79
10,85
Terakota
27,83
27,43
Panele/Parkiet
Panele/Parkiet
RAZEM
11,13
5,11
59,00
9,87
5,11
56,05
Panele/Parkiet
5,42
1,23
STUDIO PROJEKTOWE A N K R A
32-050 Skawina, ul. Korabnicka 5A
tel.: 12 256 10 70, www.studio-ankra.pl
OBIEKT
BUDYNEK MIESZKALNY JEDNORODZINNY W ZABUDOWIE
SZEREGOWEJ - SEGMENT ŚRODKOWY
LOKALIZACJA
WIELICZKA
DZ. NR 1729/3, 1729/4
INWESTOR
MIESZKNIE 2 – SUMA
OZN.
I.
II.
Kondygnacja
Parter
Piętro
Suma
Powierzchnia
Powierzchnia
uŜytkowa [m2]
posadzki [m2]
5,42
1,23
59,00
56,05
64,42
57,28
DATA
październik
2014
PAWEŁ GRUBECKI
UL. KOPERNIKA 6
32-020 WIELICZKA
STADIUM
PROJEKT BUDOWLANY
BRANśA
ARCHITEKTURA
SKALA
1:100
TEMAT RYSUNKU RZUT PODDASZA
PROJEKTOWAŁ inŜ. Kazimierz KURLIT
RYS. NR
UPR. NR
462/59
A2