Drukowanie ArcView - Urząd Gminy Siedlce
Transkrypt
										Drukowanie ArcView - Urząd Gminy Siedlce
                                        
                                        
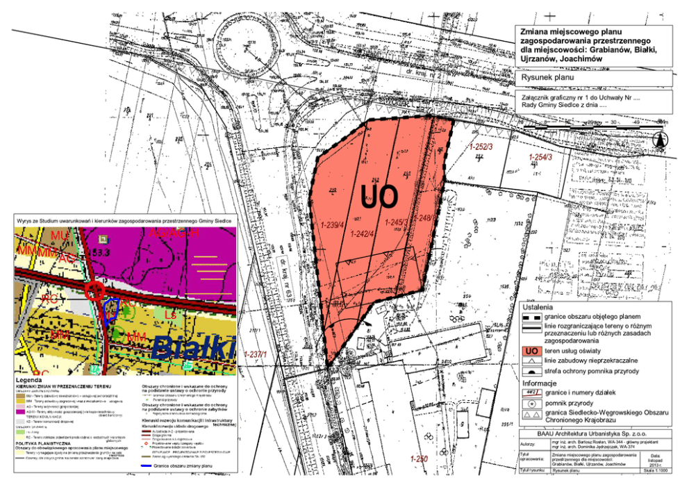
                                Zmiana miejscowego planu zagospodarowania przestrzennego dla miejscowoci: Grabianów, Bia³ki, Ujrzanów, Joachimów dr. k raj. nr 2 Rysunek planu Za³¹cznik graficzny nr 1 do Uchwa³y Nr .... S-W OC hK Rady Gminy Siedlce z dnia .... 10 0 10 20 30 40 50 m ¥¥¥¥ ¥ ¥¥ ¥ ¥ ¥ ¥ ¥¥¥ ¥¥ ¥ ¥ ¥ ¥ ¥¥¥ ¥¥ ¥ ¥ ¥ ¥ ¥¥¥ ¥¥ 1-252/3 1-254/3 UO Wyrys ze Studium uwarunkowañ i kierunków zagospodarowania przestrzennego Gminy Siedlce 1-245/3 1-239/4 1-248/3 ) ) raj. dr. k ) 1-242/4 ) 3 nr 6 Ustalenia 7 7 1-237/1 granice obszaru objêtego planem linie rozgraniczaj¹ce tereny o ró¿nym przeznaczeniu lub ró¿nych zasadach â â UO zagospodarowania teren us³ug owiaty linie zabudowy nieprzekraczalne strefa ochrony pomnika przyrody Informacje 44/2 granice i numery dzia³ek â pomnik przyrody granica Siedlecko-Wêgrowskiego Obszaru Chronionego Krajobrazu BAAU Architektura Urbanistyka Sp. z.o.o. Autorzy: 1-250 mgr in¿. arch. Bartosz Ros³an, WA-344 - g³ówny projektant mgr in¿. arch. Dominika Jêdrzejczak, WA-374 Tytu³ Zmiana miejscowego planu zagospodarowania opracowania: przestrzennego dla miejscowoci: Grabianów, Bia³ki, Ujrzanów, Joachimów Granice obszaru zmiany planu Tytu³ rysunku: Rysunek planu Data: listopad 2013 r. Skala 1:1000