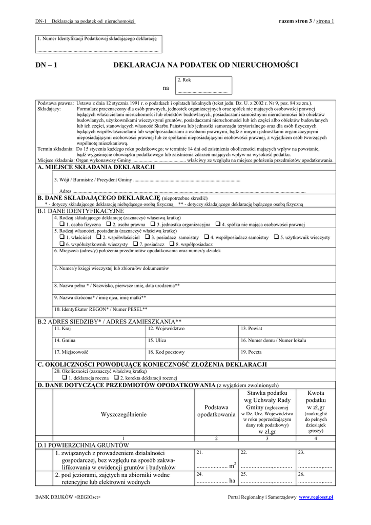
DN ± 1 DEKLARACJA NA PODATEK OD NIERUCHOMOŚCI

Transkrypt

DN ± 1 DEKLARACJA NA PODATEK OD NIERUCHOMOŚCI
'1'HNODUDFMDQDSRGDWHNRGQLHUXFKRPRFL
razem stron 3 / strona 1
1XPHU,GHQW\ILNDFML3RGDWNRZHMVNáDGDMFHJRGHNODUDFM
.................................................................................................
'1±'(./$5$&-$1$32'$7(.2'1,(58&+202&,
2. Rok
na
........................................
3RGVWDZDSUDZQD8VWDZD]GQLDVW\F]QLDURSRGDWNDFKLRSáDWDFKORNDOQ\FKWHNVWMHGQ']8]U1USR]]H]P
6NáDGDMF\)RUPXODU]SU]H]QDF]RQ\GODRVyESUDZQ\FKMHGQRVWHNRUJDQL]DF\MQ\FKRUD]VSyáHNQLHPDMF\FKRVRERZRFLSUDZQHM
E
GF\FKZáDFLFLHODPLQLHUXFKRPRFLOXERELHNWyZEXGRZODQ\FKSRVLDGDF]DPLVDPRLVWQ\PLQLHUXFKRPRFLOXERELHNWyZ
EXGRZODQ\FKX*\WNRZQLNDPLZLHF]\VW\PLJUXQWyZSRVLDGDF]DPLQLHUXFKRPRFLOXELFKF]
FLDOERRELHNWyZEXGRZODQ\FK
OXELFKF]
FLVWDQRZLF\FKZáDVQRü6NDUEX3DVWZDOXEMHGQRVWNLVDPRU]GXWHU\WRULDOQHJRRUD]GODRVyEIL]\F]Q\FK
E
GF\FKZVSyáZáDFLFLHODPLOXEZVSyáSRVLDGDF]DPL]RVREDPLSUDZQ\PLEG(]LQQ\PLMHGQRVWNDPLRUJDQL]DF\MQ\PL
QLHSRVLDGDMF\PLRVRERZRFLSUDZQHMOXE]HVSyáNDPLQLHSRVLDGDMF\PLRVRERZRFLSUDZQHM]Z\MWNLHPRVyEWZRU]F\FK
ZVSyOQRW
PLHV]NDQLRZ
7HUPLQVNáDGDQLD'RVW\F]QLDND*GHJRURNXSRGDWNRZHJRZWHUPLQLHGQLRG]DLVWQLHQLDRNROLF]QRFLPDMF\FKZSá\ZQDSRZVWDQLH
EG(Z\JDQL
FLHRERZL]NXSRGDWNRZHJROXE]DLVWQLHQLD]GDU]HPDMF\FKZSá\ZQDZ\VRNRüSRGDWNX
0LHMVFHVNáDGDQLD2UJDQZ\NRQDZF]\*PLQ\ZáDFLZ\]HZ]JO
GXQDPLHMVFHSRáR*HQLDSU]HGPLRWyZRSRGDWNRZDQLD
$0,(-6&(6.à$'$1,$'(./$5$&-,
3. Wójt / Burmistrz / Prezydent Gminy ......................................................................................
Adres ...........................................................................................................................................................................................
%'$1(6.à$'$-&(*2'(./$5$&-QLHSRWU]HEQHVNUHOLü
GRW\F]\VNáDGDMFHJRGHNODUDFM
QLHE
GFHJRRVREIL]\F]QGRW\F]\VNáDGDMFHJRGHNODUDFM
E
GFHJRRVREIL]\F]Q
B.1 DANE IDENTYFIKACYJNE
5RG]DMVNáDGDMFHJRGHNODUDFM
]D]QDF]\üZáDFLZNUDWN
Y 1. osoba fizyczna Y 2. osoba prawna Y 3. jednostka organizacyjna YVSyáNDQLHPDMFDRVRERZRFLSUDZQHM
5RG]DMZáDVQRFLSRVLDGDQLD]D]QDF]\üZáDFLZNUDWN
YZáDFLFLHOYZVSyáZáDFLFLHOY 3. posiadacz samoistny YZVSyáSRVLDGDF]VDPRLVWQ\YX*\WNRZQLNZLHF]\VW\
YZVSyáX*\WNRZQLNZLHF]\VW\Y 7. posiadacz YZVSyáSRVLDGDF]
0LHMVFHDDGUHV\SRáR*HQLDSU]HGPLRWyZRSRGDWNRZDQLDRUD]QXPHU\G]LDáHN
1XPHU\NVL
JLZLHF]\VWHMOXE]ELRUXyZGRNXPHQWyZ
1D]ZDSHáQD1D]ZLVNRSLHUZV]HLPL
GDWDXURG]HQLD
9. Nazwa skrócona* / LPL
RMFDLPL
PDWNL
10. Identyfikator REGON* / Numer PESEL**
B.2 ADRES SIEDZIBY* / ADRES ZAMIESZKANIA**
11. Kraj
12. Województwo
13. Powiat
14. Gmina
15. Ulica
16. Numer domu / Numer lokalu
0LHMVFRZRü
18. Kod pocztowy
19. Poczta
&2.2/,&=12&,32:2'8-&(.21,(&=12û=à2)(1,$'(./$5$&-,
2NROLF]QRFL]D]QDF]\üZáDFLZNUDWN
Y 1. deklaracja roczna Y 2. korekta deklaracji rocznej
''$1('27<&=&(35=('0,27Ï:232'$7.2:$1,$]Z\MWNLHP]ZROQLRQ\FK
Stawka podatku
ZJ8FKZDá\5DG\
Podstawa
Gminy RJáRV]RQHM
Wyszczególnienie
opodatkowania w Dz. Urz. Województwa
1
D.1 POWIERZCHNIA GRUNTÓW
]ZL]DQ\FK]SURZDG]HQLHPG]LDáDOQRFL
JRVSRGDUF]HMEH]Z]JO
GXQDVSRVyE]DNZD
lifikowania w ewidencji gruntów i budynków
SRGMH]LRUDPL]DM
W\FKQD]ELRUQLNLZRGQH
retencyjne lub elektrowni wodnych
ZURNXSRSU]HG]DMF\P
dany rok podatkowy)
Z]áJU
]DRNUJOLü
GRSHáQ\FK
G]LHVLWHN
groszy)
3
4
2
21.
Kwota
podatku
Z]áJU
22.
23.
.................... m2 ....................,............ ...............,......
24.
25.
26.
.................... ha ....................,............ ...............,......
%$1.'58.Ï:5(*,2VHW!3RUWDO5HJLRQDOQ\L6DPRU]GRZ\www.regioset.pl
'1'HNODUDFMDQDSRGDWHNRGQLHUXFKRPRFL
razem stron 3 / strona 2
1
2
3
4
SR]RVWDáHJUXQW\
27.
w tym:
NRQG\JQDFMLRZ\VRNRFLRGGRP
]DOLF]\üSRZLHU]FKQL
33.
NRQG\JQDFMLRZ\VRNRFLSRZ\*HMP
.................... m2 ....................,............ ...............,......
28.
29.
.................... m2 ....................,............ ...............,......
'32:,(5=&+1,$8)<7.2:$%8'<1.Ï:/8%,&+&=&,
30.
31.
32.
PLHV]NDOQ\FKRJyáHP
.................... m2 ....................,............ ...............,......
34.
35.
.................... m2 ....................,............ ...............,......
'RSRZLHU]FKQLX*\WNRZHMEXG\QNXOXEMHJRF]
FLQDOH*\]DOLF]\üSRZLHU]FKQL
PLHU]RQSRZHZQ
WU]QHMGáXJRFLFLDQQDZV]\VWNLFK
NRQG\JQDFMDFK]Z\MWNLHPSRZLHU]FKQLNODWHNVFKRGRZ\FKRUD]V]\EyZG(ZLJRZ\FK=DNRQG\JQDFM
XZD*DVL
UyZQLH*JDUD*HSRG]LHPQH
SLZQLFHVXWHUHQ\LSRGGDV]DX*\WNRZH
36.
37.
38.
]ZL]DQ\FK]SURZDG]HQLHPG]LDáDOQRFL
JRVSRGDUF]HMRUD]RGF]
FLEXG\QNyZ
PLHV]NDOQ\FK]DM
W\FKQDSURZDG]HQLHG]LDáDOQRFL
.................... m2 ....................,............ ..............,.......
JRVSRGDUF]HMRJyáHP
w tym:
NRQG\JQDFMLRZ\VRNRFLRGGRP
]DOLF]\üSRZLHU]FKQL
NRQG\JQDFMLRZ\VRNRFLSRZ\*HMP
]DM
WHQDSURZDG]HQLHG]LDáDOQRFLJRVSRGDUF]HM
Z]DNUHVLHREURWXNZDOLILNRZDQ\PPDWHULDáHP
VLHZQ\PRJyáHP
w tym:
NRQG\JQDFMLRZ\VRNRFLRGGRP
]DOLF]\üSRZLHU]FKQL
NRQG\JQDFMLRZ\VRNRFLSRZ\*HMP
]DM
WHQDSURZDG]HQLHG]LDáDOQRFLJRVSRGDUF]HMZ
]DNUHVLHZLDGF]HQLDXVáXJPHG\F]Q\FKRJyáHP
w tym:
NRQG\JQDFMLRZ\VRNRFLRGGRP
]DOLF]\üSRZLHU]FKQL
NRQG\JQDFMLRZ\VRNRFLSRZ\*HMP
SR]RVWDá\FKRJyáHP
w tym:
NRQG\JQDFMLRZ\VRNRFLRGGRP
]DOLF]\üSRZLHU]FKQL
NRQG\JQDFMLRZ\VRNRFLSRZ\*HMP
D.3 BUDOWLE
1. budowle
ZDUWRüRNWyUHMPRZDZSU]HSLVDFKRSRGDWNDFK
dochodowych)
.................... m2 ....................,............ ..............,.......
.................... m2 ....................,............ ..............,.......
39.
40.
41.
.................... m2 ....................,............ ..............,.......
.................... m2 ....................,............ ..............,.......
.................... m2 ....................,............ ..............,.......
42.
43.
44.
.................... m2 ....................,............ ..............,.......
.................... m2 ....................,............ ..............,.......
.................... m2 ....................,............ ..............,.......
45.
46.
47.
.................... m2 ....................,............ ..............,.......
.................... m2 ....................,............ ..............,.......
.................... m2 ....................,............ ..............,.......
48.
49.
50.
......................... ....................,............ ..............,.......
(à&=1$.:27$32'$7.8
Kwota podatku
Suma kwot z kol. D QDOH*\]DRNUJOLüGRSHáQ\FKG]LHVLWHNJURV]\
51.
..............,.......
F. INFORMACJA O PRZEDMIOTACH ZWOLNIONYCH
SRGDüSRZLHU]FKQL
EG(ZDUWRüEXGRZOLSU]HGPLRWyZ]ZROQLRQ\FKRUD]SU]HSLVSUDZD]MDNLHJRW\WXáXZ\VW
SXMH]ZROQLHQLH
%$1.'58.Ï:5(*,2VHW!3RUWDO5HJLRQDOQ\L6DPRU]GRZ\www.regioset.pl
'1'HNODUDFMDQDSRGDWHNRGQLHUXFKRPRFL
razem stron 3 / strona 3
*2:,$'&=(1,(,32'3,66.à$'$-&(*2262%<5(35(=(178-&(-6.à$'$-&(*2
2ZLDGF]DP*HSRGDQHSU]H]HPQLHGDQHV]JRGQH]SUDZG
,PL
'DWDZ\SHáQLHQLDG]LHPLHVLFURN
53. Nazwisko
3RGSLVSLHF]
üVNáDGDMFHJRRVRE\UHSUH]HQWXMFHMVNáDGDMFHJR
H. ADNOTACJE ORGANU PODATKOWEGO
56. Uwagi organu podatkowego
,GHQW\ILNDWRUSU]\MPXMFHJRIRUPXODU]
'DWDLSRGSLVSU]\MPXMFHJRIRUPXODU]
%$1.'58.Ï:5(*,2VHW!3RUWDO5HJLRQDOQ\L6DPRU]GRZ\www.regioset.pl