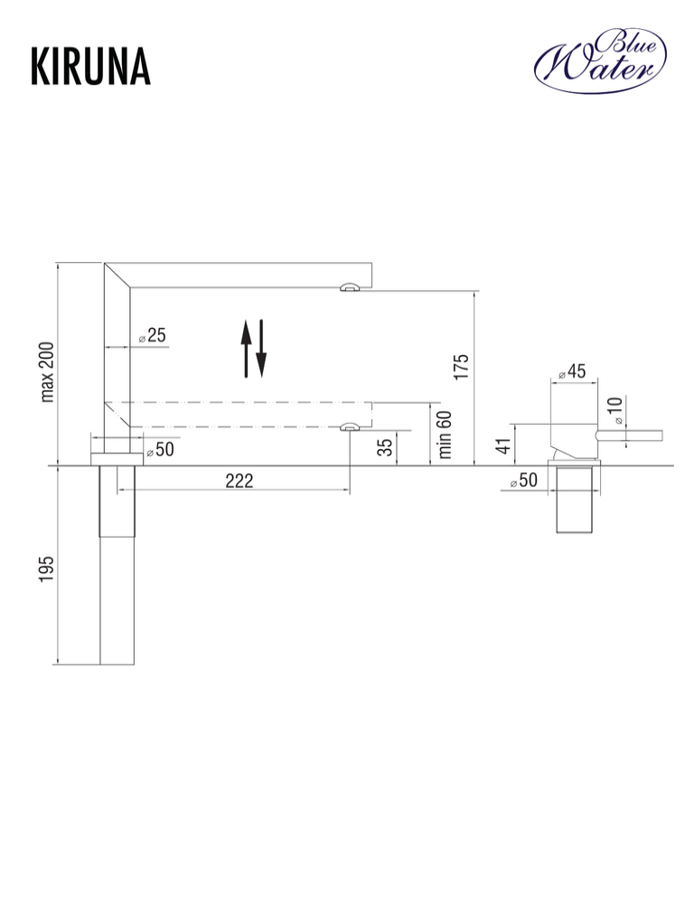
kiruna - Blue Water

Transkrypt

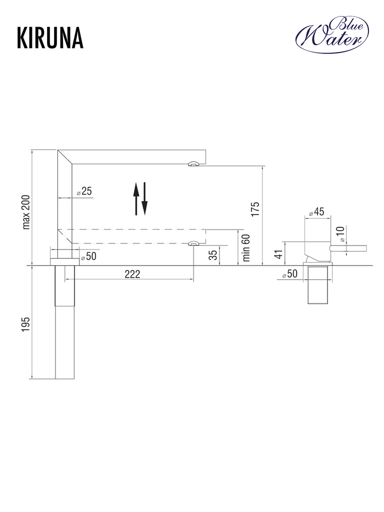
kiruna - Blue Water
195
50
222
41
10
min 60
35
175
max 200
KIRUNA
25
45
50