ELEWACJA WIDOK 2 ELEWACJA WIDOK 1

Transkrypt

ELEWACJA WIDOK 2 ELEWACJA WIDOK 1
obróbka blacharska
komin wentylacyjny
6
1
5
3
5
5
1
3
1
±0,00
skrzynka gazowa pusta
2
4
ELEWACJA WIDOK 1
komin wentylacyjny
obróbka blacharska
drabinka na dach
wywiewka wentylacyjna
drabinka na dach
obróbka blacharska
kratka wentylacyjna
kratka wentylacyjna
6
kabel wiszący
kratka wentylacyjna
kabel wiszący
kratka wentylacyjna
oświetlenie zewnętrzne
obróbka blacharska
skrzynka przyłączowa
kratka wentylacyjna
1
±0,00
5
skrzynka przyłączowa
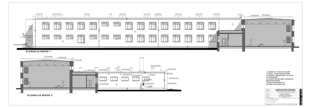
1.ELEWACJA-TYNK AKRYLOWY
2.COKÓŁ- TYNK KAMYCZKOWY
3.PARAPET ZEWNĘTRZNY- BLACHA
OCYNKOWANA
4.SCHODY WEJŚCIOWE TERAKOTA
MROZOODPORNA
5.RURA SPUSTOWA PCV
6.RYNNA DACHOWA PCV
czerpnia
wentylacyjna
2
2
4
ELEWACJA ZACHODNIA I POŁUDNIOWAINWENTARYZACJA ARCHITEKTONICZNA
Nazwa
rysunku:
Rozbudowa Szkoły Podstawowej w Ładach
Obiekt:
ELEWACJA WIDOK 2
Urząd Gminy Raszyn
ul .Szkolna 2A, 05-090 Raszyn
Łady, Gmina Raszyn, ul Długa 49,
dz. nr ewid. 47, 111
Inwestor:
Adres
budowy:
Opracowali:
mgr inż. arch. Ewa Kuklińska-Kiwak
mgr inż. arch. Anna Filipiak
INWENTARYZACJA
SKALA 1:100
LIPIEC 2012r.
P. BUDOWLANY
RYS. NR 12