Załącznik nr 13

Transkrypt

Załącznik nr 13
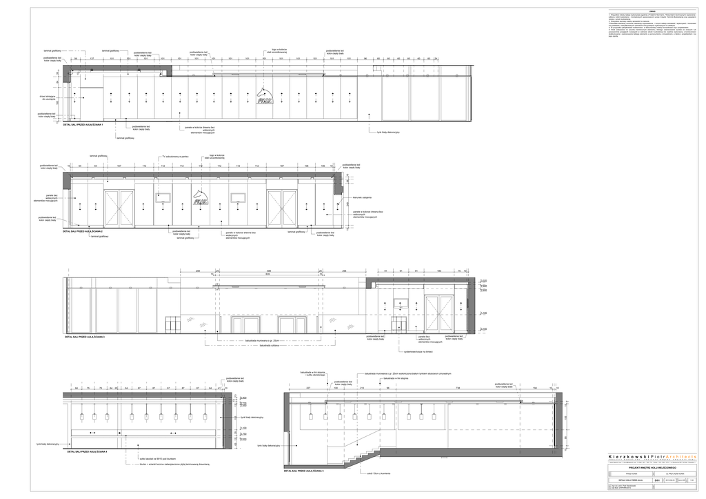
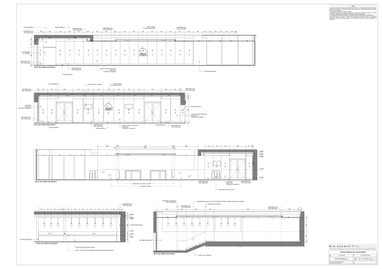
UWAGI
1. Wszystkie roboty należy wykonywać zgodnie z Polskimi Normami, "Warunkami technicznymi wykonania i
odbioru robót budowlano - montażowych opracowanymi przez Instytut Techniki Budowlanej oraz zasadami
wiedzy i sztuki budowlanej.
2. Wszystkie wymiary należy sprawdzić w naturze.
3.Wszelkie elementy ruchome, elementy wyposażenia, i innych należy zamawiać i wykonywać / montować
na podstawie zweryfikowanych obmiarów rzeczywistych wykonanych na obiekcie.
4. W przypadku jakiejkolwiek rozbieżności w dokumentacji należy konsultować się z projektantem.
5. Brak wskazania na rysunku technicznym elementu, którego zastosowanie wynika ze znanych lub
powszechnie przyjętych rozwiązań w zakresie sztuki budowlanej nie zwalnia wykonawcy z konieczności
skalkulowania i zastosowania takiego elementu w porozumieniu z inwestorem, a także z projektantem i za
jego zgodą.
laminat grafitowy
laminat grafitowy
6
4
137
101
101
101
101
101
101
101
101
101
101
101
101
101
101
96
60
60
60
60
60
60
24
13
56
podświetlenie led
kolor ciepły biały
64
39
podświetlenie led
kolor ciepły biały
logo w kolorze
stali szczotkowanej
podświetlenie led
kolor ciepły biały
podświetlenie led
kolor ciepły biały
101
185
drzwi istniejące
do usunięcia
15
podświetlenie led
kolor ciepły biały
DETAL SALI PRZED AULĄ ŚCIANA 1
podświetlenie led
kolor ciepły biały
panele w kolorze drewna bez
widocznych
elementów mocujących
tynk biały dekoracyjny
laminat grafitowy
laminat grafitowy
10
94
94
187
112
112
112
112
112
112
112
187
106
106
podświetlenie led
kolor ciepły biały
10
26
13
podświetlenie led
kolor ciepły biały
logo w kolorze
stali szczotkowanej
TV zabudowany w panleu
panele bez
widocznych
elementów mocujących
249
kierunek usłojenia
panele w kolorze drewna bez
widocznych
elementów mocujących
podświetlenie led
kolor ciepły biały
DETAL SALI PRZED AULĄ ŚCIANA 2
laminat grafitowy
laminat grafitowy
panele w kolorze drewna bez
widocznych
elementów mocujących
laminat grafitowy
208
15
podświetlenie led
kolor ciepły biały
25
podświetlenie led
kolor ciepły biały
589
639
10
25
10
258
91
91
91
180
75
10
10
3,020
5
2,900
2,650
1,100
0,150
podświetlenie led
kolor ciepły biały
DETAL SALI PRZED AULĄ ŚCIANA 3
balustrada murowana o gr. 25cm
panele bez
widocznych
elementów mocujących
podświetlenie led
kolor ciepły biały
balustrada szklana
systemowe kosze na śmieci
balustrada w lini stopnia
i sufitu obniżonego
podświetlenie led
kolor ciepły biały
75
75
64
20
64
87
87
87
87
87
64
41
balustrada w lini stopnia
podświetlenie led
kolor ciepły biały
227
10
100
213
96
738
podświetlenie led
kolor ciepły biały
194
10
10
2,900
tynk biały dekoracyjny
155
15
13
2,775
2,650
155
13
13
64
balustrada murowana o gr. 25cm wykończona białym tynkiem stiukowym zmywalnym
95
35
0,632
tynk biały dekoracyjny
15
63
tynk biały dekoracyjny
0,750
12
1,100
DETAL SALI PRZED AULĄ ŚCIANA 4
K i e r z k o w s k i PiotrArchitects
szkło lakobel ral 9010 pod biurkiem
P R O J E K T Y
B U D O W L A N E
P R O J E K T Y
W N Ę T R Z
P R O J E K T Y
M E B L I
l www.kaparch.com l [email protected] l 0048 - 601 - 780 -774 l 0044 - 792 - 556 - 2751 l ul.Wiosenna10E/1 62-064 Plewiska l
biurko + scianki boczne zabezpieczone płytą laminowaną drewnianą
adres
Arch.WN
skala
2015-06-03
branża
D/01
projekt
mgr inż. arch. Piotr Kierzkowski
Upr.Bud. 2/WP0KK/2012
UL PRZYJAŹNI KONIN
data
PWSZ KONIN
DETALE HOLU PRZED AULĄ
projekt
cokół 10cm z kamienia
inwestor
PROJEKT WNĘTRZ HOLU WEJŚCIOWEGO
DETAL SALI PRZED AULĄ ŚCIANA 5
1:50