PDF Pobierz

Transkrypt

PDF Pobierz
wymiana pokrycia dachowego
2* papa termozgrzewalna
obróbka blacharska
okapu z bl.tytan-cynk
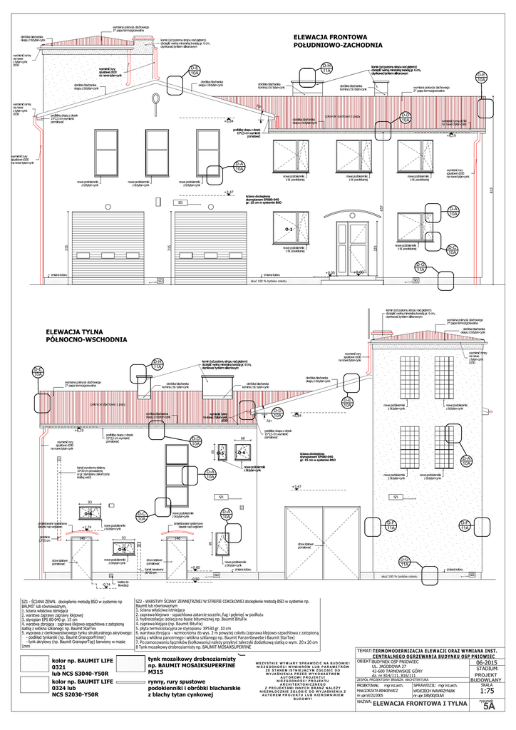
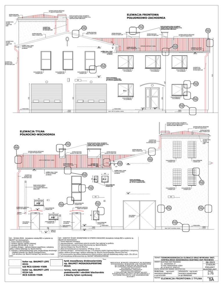
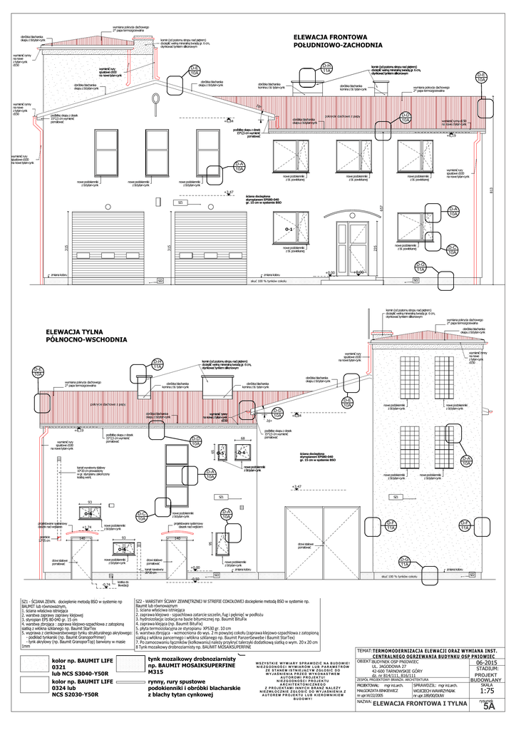
ELEWACJA FRONTOWA
POŁUDNIOWO-ZACHODNIA
komin (od poziomu stropu nad piętrem)
docieplić wełną mineralną twradą gr. 6 cm,
otynkować tynkiem silikonowym
wymienić rynny
na nowe
z tytan-cynk
d150
obróbka blacharska
okapu z bl.tytan-cynk
obróbka blacharska
okapu z bl.tytan-cynk
wymienić rynny
na nowe
z tytan-cynk
d150
D-H
11A
D-E
10A
wymienić rury
spustowe d100
na nowe tytan-cynk
obróbka blacharska
komina z bl. tytan-cynk
16
podbitkę okapu z desek
15*2,5 cm wymienić
pomalować
komin (od poziomu stropu nad piętrem)
docieplić wełną mineralną twradą gr. 6 cm,
otynkować tynkiem silikonowym
obróbka blacharska
komina z bl. tytan-cynk
wymiana pokrycia dachowego
2* papa termozgrzewalna
°
obróbka blacharska
okapu z bl.tytan-cynk
+6,84
D-D
10A
pokrycie dachowe z papy
wymienić rynny d150
na nowe z tytan-cynk
podbitkę okapu z desek
15*2,5 cm wymienić
pomalować
wymienić rury
spustowe d100
na nowe tytan-cynk
+6,19
D-A
10A
nowe podokienniki
z bl.tytan-cynk
nowe podokienniki
z bl. powlekanej
nowe podokienniki
z bl.tytan-cynk
nowe podokienniki
z bl. powlekanej
nowe podokienniki
z bl. powlekanej
wymienić rury
spustowe d100
na nowe tytan-cynk
813
nowe podokienniki
z bl.tytan-cynk
D-E
10A
+3,47
ściana docieplona
styropianem EPS80-040
gr. 15 cm w systemie BSO
657
SZ1
D-A
10A
nowe podokienniki
z bl. powlekanej
zmiana koloru
D-C
10A
D-G
11A
+0,00
+0,00
zmiana koloru
SZ2
nowe podokienniki
z bl. powlekanej
235
315
315
O-1
SZ2
skuć 100 % tynków cokołu
komin (od poziomu stropu nad piętrem)
docieplić wełną mineralną twradą gr. 6 cm,
otynkować tynkiem silikonowym
wymiana pokrycia dachowego
2* papa termozgrzewalna
obróbka blacharska
okapu z bl.tytan-cynk
ELEWACJA TYLNA
PÓŁNOCNO-WSCHODNIA
D-H
11A
D-E
10A
wymiana pokrycia dachowego
2* papa termozgrzewalna
obróbka blacharska
komina z bl. tytan-cynk
obróbka blacharska
okapu z bl.tytan-cynk
obróbka blacharska
komina z bl. tytan-cynk
D-E
10A
pokrycie dachowe z papy
obróbka blacharska
okapu z bl.tytan-cynk
D-D
10A
wymienić rynny
na nowe z tytan-cynk
d150
68
D-D
10A
65
wymienić rury
spustowe d100
na nowe tytan-cynk
kanał wywiewny stalowy
10*20 cm prowadzony
w gr. styropianu zakończony
kratką went.
nowe podokienniki
z bl.tytan-cynk
+6,84
podbitkę okapu z desek
15*2,5 cm wymienić
pomalować
O-6
O-5
nowe podokienniki
z bl.tytan-cynk
16°
+6,19
podbitkę okapu z desek
15*2,5 cm wymienić
pomalować
wymienić rynny
na nowe
z tytan-cynk
d150
wymienić rury
spustowe d100
na nowe tytan-cynk
komin (od poziomu stropu nad piętrem)
docieplić wełną mineralną twradą gr. 6 cm,
otynkować tynkiem silikonowym
ściana docieplona
styropianem EPS80-040
gr. 15 cm w systemie BSO
D-A
10A
nowe podokienniki
z bl.tytan-cynk
D-A
10A
nowe podokienniki
z bl.tytan-cynk
nowe podokienniki
z bl.tytan-cynk
+3,47
SZ1
SZ1
93
O-4
projektowane systemowy
daszek nad wejściem
przebicie
12*25 cm
+1,74
D-F
11A
projektowane systemowy
daszek nad wejściem
nowe podokienniki
z bl.tytan-cynk
93
drzwi stalowe
pomalować
O-4
drzwi stalowe
pomalować
nowe podokienniki
z bl.tytan-cynk
drzwi stalowe
pomalować
kanał nawiewny
20*20 cm
-0,74
kratka do
likwidacji
D-F
11A
140
95
140
D-A
10A
nowe podokienniki
z bl.tytan-cynk
D-C
10A
+0,00
-0,50
D-G
11A
nowe podokienniki
z bl.tytan-cynk
zmiana koloru
zmiana koloru
SZ2
skuć 100 % tynków cokołu
SZ2
-0,65
SZ1 - ŚCIANA ZEWN. docieplenie metodą BSO w systemie np
BAUMIT lub równoważnym,
1. ściana właściwa istniejąca
2. warstwa zaprawy zaprawy klejowej
3. styropian EPS 80-040 gr. 15 cm
4. warstwa zbrojąca : zaprawa klejowo-szpachlowa z zatopioną
siatką z włókna szklanego np. Baumit StarTex
5. wyprawa z cienkowarstwowego tynku strukturalnego akrylowego:
- podkład tynkarski (np. Baumit GranoporPrimer)
- tynk akrylowy (np. Baumit GranoporTop) barwiony w masie
1mm
kolor np. BAUMIT LIFE
0321
lub NCS S3040-Y50R
kolor np. BAUMIT LIFE
0324 lub
NCS S2030-Y50R
SZ2 - WARSTWY ŚCIANY ZEWNĘTRZNEJ W STREFIE COKOŁOWEJ docieplenie metodą BSO w systemie np.
Baumit lub równowaznym
1. ściana właściwa istniejąca
2. zaprawa klejowo - szpachlowa zatarcie szczelin, fug i pęknięć w podłożu
3. hydroizolacja: izolacja na bazie bitumicznej np. Baumit BituFix
4. zaprawa klejąca (np. Baumit BituFix)
5. płyta termoizolacyjna ze styropianu XPS30 gr. 10 cm
6. warstwa zbrojąca - wzmocniona do wys. 2 m powyżej cokołu (zaprawa klejowo-szpachlowa z zatopioną
siatką z włókna pancernego i włókna szklanego np. Baumit PanzerGewebe i Baumit StarTex)
7. Po zamocowaniu łączników (kołkowaniu) należy przykryć talerzyki dodatkową siatką o wym. 20 x 20 cm
8 Tynk mozaikowy drobnoziarnisty np. BAUMIT MOSAIKSUPERFINE
tynk mozaikowy drobnoziarnisty
np. BAUMIT MOSAIKSUPERFINE
M315
rynny, rury spustowe
podokienniki i obróbki blacharskie
z blachy tytan cynkowej
TEMAT: TERMOMODERNIZACJA ELEWACJI ORAZ WYMIANA INST.
CENTRALNEGO OGRZEWANIA BUDYNKU OSP PNIOWIEC
WSZYSTKIE WYMIARY SPRAWDZIĆ NA BUDOWIE!
NIEZGODNOŚCI WYMIARÓW LUB PARAMETRÓW
ZE STANEM ISTNIEJĄCYM ZGŁOSIĆ DO
WYJAŚNIENIA PRZED WYKONASTWEM
AUTOROWI PROJEKTU!
NIEZGODNOŚCI PROJEKTU
ARCHITEKTONICZNEGO
Z PROJEKTAMI INNYCH BRANŻ NALEŻY
NIEZWŁOCZNIE ZGŁOSIĆ DO WYJAŚNIENIA Z
AUTOREM PROJEKTU LUB KIEROWNIKIEM
BUDOWY!
OBIEKT:BUDYNEK OSP PNIOWIEC
UL. JAGODOWA 27
42-600 TARNOWSKIE GÓRY
dz. nr 814/111, 816/111
ZESPÓŁ PROJEKTOWY BRANŻA: ARCHITEKTURA
PROJEKTOWAŁ: mgr inż.arch.
MAŁGORZATA BINKIEWICZ
nr upr.W/22/2005
NAZWA:
SPRAWDZIŁ: mgr inż.arch.
WOJCIECH WAWRZYNIAK
nr upr.189/00/DUW
ELEWACJA FRONTOWA I TYLNA
06-2015
STADIUM:
PROJEKT
BUDOWLANY
SKALA
1:75
rysunek
5A