( 1 : 1 ) F ( 1 : 1 )

Transkrypt

( 1 : 1 ) F ( 1 : 1 )
6
5
4
3
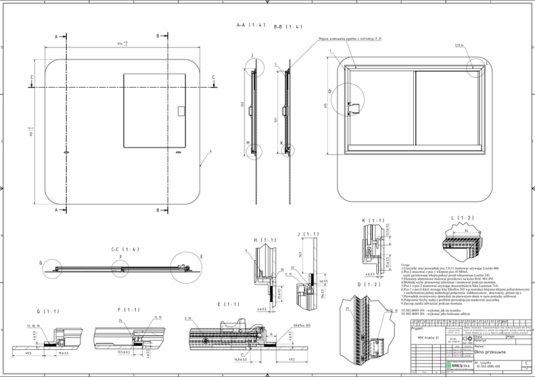
A-A ( 1 : 4 )
1
B-B ( 1 : 4 )
B
A
2
Miejsce znakowania zgodnie z instrukcj IT 31
+
974 - 01
D
3,13,14
D
1
J
L
5
C
C
+
912 - 01
521
615
553
D
C
H
C
K
6
A
B
L (1:2)
13,5 0,5
K (1:1)
J (1:1)
B
84
B
H (1:1)
56,5
9
E
25 0,5
C-C ( 1 : 4 )
F
G
26
22
4 0,5
7, 15
D (1:2)
19 0,5
25 0,5
4 0,5
E (1:1)
G (1:1)
23
4 0,5
F (1:1)
11, 15
24
1.Uszczelki oraz prowadnik poz.7,9,11 montowa u ywaj c Loctite 406.
2.Poz.2 mocowa z poz.1 wkr tem poz.10 M4x8,
cz
gwintowan wkr ta pokry przed wkr ceniem Loctite 243
3.Elementy aluminiowe malowa proszkowo na kolor RAL 9011P4.
4.Blokad szyby przesuwnej odwierca i montowa podczas monta u.
5.Poz.1 z poz.2 montowa u ywaj c doszczelniacza Sika Lastomer 710.
6.Poz.1 z poz.6 klei stosuj c klej Sikaflex 265 wg instrukcji klejenia klejami poliuretanowymi
z zachowaniem pe nej technologii po czenia (odt uszczacze , aktywatory, primer itp.)
7.Prowadnik tworzywowy sprawdzi na pierwszym oknie w razie potrzeby szlifowa .
8.Po czenie Szyby sta ej z profilem prowadz cym maskowa uszczelk
9.Zaczep zamka odwierca podczas monta u.
35-502-0085-101 - wykona jak na rysunku
35-502-0085-201 - wykona jako lustrzane odbicie
3, 10
01 02 05 11
1 1 2 1
Sikaflex 265
4 0,5
16
12 13 16 21 22 23 26 31 41 51 91 840
1 1 1 1 1 1 1 1 1
2 1
Projekt:
4 0,5
17, 18, 19
A
4, 12, 16
Uwagi:
Dokumentacja stanowi
w asno RFWW
"RAWAG" sp.z o.o
MPK Krak w E1
Norma:
ISO 2768-m
49,5
19 0,5
4 0,5
Data
13,5 0,5
Narysowany
21
16,8 5,0
Sprawdzony
Zatw.
Zmiana, kopiowanie, rozpowszechnianie oraz wykorzystywanie dla cel w
innych ni przewidziano w umowie lub zam wieniu wymaga pisemnej zgody
RFWW RAWAG sp. z o.o w Rawiczu pod rygorem skutk w prawnych
ISO 1302
Nazwisko
2010-07-19 P.Boryczka
2010-07-19 M. ukowiak
2010-07-19 A.J zefiak
Waga:
Skala:
Materia :
Nazwa:
Okno przesuwne
49,5
Nr. rysunku
35-502-0085-000
Stan
6
5
4
3
2
Zmiany
Data
Nazwa
Zast. rys.
1
nr. arkusza
1
rozmiar arkusza
A1
A