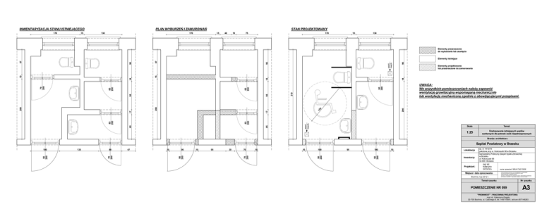
STAN PROJEKTOWANY PLAN WYBURZEŃ I ZAMUROWAŃ

Transkrypt

STAN PROJEKTOWANY PLAN WYBURZEŃ I ZAMUROWAŃ
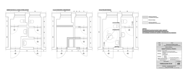
INWENTARYZACJA STANU ISTNIEJĄCEGO
170
15
PLAN WYBURZEŃ I ZAMUROWAŃ
130
STAN PROJEKTOWANY
170
15
40
15
75
170
15
130
Elementy przeznaczone
do wyburzenia lub usunięcia
96
80
200
UWAGA:
We wszystkich pomieszczeniach należy zapewnić
wentylację grawitacyjną wspomaganą mechanicznie
lub wentylację mechaniczną zgodnie z obowijązujacymi przepisami.
85
200
went.
mech.
17
15
0
98
310
65
200
65
200
85
65
200
Elementy projektowane
lub przeznaczone do zamurowania
14
14
went.
mech.
96
87
15
208
17
208
98
65
200
70
200
14
15
96
87
Elementy istniejące
Skala
Temat
1:25
Dostosowanie istniejących węzłów
sanitarnych dla potrzeb osób niepełnosprawnych
Branża: architektura
Szpital Powiatowy w Brzesku
90
10
95
30
70
10
10
100
95
100
90
200
10
90
200
47
70
200
80
90
200
135
70
200
90
200
100
10
Lokalizacja
Inwestorzy
Projektant:
dz. nr 1410/16
położona przy ul. Kościuszki 68 w Brzesku
Samodzielny Publiczny Zespół Opieki Zdrowotnej
w Brzesku
ul. Kościuszki 68
32-800 Brzesko
mgr inż.
Katarzyna
GOGOLA
numer uprawnień: NBUA-7342/109/98
Miejsce i data opracowania
Bochnia, luty 2012 r.
Dokumentację techniczną, w tym wizualizację 3D, opracowano
na licencjonowanym programie ArchiTECH 5.16.04
właściciel licencji : Katarzyna Gogola
Zgodnie z obowiązującymi przepisami prawa, dokumentacja projektowa
jest dziełem autorskim i z tego tytułu podlega ochronie prawnej.
Temat rysunku
Nr rysunku
POMIESZCZENIE NR 099
A3
"PROINWEST" - PRACOWNIA PROJEKTOWA
mgr inż. Katarzyna Gogola
32-700 Bochnia, ul. Czackiego 8, tel. 14/6119581, tel.kom.607148283