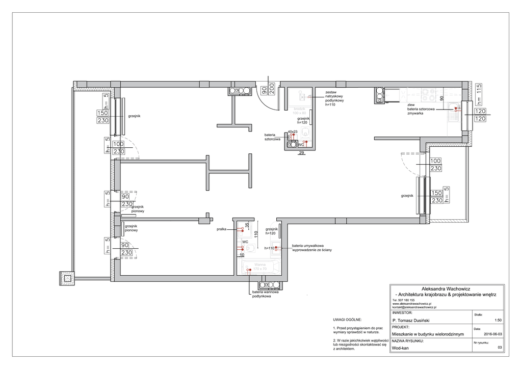
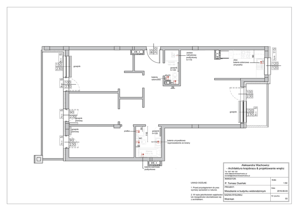
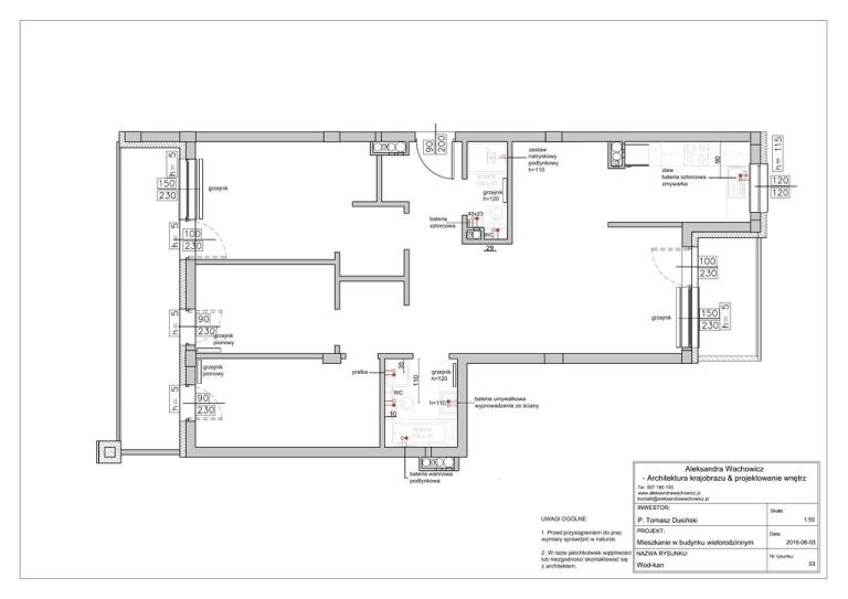
Wanna 170 x 70 grzejnik h=120 zlew bateria sztorcowa zmywarka

Transkrypt

Wanna 170 x 70 grzejnik h=120 zlew bateria sztorcowa zmywarka
brodzik
100 x 80
grzejnik
90
zestaw
natryskowy
podtynkowy
h=110
zlew
bateria sztorcowa
zmywarka
grzejnik
h=120
bateria
sztorcowa
40x23
WC
29
grzejnik
pralka
110
grzejnik
pionowy
35
grzejnik
pionowy
grzejnik
h=120
WC
h=110
bateria umywalkowa
wyprowadzenie ze ściany
10
Wanna
170 x 70
bateria wannowa
podtynkowa
UWAGI OGÓLNE:
1. Przed przystąpieniem do prac
wymiary sprawdzić w naturze.
2. W razie jakichkolwiek wątpliwości
lub niezgodności skontaktować się
z architektem.