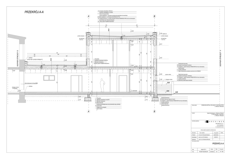
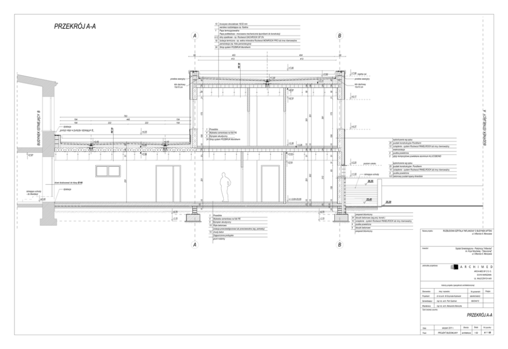
przekrój aa

Transkrypt

przekrój aa
10 kruszywo otoczakowe 16/32 mm
warstwa rozdzielaj'ca np. fizelina
1 Papa termozgrzewalna
Papa podk!adowa - mocowana mechanicznie !'cznikami do konstrukcji
0-12 kliny spadkowe - np. Rockwool DACHROCK SP 3%
18 Izolacja termiczna - np. we!na mineralna Rockwool MONROCK PRO lub inna równowa"na
paroizolacja (np. folia paroizolacyjna)
24 Strop system POZBRUK Murotherm
A
68
403
B
404
68
413
RE 30
413
+7,90
+7,58 rz#dna osi
+7,52
+7,30
41
klin dachowy
10x10 cm
50
24
+6,17
21
50
przelew awaryjny
175
361
+4,37
10
24
10
24
10
106
+3,02
wyko$czenie wg opisu
25 pustaki konstrukcyjne Porotherm
12 ocieplenie - system Rockwool PANELROCK lub inny równowa"ny
wiatroizolacja
4 pustka powietrzna
2 p!yty kompozytowe powlekane aluminium ALUCOBOND
51
+3,02
51
51
+3,26
24
24
10
+3,26
+3,36
24
+3,45
35
+3,45
Posadzka
Wylewka cementowa na folii PE
Styropian akustyczny
Strop system POZBRUK Murotherm
24
106
+4,05
1
4
5
24
51
dylatacja
poziom okien w budynku istniej'cym B
+2,97
351
154
154
222
301
222
+6,37
175
783
445
184
184
RE 30
BUDYNEK ISTNIEJ(CY B
21
50
+6,87
24
24
24
klin dachowy
10x10 cm
+7,11
24
41
przelew awaryjny
+2,20
poziom coko!u
istniej'ce schody
312
251
25
10
4
9,5
wyko$czenie wg opisu
pustaki konstrukcyjne Porotherm
ocieplenie - system Rockwool PANELROCK lub inny równowa"ny
pustka powietrzna
betonowy pustak !upany Amerblok
26,55
155
251
+1,50
-0,75
Posadzka
Wylewka cementowa na folii PE
Styropian akustyczny
P!yta betonowa
izolacja przeciwwilgociowa lub przeciwwodna (wg. potrzeby)
10 chudy beton
Zag#szczona podsypka
grunt rodzimy
-1,15
A
25,30
11 15
10
-0,75
1
4
5
15
25,45
20
15
11
15
+/- 0,00=25,55
10
±0,00
15 10
dylatacja
15 10
istniej'ce schody
- do likwidacji
251
302
65
31
+2,51
drzwi dostosowa& do klasy EI 60
BUDYNEK ISTNIEJ(CY A
PRZEKRÓJ A-A
24
10
4
9
-1,15
B
preparat bitumiczny
bloczki betonowe (wg proj. konstr.)
ocieplenie - system Rockwool PANELROCK lub inny równowa"ny
pustka powietrzna
bloczki betonowe
preparat bitumiczny
Nazwa projeku:
ROZBUDOWA SZPITALA "INFLANCKA" O BUDYNEK APTEKI
ul. Inflancka 6, Warszawa
Inwestor:
Szpital Ginekologiczno - Po!o"niczy "Inflancka"
im. Krysi Ni"y#skiej - "Zakurzonej"
ul. Inflancka 6, Warszawa
Jednostka projektowa:
[ "do papieru firmowego1.jpg "]
ARCHI-MED SP. Z O. O.
03-916 WARSZAWA
UL. WALECZNYCH 44/9
Autorzy projektu (specjalno%& architektoniczna):
Stanowisko:
Imi# i nazwisko:
Projektant:
dr in".arch. M.Grzyma!a-Kaz!owski
Sprawdzaj'cy:
mgr in". arch. Piotr Gastman
Wspó!praca:
mgr in". arch. Aleksandra Mareczka
Nr.uprawnie$:
Podpis:
MA/KK/049/02
MA/044/10
Tytu! (nazwa) rysunku:
PRZEKRÓJ A-A
Data:
sierpie$ 2011 r.
Bran"a:
Skala:
Nr.rysunku:
Faza:
PROJEKT BUDOWLANY
architektura
1:50
A 1 1 05