R zu t p iw n ic - ko tło w n ia g a zo w a 1
Transkrypt
										R zu t p iw n ic - ko tło w n ia g a zo w a 1
                                        
                                        
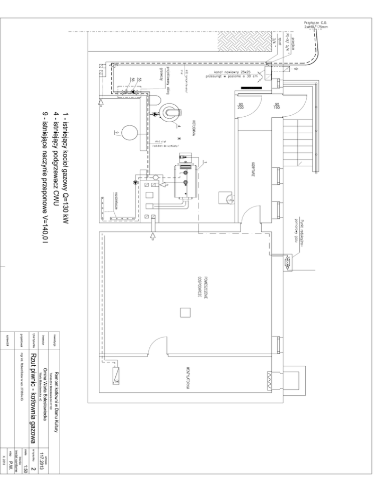
                                55 56 4 9 1 1 - istniejący kocioł gazowy Q=130 kW 4 - istniejący podgrzewacz CWU 9 - istniejące naczynie przeponowe V=140,0 l inwestycja inwestor tytuł rysunku projektował sprawdził Remont kotłowni w Domu Kultury Tomaszów Bolesławiecki nr 100 Warta Bolesławiecka 40 Gmina Warta Bolesławiecka Rzut piwnic - kotłownia gazowa mgr inż. Robert Bober nr upr. 2738/94/JG umowa 1:50 2 117.2013 branża nr rysunku skala etap P.W. instal.sanitarne X. 2013
 doc
                    doc download
															download                                                         Reklamacja
															Reklamacja                                                         
		     
		     
		     
		     
		     
		     
		     
		     
		     
		     
		     
		     
		     
		     
		     
		     
		     
		     
		     
		    