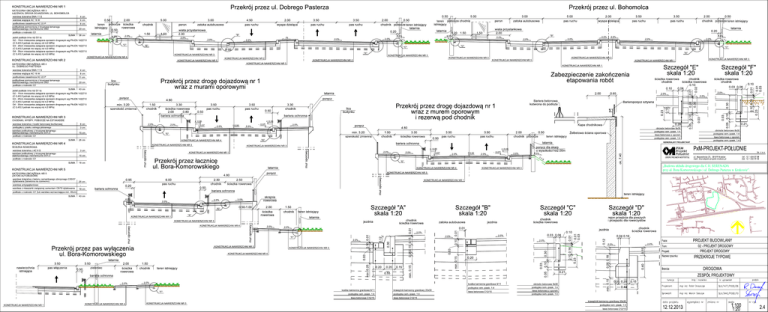
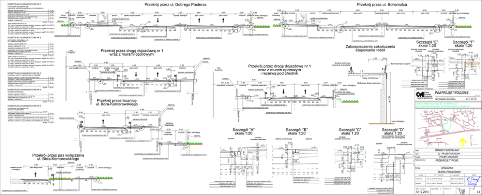
2.4_Przekroje_typowe

Transkrypt

2.4_Przekroje_typowe
KONSTRUKCJA NAWIERZCHNI NR 1
Przekrj przez ul. Dobrego Pasterza
Przekrj przez ul. Bohomolca
KATEGORIA OBCI¥flENIA: KR 3
£¥CZNICA, DROGA DOJAZDOWA, UL. BOHOMOLCA
warstwa cieralna SMA 11 S
4 cm
warstwa wi„¿„ca AC 16 W
6 cm
podbudowa zasadnicza AC 22 P
8 cm
podbudowa pomocnicza z kruszywa ‡amanego
stabilizowanego mechanicznie 0/63
0.50
0.50
pobocze
teren
5.00
cie¿ka
3.00
chodnik
peron
38 cm
1.50
1.50
pas ruchu
2.00
pas ruchu
0.50
"C"
3.00
peron
2.0%
2.0%
2.0%
0.20
1.50
1.50
2.00
3.50
wyspa dziel„ca
pas ruchu
3.50
2.00
pas ruchu
0.50
chodnik poboczeteren istniej„cy
latarnia
0.20
2.00
"B"
%
0
.
8
8
.
0
%
2.0%
2.0%
2.0%
5
1.
1:
1:
1.
5
"E"
5.00
pas ruchu
wiata przystankowa
latarnia
2.0%
2.0%
2.0%
2.0%
1:
1.
5
"C"
"C"
(C 0,4/0,5 jednak nie wiŒcej ni¿ 4,0 MPa)
zatoka autobusowa
istniej„cy
8
.
0
%
i%
2.0%
G3 - 25cm mieszanka zwi„zana spoiwem drogowym wg PN-EN 14227-5
5.00
pobocze chodnik
teren
chodnik poboczeteren istniej„cy
"B"
2.0%
5
1.
1:
(C 0,4/0,5 jednak nie wiŒcej ni¿ 4,0 MPa)
wyspa dziel„ca
3.50
0.20
2.00
2.0%
%
0
.
8
G2 - 15cm mieszanka zwi„zana spoiwem drogowym wg PN-EN 14227-5
pas ruchu
3.50
wiata przystankowa
latarnia
je¿eli pod‡o¿e inne ni¿ G1 to:
zatoka autobusowa
2.00
latarnia
0.50
pod‡o¿e o nonoci G1
4.50
rowerowa
istniej„cy
20 cm
SUMA
2.00
"C"
G4 - 35cm mieszanka zwi„zana spoiwem drogowym wg PN-EN 14227-5
(C 0,4/0,5 jednak nie wiŒcej ni¿ 4,0 MPa)
"A"
"A"
KONSTRUKCJA NAWIERZCHNI NR 3
KONSTRUKCJA NAWIERZCHNI NR 3
KONSTRUKCJA NAWIERZCHNI NR 4
KONSTRUKCJA NAWIERZCHNI NR 3
KONSTRUKCJA NAWIERZCHNI NR 3
KONSTRUKCJA NAWIERZCHNI NR 2
KONSTRUKCJA NAWIERZCHNI NR 2
KONSTRUKCJA NAWIERZCHNI NR 5
KONSTRUKCJA NAWIERZCHNI NR 2
KONSTRUKCJA NAWIERZCHNI NR 5
KONSTRUKCJA NAWIERZCHNI NR 3
KONSTRUKCJA NAWIERZCHNI NR 1
KONSTRUKCJA NAWIERZCHNI NR 3
Szczeg‡ "E"
skala 1:20
podbudowa pomocnicza z kruszywa ‡amanego
stabilizowanego mechanicznie 0/63
20 cm
Przekrj przez drogŒ dojazdow„ nr 1
wraz z murami oporowymi
lico
budynku
pod‡o¿e o nonoci G1
SUMA
Zabezpieczenie zakoæczenia
etapowania robt
43 cm
cie¿ka rowerowa
chodnik
0.10
chodnik
cie¿ka rowerowa
0.10
0.08
je¿eli pod‡o¿e inne ni¿ G1 to:
latarnia
G2 - 15cm mieszanka zwi„zana spoiwem drogowym wg PN-EN 14227-5
2.00
0.65
2.0%
+ 0,05
+ 0,05
2.0%
- 0,07
3 cm
15 cm
- 0,07
2.0%
4.80
min. 3.20
"E"
pod‡o¿e o nonoci G1
chodnik
KONSTRUKCJA NAWIERZCHNI NR 4
m uropor
owy
3 cm
15 cm
pod‡o¿e o nonoci G1
18 cm
Przekrj przez ‡acznicŒ
ul. Bora-Komorowskiego
latarnia
chodnik
0.20
-0,00
- 0,07
2.0%
2.0%
2.0%
porŒcz dla skarp
PXM
»¿o wysoko¯ci h
Projekt
Po‡udnie
8
.
0
%
GRUPA POLIMEX-MOSTOSTAL
0.
10 0.
16
PxM-PROJEKT-PO£UDNIE
Sp. z o.o.
tel. 12 / 634 07 08
fax 12 / 632 55 46
ul. Mazowiecka 25, 30-019 Krakw
mail: [email protected]
KONSTRUKCJA NAWIERZCHNI NR 3
KONSTRUKCJA NAWIERZCHNI NR 3
2.50
KONSTRUKCJA NAWIERZCHNI NR 1
teren istniej„cy
skrajnia
0.55
2.0%
kostka kamienna granitowa 9/11
podsypka cem.-piask. 1:4
kostka kamienna granitowa 9/11
krawŒ¿nik kamienny granitowy 20x30
"F"
podsypka cem.-piask. 1:4
‡awa betonowa C12/15
podsypka cem.-piask. 1:4
‡awa betonowa C12/15
obrze¿e betonowe 8x30
podsypka cem.-piask. 1:4
‡awa betonowa z oporem
02 - PROJEKT DROGOWY
Tom:
PROJEKT DROGOWY
Projekt:
Nazwa rysunku:
PRZEKROJE TYPOWE
DROGOWA
Bran¿a:
0.21
ZESP£ PROJEKTOWY
0.05 0.20
0.40
podsypka cem.-piask. 1:4
0.15
imiŒ i nazwisko
funkcja
nr uprawnieæ
Projektant:
mgr in¿. Rafa‡ Draszczyk
SLK/1477/POOD/06
Sprawdzi‡:
mgr in¿. Marcin Sobczyk
SLK/3442/POOD/10
podpis
‡awa betonowa C12/15
krawŒ¿nik kamienny granitowy 20x30
KONSTRUKCJA NAWIERZCHNI NR 4
PROJEKT BUDOWLANY
Faza:
2.0%
2.0%
0.
15
0.
30
0.20
0.04 0.16
0.
12
0.
01
2.0%
0.
40
0.15
0.03 0.08
2.0%
0.
05 0.
18
0.20
2.0%
chodnik
cie¿ka rowerowa
jezdnia
0.10
0.
03
0.20
0.01
2.0%
0.
10
0.
01
0.
12
0.
03
KONSTRUKCJA NAWIERZCHNI NR 3
rejon przejcia dla pieszych
i przejazdu dla rowerzystw
mi
n.0.
15
bariera ochronna
2.0%
Szczeg‡ "D"
skala 1:20
chodnik
cie¿ka rowerowa
jezdnia
0.
05
teren istniej„cy
"F"
zatoka autobusowa
mi
n.0.
15
1.50
chodnik
2.0%
mi
n.0.
25
KONSTRUKCJA NAWIERZCHNI NR 4
rowerowa
2.0%
m uropor
owy
m uropor
owy
2.00
cie¿ka
2.0%
KONSTRUKCJA NAWIERZCHNI NR 3
latarnia
chodnik
cie¿ka rowerowa
jezdnia
KONSTRUKCJA NAWIERZCHNI NR 4
Przekrj przez pas wy‡„czenia
ul. Bora-Komorowskiego
zieleniec
Szczeg‡ "C"
skala 1:20
latarnia
KONSTRUKCJA NAWIERZCHNI NR 3
3.50
Szczeg‡ "B"
skala 1:20
0.
01
teren istniej„cy
rowerowa
"A"
KONSTRUKCJA NAWIERZCHNI NR 1
Szczeg‡ "A"
skala 1:20
1.50
chodnik
0.
03
2.00
cie¿ka
0.
01
0.50-1.00
0.
10 0.
16
"E"
rowerowa
0.
23
2.0%
2.0%
2.0%
0.
10
4.0%
KONSTRUKCJA NAWIERZCHNI NR 1
0.
30
GENERALNY PROJEKTANT
Budowa uk‡adu drogowego dla C.H. SERENADA
bariera ochronna
0.50
+ 0,05
- 0,07
KONSTRUKCJA NAWIERZCHNI NR 4
cie¿ka rowerowa
43 cm
3.50
‡awa betonowa z oporem
podsypka cem.-piask. 1:4
"E"
0.
10 0.
01
SUMA
teren istniej„cy
1:
1.
5
0.50
bariera ochronna
18 cm
pod‡o¿e o nonoci G1 (lub warstwa wzmacniaj„ca min. 45cm)
podsypka cem.-piask. 1:4
‡awa betonowa z oporem
przy al. Bora Komorowskiego i ul. Dobrego Pasterza w Krakowie.
2.30
pas ruchu
-
warstwa z mieszanki zwi„zanej cementem C8/10 dylatowana
6.00
obrze¿e betonowe 8x30
podsypka cem.-piask. 1:4
flelbetowa ciana oporowa
latarnia
2.0%
m uropor
owy
25 cm
chodnik pobocze
+ 0,05
2.0%
4.80
warstwa antyspŒkaniowa
0.50
0.21
podsypka cem.-piask. 1:4
porŒcz
0.95
pas ruchu
KONSTRUKCJA NAWIERZCHNI NR 3
KATEGORIA OBCI¥flENIA: KR 5
ZATOKI AUTOBUSOWE
warstwa cieralna z betonu cementowego zbrojonego C30/37
dylatowana (barwiona na czerwono)
pas ruchu
2.00
0.50
KONSTRUKCJA NAWIERZCHNI NR 1
KONSTRUKCJA NAWIERZCHNI NR 5
3.50
0.
03
SUMA
cie¿ka rowerowa
0.
050.
15 0.
15
warstwa cieralna z AC 8 S
3.50
bariera ochronna
KONSTRUKCJA NAWIERZCHNI NR 3
CIEflKA ROWEROWA
warstwa podbudowy z kruszywa ‡amanego
stabilizowanego mechanicznie 0/31,5
3.30
"A"
KONSTRUKCJA NAWIERZCHNI NR 4
m uropor
owy
26 cm
obrze¿e betonowe 8x30
1.50
szeroko zmienna
SUMA
0.28
Kapa chodnikowa
porŒcz
2.0%
mi
n.0.
15
warstwa podbudowy z kruszywa ‡amanego
stabilizowanego mechanicznie 0/31,5
-0,00
2.0%
0.
30
podsypka z piasku ostrego p‡ukanego
2.0%
+
8 cm
0.
10
bariera ochronna
CHODNIKI, WYSPY, POBOCZE NA ESTAKADZIE
warstwa cieralna z kostki betonowej bezfazowej
budynku
0.
03
bariera ochronna
KONSTRUKCJA NAWIERZCHNI NR 3
lico
chodnik
0.50
0.
05
pas ruchu
0.
03
pas ruchu
0.50
BarieroporŒcz sztywna
kotwiona do podlo¿a
Przekrj przez drogŒ dojazdow„ nr 1
wraz z murem oporowym
i rezerw„ pod chodnik
0.
10
3.30
0.
05
cie¿ka rowerowa
2.00
0.80
3.50
0.
10
chodnik
3.50
0.
23
szeroko zmienna
3.30
0.
30
Bariera betonowa
1.50
ok.7.
40
min. 3.20
(C 0,4/0,5 jednak nie wiŒcej ni¿ 4,0 MPa)
+
G4 - 35cm mieszanka zwi„zana spoiwem drogowym wg PN-EN 14227-5
0.
28
porŒcz
4.80
(C 0,4/0,5 jednak nie wiŒcej ni¿ 4,0 MPa)
istniej„ca
2.0%
0.
23
porŒcz
G3 - 25cm mieszanka zwi„zana spoiwem drogowym wg PN-EN 14227-5
pas w‡„czenia
0.10
0.03 0.08
2.0%
(C 0,4/0,5 jednak nie wiŒcej ni¿ 4,0 MPa)
nawierzchnia
cie¿ka rowerowa
chodnik
0.
01
8 cm
11 cm
0.
03
warstwa wi„¿„ca AC 16 W
podbudowa zasadnicza AC 22 P
Szczeg‡ "F"
skala 1:20
0.
02
4 cm
0.
01
KONSTRUKCJA NAWIERZCHNI NR 1
warstwa cieralna SMA 11 S
0.
01
KATEGORIA OBCI¥flENIA: KR 4
UL. DOBREGO PASTERZA
KONSTRUKCJA NAWIERZCHNI NR 3
data projektu
podsypka cem.-piask. 1:4
‡awa betonowa C12/15
12.12.2013
egzemplarz nr
zmiana nr
skala
1:100
1:20
nr rys.
2.4