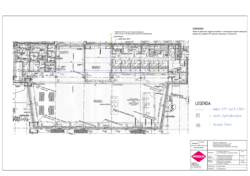
LEGENDA:

Transkrypt

LEGENDA:
UWAGA:
1xMM 4G 50/125 w istn. trasach kablowych
z BD-1/2 pom.1.26 Warszawa Wschodnia Dalekobieżna
Kable na głównych ciągach prowadzić w istniejących trasach kablowych
Dojścia do urządzeń AP wykonać natynkowo w rurkach RL.
2xFTPkat.6
szafa tele. BD-1
AP7
AP7
LEGENDA:
AP6
UMOWA
BRANŻA
PROJEKT WYKONAWCZY
Instalacji sieci WLAN na dworcu PKP
Warszawa Wschodnia Dalekobieżna
i Warszawa Wschodnia Podmiejska w Warszawie
TELETECHNIKA
INWESTOR:
ADRES
INWESTYCJI
NAZWA
RYSUNKU:
Passus S.A.
ul.Wiktorska 63
02-587 Warszawa
tel.: +48 22 540 18 42
fax : +48 22 540 18 29
TK Telekom spółka z o.o.
03-743 Warszawa, ul. Kijowska 10/12A,
Warszawa Wschodnia Dalekobieżna:
ul. Kijowska 20, 03-743 Warszawa;
Warszawa Wschodnia Podmiejska:
ul. Lubelska 24, 03-802 Warszawa
SKALA :
NUMER RYS. :
3
DATA:
Lokalizacja AP i trasy kablowe
Dworzec Warszawa Wschodnia
ul. Lubelska - rzut parteru
OPRACOWAŁ
Grzegorz Mielech
SPRAWDZIŁ
Andrzej Bogaczuk
7.10.2014