Deklaracja na podatek od nieruchomości

Transkrypt

Deklaracja na podatek od nieruchomości
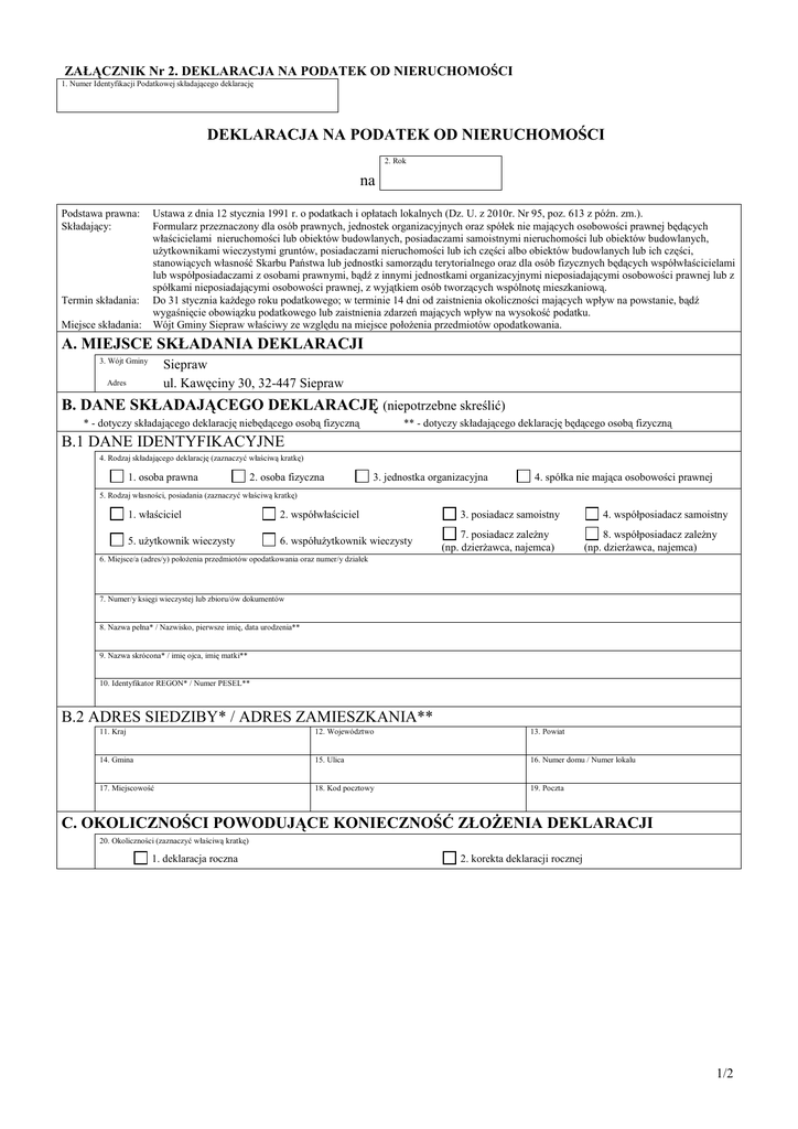
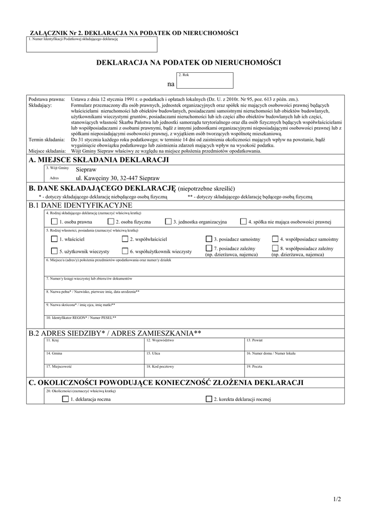
ZAŁĄCZNIK Nr 2. DEKLARACJA NA PODATEK OD NIERUCHOMOŚCI
1. Numer Identyfikacji Podatkowej składającego deklarację
DEKLARACJA NA PODATEK OD NIERUCHOMOŚCI
2. Rok
na
Podstawa prawna:
Składający:
Termin składania:
Miejsce składania:
Ustawa z dnia 12 stycznia 1991 r. o podatkach i opłatach lokalnych (Dz. U. z 2010r. Nr 95, poz. 613 z późn. zm.).
Formularz przeznaczony dla osób prawnych, jednostek organizacyjnych oraz spółek nie mających osobowości prawnej będących
właścicielami nieruchomości lub obiektów budowlanych, posiadaczami samoistnymi nieruchomości lub obiektów budowlanych,
użytkownikami wieczystymi gruntów, posiadaczami nieruchomości lub ich części albo obiektów budowlanych lub ich części,
stanowiących własność Skarbu Państwa lub jednostki samorządu terytorialnego oraz dla osób fizycznych będących współwłaścicielami
lub współposiadaczami z osobami prawnymi, bądź z innymi jednostkami organizacyjnymi nieposiadającymi osobowości prawnej lub z
spółkami nieposiadającymi osobowości prawnej, z wyjątkiem osób tworzących wspólnotę mieszkaniową.
Do 31 stycznia każdego roku podatkowego; w terminie 14 dni od zaistnienia okoliczności mających wpływ na powstanie, bądź
wygaśnięcie obowiązku podatkowego lub zaistnienia zdarzeń mających wpływ na wysokość podatku.
Wójt Gminy Siepraw właściwy ze względu na miejsce położenia przedmiotów opodatkowania.
A. MIEJSCE SKŁADANIA DEKLARACJI
3. Wójt Gminy
Siepraw
ul. Kawęciny 30, 32-447 Siepraw
Adres
B. DANE SKŁADAJĄCEGO DEKLARACJĘ (niepotrzebne skreślić)
* - dotyczy składającego deklarację niebędącego osobą fizyczną
** - dotyczy składającego deklarację będącego osobą fizyczną
B.1 DANE IDENTYFIKACYJNE
4. Rodzaj składającego deklarację (zaznaczyć właściwą kratkę)
1. osoba prawna
2. osoba fizyczna
3. jednostka organizacyjna
4. spółka nie mająca osobowości prawnej
5. Rodzaj własności, posiadania (zaznaczyć właściwą kratkę)
1. właściciel
2. współwłaściciel
5. użytkownik wieczysty
6. współużytkownik wieczysty
3. posiadacz samoistny
7. posiadacz zależny
(np. dzierżawca, najemca)
4. współposiadacz samoistny
8. współposiadacz zależny
(np. dzierżawca, najemca)
6. Miejsce/a (adres/y) położenia przedmiotów opodatkowania oraz numer/y działek
7. Numer/y księgi wieczystej lub zbioru/ów dokumentów
8. Nazwa pełna* / Nazwisko, pierwsze imię, data urodzenia**
9. Nazwa skrócona* / imię ojca, imię matki**
10. Identyfikator REGON* / Numer PESEL**
B.2 ADRES SIEDZIBY* / ADRES ZAMIESZKANIA**
11. Kraj
12. Województwo
13. Powiat
14. Gmina
15. Ulica
16. Numer domu / Numer lokalu
17. Miejscowość
18. Kod pocztowy
19. Poczta
C. OKOLICZNOŚCI POWODUJĄCE KONIECZNOŚĆ ZŁOŻENIA DEKLARACJI
20. Okoliczności (zaznaczyć właściwą kratkę)
1. deklaracja roczna
2. korekta deklaracji rocznej
1/2
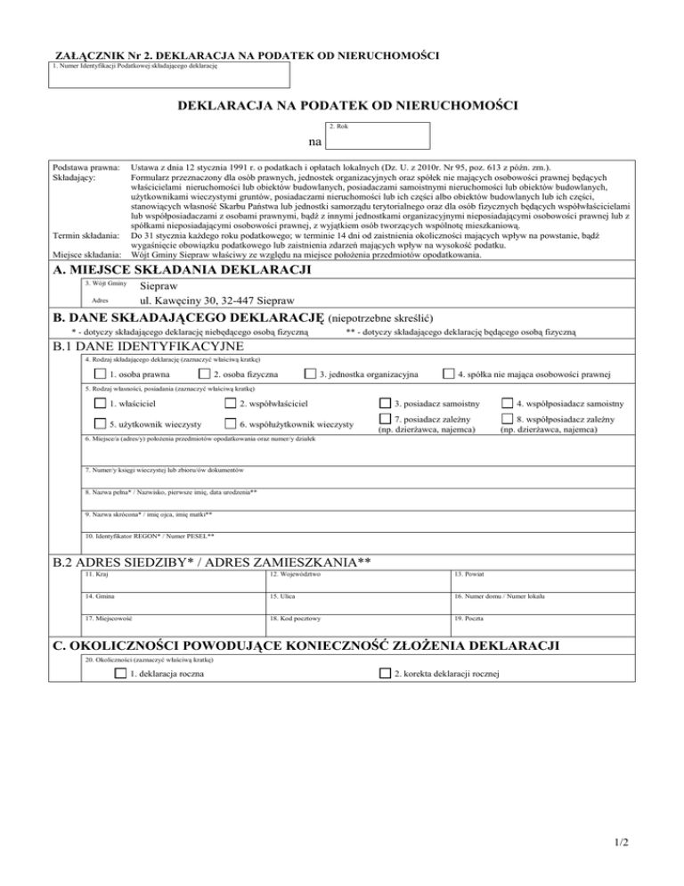
D. DANE DOTYCZĄCE PRZEDMIOTÓW OPODATKOWANIA (z wyjątkiem zwolnionych)
Wyszczególnienie
Podstawa
opodatkowania
Stawka podatku
wynikająca z
Uchwały Rady
Gminy
Kwota podatku w zł
21.
22.
23.
D.1 POWIERZCHNIA GRUNTÓW
1. związanych z prowadzeniem działalności gospodarczej, bez względu na
sposób zakwalifikowania w ewidencji gruntów i budynków
,
m2
2. pod jeziorami, zajętych na zbiorniki wodne retencyjne lub elektrowni
wodnych
24.
3. pozostałych, w tym zajętych na prowadzenie odpłatnej statutowej
działalności pożytku publicznego przez organizację pożytku
publicznego.
27.
1. mieszkalnych - ogółem
30.
25.
ha
,
28.
m2
D.2 POWIERZCHNIA UŻYTKOWA BUDYNKÓW LUB ICH CZĘŚCI (*)
33.
3. zajętych na prowadzenie działalności gospodarczej w zakresie obrotu
kwalifikowanym materiałem siewnym,
36.
4. związanych z udzielaniem świadczeń zdrowotnych w rozumieniu
przepisów o działalności leczniczej, zajętych przez podmioty
udzielające tych świadczeń,
39.
5. pozostałych, w tym zajętych na prowadzenie odpłatnej statutowej
działalności pożytku publicznego przez organizacje pożytku
publicznego
42.
29.
,
31.
m2
2. związanych z prowadzeniem działalności gospodarczej oraz od
budynków mieszkalnych lub ich części zajętych na prowadzenie
działalności gospodarczej,
26.
32.
,
34.
m
2
m
2
35.
,
37.
38.
,
40.
m2
41.
,
43.
m
2
44.
,
D.3 BUDOWLE
1. budowle
45.
46.
zł
(wartość, o której mowa w przepisach o podatkach dochodowych)
47.
2%
E. ŁĄCZNA KWOTA PODATKU
Kwota podatku
48.
Suma kwot z kol. D (należy zaokrąglić do pełnych złotych)
F. INFORMACJA O PRZEDMIOTACH ZWOLNIONYCH
(podać powierzchnię, bądź wartość budowli przedmiotów zwolnionych oraz przepis prawa - z jakiego tytułu występuje zwolnienie)
G. OŚWIADCZENIE I PODPIS SKŁADAJĄCEGO / OSOBY REPREZENTUJĄCEJ
SKŁADAJĄCEGO
Oświadczam, że podane przeze mnie dane są zgodne z prawdą.
49. Imię
50. Nazwisko
51. Data wypełnienia (dzień - miesiąc - rok)
52. Podpis (pieczęć) składającego / osoby reprezentującej składającego
H. ADNOTACJE ORGANU PODATKOWEGO
53. Uwagi organu podatkowego
54. Data i podpis przyjmującego formularz
***)Pouczenie
Niniejsza deklaracja stanowi podstawę do wystawienia tytułu wykonawczego, zgodnie z przepisami ustawy z dnia 17
czerwca 1966r. o postępowaniu egzekucyjnym w administracji (Dz.U. z 2002r. Nr 110, poz 968 z późn. zm.)
2/2