Załącznik nr 4 - Urząd Miasta Iławy

Transkrypt

Załącznik nr 4 - Urząd Miasta Iławy
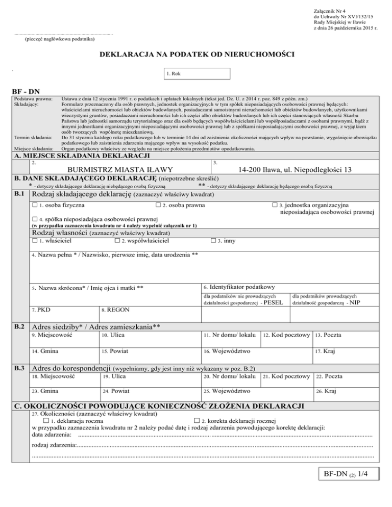
Załącznik Nr 4
do Uchwały Nr XVI/132/15
Rady Miejskiej w Iławie
z dnia 26 października 2015 r.
...........................................................................
(pieczęć nagłówkowa podatnika)
DEKLARACJA NA PODATEK OD NIERUCHOMOŚCI
.
1. Rok
BF - DN
Podstawa prawna:
Składający:
Termin składania:
Miejsce składania:
Ustawa z dnia 12 stycznia 1991 r. o podatkach i opłatach lokalnych (tekst jed. Dz. U. z 2014 r. poz. 849 z późn. zm.)
Formularz przeznaczony dla osób prawnych, jednostek organizacyjnych w tym spółek nieposiadających osobowości prawnej będących:
właścicielami nieruchomości lub obiektów budowlanych, posiadaczami samoistnymi nieruchomości lub obiektów budowlanych, użytkownikami
wieczystymi gruntów, posiadaczami nieruchomości lub ich części albo obiektów budowlanych lub ich części stanowiących własność Skarbu
Państwa lub jednostki samorządu terytorialnego oraz dla osób będących współwłaścicielami lub współposiadaczami z osobami prawnymi, bądź z
innymi jednostkami organizacyjnymi nieposiadającymi osobowości prawnej lub z spółkami nieposiadającymi osobowości prawnej, z wyjątkiem
osób tworzących wspólnotę mieszkaniową.
Do 31 stycznia każdego roku podatkowego lub w terminie 14 dni od zaistnienia okoliczności mających wpływ na powstanie, wygaśnięcie obowiązku
podatkowego lub zaistnienia zdarzenia mającego wpływ na wysokość podatku.
Organ podatkowy właściwy ze względu na miejsce położenia przedmiotów opodatkowania.
A. MIEJSCE SKŁADANIA DEKLARACJI
2.
3.
BURMISTRZ MIASTA IŁAWY
14-200 Iława, ul. Niepodległości 13
B. DANE SKŁADAJĄCEGO DEKLARACJĘ (niepotrzebne skreślić)
* - dotyczy składającego deklarację niebędącego osobą fizyczną
** - dotyczy składającego deklarację będącego osobą fizyczną
B.1 Rodzaj składającego deklarację (zaznaczyć właściwy kwadrat)
 1. osoba fizyczna
 2. osoba prawna
 3. jednostka organizacyjna
nieposiadająca osobowości prawnej
 4. spółka nieposiadająca osobowości prawnej
(w przypadku zaznaczenia kwadratu nr 4 należy wypełnić załącznik nr 1)
Rodzaj własności (zaznaczyć właściwy kwadrat)
 1. właściciel
 2. współwłaściciel
4.
Nazwa pełna * / Nazwisko, pierwsze imię, data urodzenia **
5.
Nazwa skrócona* / Imię ojca i matki **
 3. inny
6.
Identyfikator podatkowy
dla podatników nie prowadzących
działalności gospodarczej - PESEL
7. PKD
B.2
8. REGON
Adres siedziby* / Adres zamieszkania**
9.
Miejscowość
14.
B.3
dla podatników prowadzących
działalność gospodarczą - NIP
Gmina
10.
Ulica
11.
Nr domu/ lokalu
15.
Powiat
16.
Województwo
12.
Kod pocztowy 13. Poczta
17.
Kraj
Adres do korespondencji (wypełniamy, gdy jest inny niż wykazany w poz. B.2)
18.
Miejscowość
19.
Ulica
20.
Nr domu/ lokalu
23.
Gmina
24.
Powiat
25.
Województwo
21.
Kod pocztowy 22. Poczta
26.
Kraj
C. OKOLICZNOŚCI POWODUJĄCE KONIECZNOŚĆ ZŁOŻENIA DEKLARACJI
Okoliczności (zaznaczyć właściwy kwadrat)
 1. deklaracja roczna
 2. korekta deklaracji rocznej
w przypadku zaznaczenia kwadratu nr 2 należy podać datę i rodzaj zdarzenia powodującego korektę deklaracji:
data zdarzenia: ...................................................................................................................................................................................
27.
rodzaj zdarzenia:............................................................................................................ ........................................................................
................................................................................................................................................................................................................
BF-DN (2) 1/4
D. DANE DOTYCZĄCE PRZEDMIOTÓW OPODATKOWANIA (z wyłączeniem zwolnionych)
W zakresie danych identyfikacyjnych należy wypełnić załącznik nr 2, 3, 4
D.1. BUDYNKI LUB ICH CZĘŚCI (do powierzchni użytkowej budynku lub jego części należy zaliczyć powierzchnię mierzoną po wewnętrznej długości
ścian na wszystkich kondygnacjach, z wyjątkiem powierzchni klatek schodowych oraz szybów dźwigowych.
Za kondygnację uważa się również garaże podziemne, piwnice, sutereny i poddasza użytkowe.)
przedmiot opodatkowania
podstawa opodatkowania
28.
stawka
podatku zł/gr
29.
30.
32.
33.
35.
36.
38.
39.
41.
42.
44.
45.
47.
48.
kwota podatku zł/gr
m2
1. mieszkalne
2. związane z prowadzeniem działalności gospodarczej
oraz budynki mieszkalne lub ich części
zajęte na prowadzenie działalności gospodarczej
3. domki campingowe, obiekty sanitarne znajdujące się
na polach namiotowych oraz budynki letniskowe
4. znajdujące się na terenie wysypisk odpadów
komunalnych
5. zajęte na prowadzenie działalności gospodarczej w
zakresie obrotu kwalifikowanym materiałem siewnym
6. związane z udzielaniem świadczeń zdrowotnych w
rozumieniu przepisów o działalności leczniczej,
zajętych przez podmioty udzielające tych świadczeń
7. pozostałe, w tym zajęte na prowadzenie odpłatnej
statutowej działalności pożytku publicznego przez
organizacje pożytku publicznego
31.
m2
34.
m2
37.
m2
40.
m2
43.
m2
46.
m2
D.2. BUDOWLE LUB ICH CZĘŚĆI ZWIĄZANE Z PROWADZENIEM DZIAŁALNOŚCI GOSPODARCZEJ
(podstawa opodatkowania w zaokrągleniu do pełnych złotych)
1. znajdujące się na terenie wysypisk odpadów
komunalnych
49.
52.
2. pozostałe
50.
51.
53.
54.
56.
57.
59.
60.
62.
63.
65.
66.
zł
zł
D.3. GRUNTY
1. związane z prowadzeniem działalności gospodarczej,
bez względu na sposób zakwalifikowania w ewidencji
gruntów i budynków
2. przeznaczone na pole namiotowe i prowadzenie
wysypisk odpadów komunalnych
3. pod wodami powierzchniowymi stojącymi lub wodami
powierzchniowymi płynącymi jezior i zbiorników
sztucznych
4. pozostałe, w tym zajęte na prowadzenie odpłatnej
statutowej działalności pożytku publicznego przez
organizacje pożytku publicznego
55.
m2
58.
m2
61.
ha
64.
m2
E. ŁĄCZNA KWOTA PODATKU
67.
Kwota podatku (po zaokrągleniu do pełnych złotych)
F. DANE DOTYCZĄCE ZWOLNIEŃ PODATKOWYCH
W zakresie danych identyfikacyjnych należy wypełnić załącznik nr 2, 3, 4
F.1. BUDYNKI LUB ICH CZĘŚCI (do powierzchni użytkowej budynku lub jego części należy zaliczyć powierzchnię mierzoną po wewnętrznej długości
ścian na wszystkich kondygnacjach, z wyjątkiem powierzchni klatek schodowych oraz szybów dźwigowych.
Za kondygnację uważa się również garaże podziemne, piwnice, sutereny i poddasza użytkowe.)
przedmiot opodatkowania
stawka
podatku zł/gr
69.
podstawa opodatkowania
68.
1. mieszkalne
kwota podatku zł/gr
70.
m2
BF-DN (2) 2/4
2. związane z prowadzeniem działalności gospodarczej
oraz budynki mieszkalne lub ich części
zajęte na prowadzenie działalności gospodarczej
3. domki campingowe, obiekty sanitarne znajdujące się
na polach namiotowych oraz budynki letniskowe
4. znajdujące się na terenie wysypisk odpadów
komunalnych
5. zajęte na prowadzenie działalności gospodarczej w
zakresie obrotu kwalifikowanym materiałem siewnym
6. związane z udzielaniem świadczeń zdrowotnych w
rozumieniu przepisów o działalności leczniczej,
zajętych przez podmioty udzielające tych świadczeń
7. pozostałe, w tym zajęte na prowadzenie nieodpłatnej
statutowej działalności pożytku publicznego przez
organizacje pożytku publicznego
8. stanowiące własność gminy z wyjątkiem zajętych na
działalność gospodarczą lub będących w posiadaniu
innych niż gmina jednostek sektora finansów
publicznych oraz pozostałych podmiotów
71.
72.
73.
75.
76.
78.
79.
81.
82.
84.
85.
93.
94.
96.
97.
m2
74.
m2
77.
m2
80.
m2
83.
m2
92.
m2
95.
F.2. BUDOWLE LUB ICH CZĘŚĆI ZWIĄZANE Z PROWADZENIEM DZIAŁALNOŚCI GOSPODARCZEJ
(podstawa opodatkowania w zaokrągleniu do pełnych złotych)
1. znajdujące się na terenie wysypisk odpadów
komunalnych
2. pozostałe
98.
99.
100.
102.
103.
105.
106.
108.
109.
111.
112.
114.
115.
117.
118.
zł
101.
zł
F.3. GRUNTY
1. związane z prowadzeniem działalności gospodarczej,
bez względu na sposób zakwalifikowania w ewidencji
gruntów i budynków
2. przeznaczone na pole namiotowe i prowadzenie
wysypisk odpadów komunalnych
3. pod wodami powierzchniowymi stojącymi lub wodami
powierzchniowymi płynącymi jezior i zbiorników
sztucznych
4. pozostałe, w tym zajęte na prowadzenie nieodpłatnej
statutowej działalności pożytku publicznego przez
organizacje pożytku publicznego
5. stanowiące własność gminy z wyjątkiem zajętych na
działalność gospodarczą lub będących w posiadaniu
innych niż gmina jednostek sektora finansów
publicznych oraz pozostałych podmiotów
104.
m2
107.
m2
110.
ha
113.
2
m
116.
m2
G. ŁĄCZNA KWOTA ZWOLNIENIA
Kwota podatku (po zaokrągleniu do pełnych złotych)
119.
BF-DN (2) 3/4
H. INFORMACJA O SKŁADANYCH ZAŁĄCZNIKACH
120. Liczba
załączników nr 1
121. Liczba
załączników nr 2
122. Liczba
załączników nr 3
123. Liczba
załączników nr 4
I. POUCZENIE
1. Należy wypełnić wszystkie strony deklaracji. W miejsca niewypełnione postawić kreskę.
2. Osoby składające deklarację są obowiązane wpłacać obliczony podatek bez wezwania na rachunek Urzędu Miasta Iławy, w ratach proporcjonalnych do czasu trwania
obowiązku podatkowego, w terminie do dnia 15 każdego miesiąca, a za styczeń do dnia 31 stycznia.
3. W przypadku gdy kwota podatku nie przekracza 100 zł, podatek jest płatny jednorazowo w terminie płatności pierwszej raty.
4. Formularz deklaracji w wersji elektronicznej dostępny jest w Biuletynie Informacji Publicznej pod adresem http://www.bip.umilawa.pl
5. W razie niewykonania w całości lub w części zadeklarowanego zobowiązania podatkowego, niniejsza deklaracja stanowi podstawę do wystawienia tytułu
wykonawczego, zgodnie z przepisami ustawy z dnia 17 czerwca 1966 r. o postępowaniu egzekucyjnym w administracji (Dz. U. z 2014 r. poz. 1619, z późn. zm.)
6. Podstawy opodatkowania, kwoty podatków, odsetki za zwłokę, opłaty prolongacyjne, oprocentowanie nadpłat oraz wynagrodzenia przysługujące płatnikom i
inkasentom zaokrągla się do pełnych złotych w ten sposób, że końcówki kwot wynoszące mniej niż 50 groszy pomija się, a końcówki kwot wynosząc 50 i więcej
groszy podwyższa się do pełnych złotych
J. OŚWIADCZENIE
I PODPIS SKŁADAJĄCEGO / OSOBY REPREZENTUJĄCEJ SKŁADAJĄCEGO
(należy dołączyć pełnomocnictwo lub inny dokument będący podstawą do składania oświadczeń – reprezentowania podatnika)
Oświadczam, że są mi znane przepisy Kodeksu karnego skarbowego o odpowiedzialności za podanie danych
niezgodnych z rzeczywistością.
................................................................................
Osoba odpowiedzialna za sporządzenie deklaracji
(imię i nazwisko)
..........................................................
Główny Księgowy
(podpis i pieczątka)
.................................................
Kierownik Jednostki
(podpis i pieczątka)
Numer telefonu ...................................................... data wypełnienia deklaracji .......................................................................
K. ADNOTACJE ORGANU PODATKOWEGO
Uwagi organu podatkowego:
.........................................
data wpływu deklaracji
........................................................... ...................
podpis przyjmującego deklarację
BF-DN (2) 4/4
Załącznik Nr 1 do BF-DN
na rok .................
..............................................................
(pieczęć nagłówkowa podatnika)
DANE IDENTYFIKACYJNE WSPÓLNIKÓW SPÓŁKI NIEPOSIADAJĄCEJ
OSOBOWOŚCI PRAWNEJ
Numer Identyfikacji Podatkowej
Kraj
1
Gmina
Województwo
Gmina
3
Gmina
4
Gmina
Miejscowość
Nr lokalu
Poczta
Nazwisko i imię
Województwo
Powiat
Ulica
Nr domu
Kod pocztowy
Numer Identyfikacji Podatkowej
Kraj
Nr domu
Kod pocztowy
Miejscowość
Poczta
Powiat
Ulica
Numer Identyfikacji Podatkowej
Nr lokalu
Nazwisko i imię
Województwo
Miejscowość
Kraj
Nr domu
Kod pocztowy
Numer Identyfikacji Podatkowej
2
Powiat
Ulica
Miejscowość
Kraj
Nazwisko i imię
Nr lokalu
Poczta
Nazwisko i imię
Województwo
Powiat
Ulica
Nr domu
Kod pocztowy
Poczta
Nr lokalu
Załącznik Nr 2 do BF-DN
na rok ................
...........................................................
(pieczęć nagłówkowa podatnika)
ZAŁĄCZNIK DO DEKLARACJI NA PODATEK OD NIERUCHOMOŚCI
w zakresie budynków lub ich części
 1.objętych opodatkowaniem
 2. zwolnionych z opodatkowania
Lp.
Położenie nieruchomości
(ulica, numer)
Przedmiot
opodatkowania*
Nr księgi
wieczystej
Nr
obrębu
Nr
działki
Powierzchnia
użytkowa
budynków/lokali
1
2
3
4
5
6
7
Ogółem powierzchnia
* Należy wpisać oznaczenie przedmiotu opodatkowania np. budynki mieszkalne - D.1.1.
** Należy wpisać odpowiednią formę władania: własność, wieczysty użytkownik, posiadanie samoistne,
współposiadanie, współwłasność, posiadanie z tytułem prawnym do gruntu Skarbu Państwa lub jednostki
samorządu terytorialnego, posiadanie bez tytułu prawnego do gruntu Skarbu Państwa lub jednostki
samorządu terytorialnego.
*** Wypełnić w przypadku zaznaczenia kwadratu nr 2.
w tym:
kondygnacji
o wysokości od
1,40 do 2,20 m
8
kondygnacji
o wysokości
powyżej 2,20 m
9
Forma
władania **
Podstawa
prawna
zwolnienia ***
10
11
Załącznik Nr 3 do BF-DN
na rok .................
.............................................................
(pieczęć nagłówkowa podatnika)
ZAŁĄCZNIK DO DEKLARACJI NA PODATEK OD NIERUCHOMOŚCI
w zakresie budowli lub ich części związanych z prowadzeniem działalności gospodarczej
 1.objętych opodatkowaniem
 2. zwolnionych z opodatkowania
Lp.
Położenie nieruchomości
(ulica, numer)
Przedmiot
opodatkowania*
Nr księgi
wieczystej
Nr obrębu
Nr działki
Wartość budowli
Forma władania **
Podstawa prawna
zwolnienia ***
1
2
3
4
5
6
7
8
9
Ogółem wartość
* Należy wpisać oznaczenie przedmiotu opodatkowania np. budowle pozostałe - D.2.2.
** Należy wpisać odpowiednią formę władania: własność, wieczysty użytkownik, posiadanie samoistne,
współposiadanie, współwłasność, posiadanie z tytułem prawnym do gruntu Skarbu Państwa lub jednostki
samorządu terytorialnego, posiadanie bez tytułu prawnego do gruntu Skarbu Państwa lub jednostki samorządu terytorialnego.
*** Wypełnić w przypadku zaznaczenia kwadratu nr 2.
Załącznik Nr 4 do BF-DN
na rok .................
.............................................................
(pieczęć nagłówkowa podatnika)
ZAŁĄCZNIK DO DEKLARACJI NA PODATEK OD NIERUCHOMOŚCI
w zakresie gruntów
 1.objętych opodatkowaniem
 2. zwolnionych z opodatkowania
Lp.
Położenie nieruchomości
(ulica, numer
Przedmiot
opodatkowania*
Nr księgi
wieczystej
Nr obrębu
Nr działki
Powierzchnia
gruntów/działki
Forma władania **
Podstawa prawna
zwolnienia ***
1
2
3
4
5
6
7
8
9
Ogółem powierzchnia
* Należy wpisać oznaczenie przedmiotu opodatkowania np. grunty pozostałe – D.3.4.
** Należy wpisać odpowiednią formę władania: własność, wieczysty użytkownik, posiadanie samoistne,
współposiadanie, współwłasność, posiadanie z tytułem prawnym do gruntu Skarbu Państwa lub jednostki
samorządu terytorialnego, posiadanie bez tytułu prawnego do gruntu Skarbu Państwa lub jednostki
samorządu terytorialnego.
*** Wypełnić w przypadku zaznaczenia kwadratu nr 2.