BIBLIOTEKA W SKOKACH Temat: Projekt aranżacji wnętrz Nazwa
Transkrypt
										BIBLIOTEKA W SKOKACH Temat: Projekt aranżacji wnętrz Nazwa
                                        
                                        
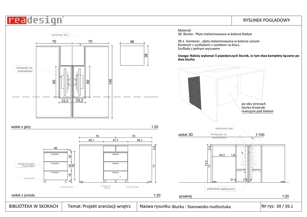
                                RYSUNEK POGLADOWY Materiał: 39. Biurko - Płyta melaminowana w kolorze białym kontener 39.1 70 39.1. Kontener - płyta melaminowana w kolorze szarym Kontener z szufladami z zamkiem na klucz. Szuflady z pełnym wysuwem 46 38 70 Uwaga: Należy wykonać 5 pojedynczych biurek, w tym dwa komplety łączone po dwa biurka 140 60 60 komputer na podnośniku 23,2 23,2 po obu stronach biurka drzwiczki rewizyjne pod blatem widok z góry 1:20 70 2 44,3 73,5 71 71 18 55 1,8 18 uchwyty wpuszczane w front szuflady 1:100 2,5 46,1 2,5 47,7 komputer na podnośniku 18 46 widok 3D 70 46,1 otwierany blat kółka jezdne 5 21,4 ochronne stopki kontener na kółkach ochronne stopki widok z przodu BIBLIOTEKA W SKOKACH podnośnik elektryczny 1:20 Temat: Projekt aranżacji wnętrz 1,8 przekrój Nazwa rysunku: Biurko - Stanowisko multisztuka 1:20 Nr rys: 39 / 39.1
 doc
                    doc download
															download                                                         Reklamacja
															Reklamacja                                                         
		     
		     
		     
		     
		     
		     
		     
		     
		     
		     
		     
		    