2 35 + = S - Hurtownia Komandor

Transkrypt

2 35 + = S - Hurtownia Komandor
SYSTEM ZABUDOWY SZAFY LUB WNĘKI
MULTIYOHO
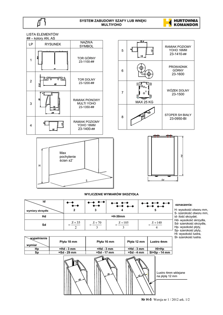
LISTA ELEMENTÓW
## – kolory AN, AS
LP
NAZWA
SYMBOL
RYSUNEK
RAMIAK POZIOMY
YOHO 16MM
23-1410-##
5
TOR GÓRNY
23-1100-##
1
PROWADNIK
GÓRNY
6
23-1600
TOR DOLNY
23-1200-##
2
WÓZEK DOLNY
7
23-1500
RAMIAK PIONOWY
MULTI YOHO
23-1350-##
3
MAX 25 KG
STOPER SH BIAŁY
8
23-0950-BI
RAMIAK POZIOMY
YOHO 18MM
23-1400-##
4
Max
pochylenie
ścian ±2˚
H
S
WYLICZENIE WYMIARÓW SKDZYDŁA
id
oznaczenia:
2
wymiary skrzydła
3
4
Hd
Sd
5
=H-30mm
=
S + 35
2
=
S + 70
3
=
S + 105
3
=
S + 140
4
wypełnienie
wymiar
Hp
Sp
Płyta 18 mm
Płyta 16 mm
Płyta 12 mm
Lustro 4mm
=Hd - 3 mm
=Sd - 29 mm
=Hd - 3 mm
=Sd - 17 mm
=Hd - 3 mm
=Sd - 4 mm
Hl=Hp
Sl=Sp - 14 mm
H- wysokość otworu mm,
S- szerokość otworu mm,
id- ilość skrzydeł,
Hd- wysokość skrzydła,
Sd- szerokość skrzydła,
Hp- wysokość płyty,
Sp- szerokość płyty,
Hl- wysokość lustra,
Sl- szerokość lustra.
Lustro 4mm wklejane
na płytę 12 mm
Nr H-5 Wersja nr 1 / 2012 ark. 1/2
Wkręt, co 500mm
Płyta16
Płyta16mm
Płyta 16mm lub 18mm
UWAGA:
Producent nie ponosi odpowiedzialności za wszelkie uszkodzenia systemu oraz jego wadliwe działanie, straty w mieniu oraz urazy osób i zwierząt spowodowane
wykonaniem niezgodnym z „Instrukcją montaŜu systemu” lub uŜyciem elementów niezgodnych ze specyfikacją. Materiały uŜyte jako wypełnienie (jak płyta lub szkło)
powinny posiadać konieczne certyfikaty oraz gwarancję jakości ze strony ich producenta.
Producent nie ponosi odpowiedzialności za odkształcenia profili spowodowane uŜyciem płyt złej jakości (złe składowanie, nieodpowiednia wilgotność).
SYSTEM ZABUDOWY SZAFY LUB WNĘKI
MULTIYOHO
Wkręt, co 500mm
Płyta18mm
Nr H-5 Wersja nr 1 / 2012 ark. 2/2