E:\Dropbox\MOJE-Projekty\2016.05 - Gor-stal

Transkrypt

E:\Dropbox\MOJE-Projekty\2016.05 - Gor-stal
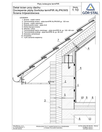
Płyty izolacyjne termPIR
Detal ścian przy dachu
Dociepenie płytą Gorlicka termPIR AL/PK/WS
Ściana trójwarstwowa
Skala
1:10
LEGENDA:
1. Ściana - część nośna
2. Termoizolacja ściany - płyta termPIR AL/PK/WS gr. 120 mm
3. Ściana - część osłonowa
4. Wykończenie ścian - płyta G-K
5. Kotwa łącząca ściany
6. Wieniec i strop
7. Termoizolacja dachu skośnego - płyta termPIR AL gr. 120 +50 mm
8. Termoizolacja podłogi - płyta termPIR AL gr. 80 mm
9. Wylewka cementowa
10. Posadzka
11. Tynk cemento-wapienny
7
4
4
2
1
5
10 9
8
3
6
Gór-Stal sp. z o.o.
ul. Przemysłowa 11
38-300 Gorlice
PRODUCENT PŁYT WARSTWOWYCH Z RDZENIEM
Z PIANKI POLIURETANOWEJ
11
tel./fax (018) 353 98 00
[email protected]
www.gor-stal.pl
Strona