PROGRAM OGRANICZENIA NISKIEJ EMISJI dla

Transkrypt

PROGRAM OGRANICZENIA NISKIEJ EMISJI dla
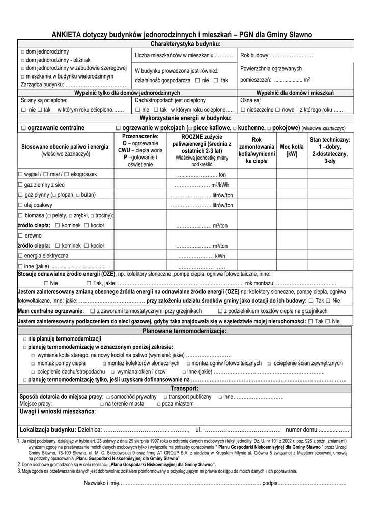
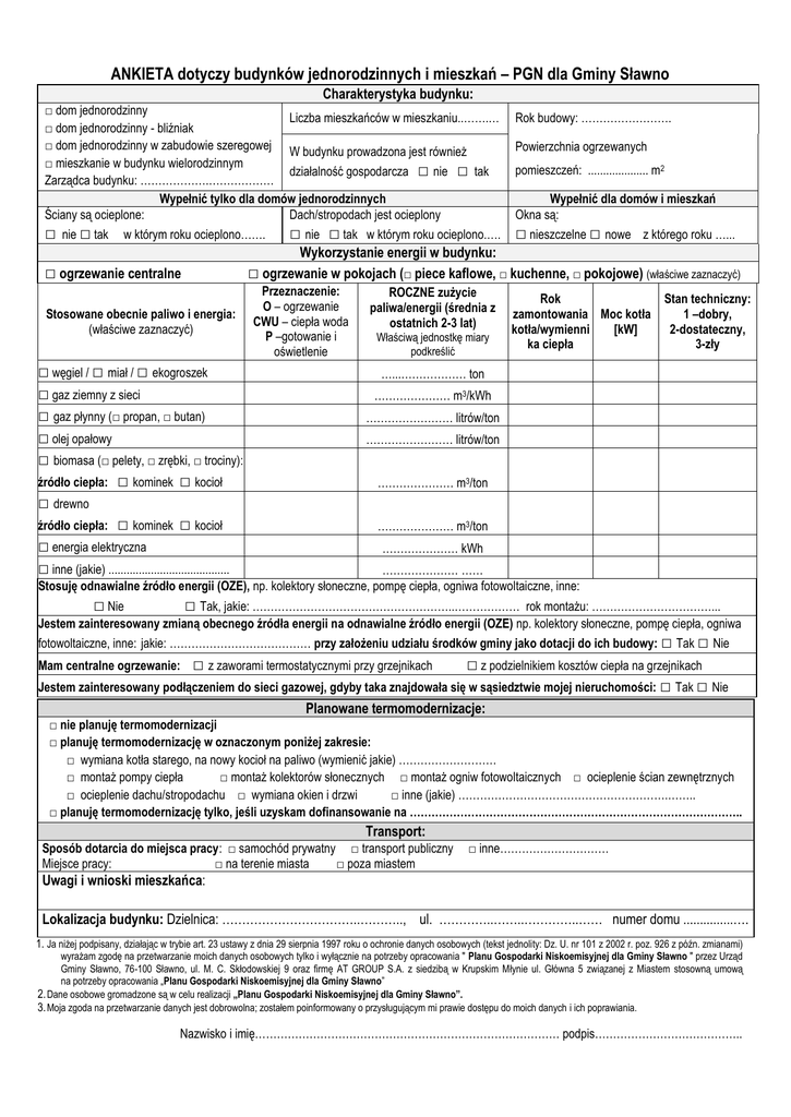
ANKIETA dotyczy budynków jednorodzinnych i mieszkań – PGN dla Gminy Sławno
Charakterystyka budynku:
□ dom jednorodzinny
Liczba mieszkańców w mieszkaniu..…….…
□ dom jednorodzinny - bliźniak
□ dom jednorodzinny w zabudowie szeregowej W budynku prowadzona jest również
□ mieszkanie w budynku wielorodzinnym
działalność gospodarcza □ nie □ tak
Zarządca budynku: ……………….………………
Wypełnić tylko dla domów jednorodzinnych
Ściany są ocieplone:
Dach/stropodach jest ocieplony
□
nie □ tak
w którym roku ocieplono…….
□ nie □ tak
w którym roku ocieplono.….
Rok budowy: …………………….
Powierzchnia ogrzewanych
pomieszczeń: .................... m2
Wypełnić dla domów i mieszkań
Okna są:
□ nieszczelne □ nowe
z którego roku …...
Wykorzystanie energii w budynku:
□ ogrzewanie w pokojach (□ piece kaflowe, □ kuchenne, □ pokojowe) (właściwe zaznaczyć)
□ ogrzewanie centralne
Stosowane obecnie paliwo i energia:
(właściwe zaznaczyć)
□ węgiel / □ miał / □ ekogroszek
□ gaz ziemny z sieci
□ gaz płynny (□ propan, □ butan)
□ olej opałowy
□ biomasa (□ pelety, □ zrębki, □ trociny):
źródło ciepła: □ kominek □ kocioł
□ drewno
źródło ciepła: □ kominek □ kocioł
□ energia elektryczna
□ inne (jakie) ........................................
Przeznaczenie:
O – ogrzewanie
CWU – ciepła woda
P –gotowanie i
oświetlenie
ROCZNE zużycie
paliwa/energii (średnia z
ostatnich 2-3 lat)
Właściwą jednostkę miary
podkreślić
Rok
zamontowania Moc kotła
kotła/wymienni
[kW]
ka ciepła
Stan techniczny:
1 –dobry,
2-dostateczny,
3-zły
…...……………… ton
………………… m3/kWh
…………………… litrów/ton
…………………… litrów/ton
………………… m3/ton
………………… m3/ton
………………… kWh
………………… ……
Stosuję odnawialne źródło energii (OZE), np. kolektory słoneczne, pompę ciepła, ogniwa fotowoltaiczne, inne:
□ Nie
□ Tak, jakie: ………………………………………………..……………… rok montażu: ……………………………...
Jestem zainteresowany zmianą obecnego źródła energii na odnawialne źródło energii (OZE) np. kolektory słoneczne, pompę ciepła, ogniwa
fotowoltaiczne, inne: jakie: ………………………………… przy założeniu udziału środków gminy jako dotacji do ich budowy: □ Tak □ Nie
□ z podzielnikiem kosztów ciepła na grzejnikach
Jestem zainteresowany podłączeniem do sieci gazowej, gdyby taka znajdowała się w sąsiedztwie mojej nieruchomości: □ Tak □ Nie
Mam centralne ogrzewanie:
□ z zaworami termostatycznymi przy grzejnikach
Planowane termomodernizacje:
□ nie planuję termomodernizacji
□ planuję termomodernizację w oznaczonym poniżej zakresie:
□ wymiana kotła starego, na nowy kocioł na paliwo (wymienić jakie) ………………………
□ montaż pompy ciepła
□ montaż kolektorów słonecznych □ montaż ogniw fotowoltaicznych □ ocieplenie ścian zewnętrznych
□ ocieplenie dachu/stropodachu □ wymiana okien i drzwi
□ inne (jakie) ………………………………………………….……..
□ planuję termomodernizację tylko, jeśli uzyskam dofinansowanie na ………………………………………………………………………………..
Transport:
Sposób dotarcia do miejsca pracy: □ samochód prywatny □ transport publiczny
Miejsce pracy:
□ na terenie miasta
□ poza miastem
□ inne…………………………
Uwagi i wnioski mieszkańca:
Lokalizacja budynku: Dzielnica: ……………………………..……….., ul. …………..……..…………..…… numer domu ...............….
1. Ja niżej podpisany, działając w trybie art. 23 ustawy z dnia 29 sierpnia 1997 roku o ochronie danych osobowych (tekst jednolity: Dz. U. nr 101 z 2002 r. poz. 926 z późn. zmianami)
wyrażam zgodę na przetwarzanie moich danych osobowych tylko i wyłącznie na potrzeby opracowania " Planu Gospodarki Niskoemisyjnej dla Gminy Sławno " przez Urząd
Gminy Sławno, 76-100 Sławno, ul. M. C. Skłodowskiej 9 oraz firmę AT GROUP S.A. z siedzibą w Krupskim Młynie ul. Główna 5 związanej z Miastem stosowną umową
na potrzeby opracowania „Planu Gospodarki Niskoemisyjnej dla Gminy Sławno”
2. Dane osobowe gromadzone są w celu realizacji „Planu Gospodarki Niskoemisyjnej dla Gminy Sławno”.
3. Moja zgoda na przetwarzanie danych jest dobrowolna; zostałem poinformowany o przysługującym mi prawie dostępu do moich danych i ich poprawiania.
Nazwisko i imię………………………………………………………………………… podpis…………………………………..