OSIEDLE "HARMONIA OLIWSKA" Gdańsk, ul. Opacka

Transkrypt

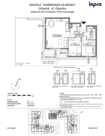
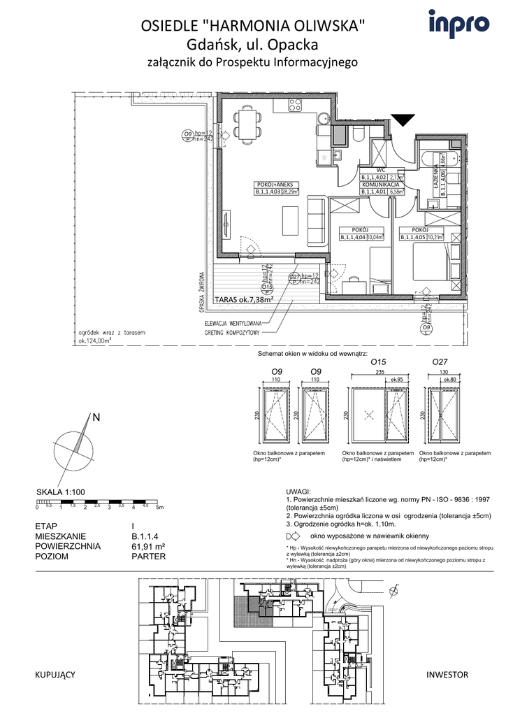
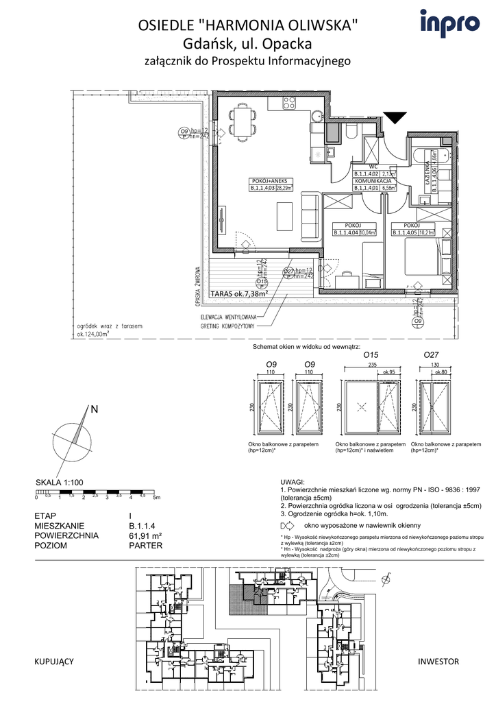
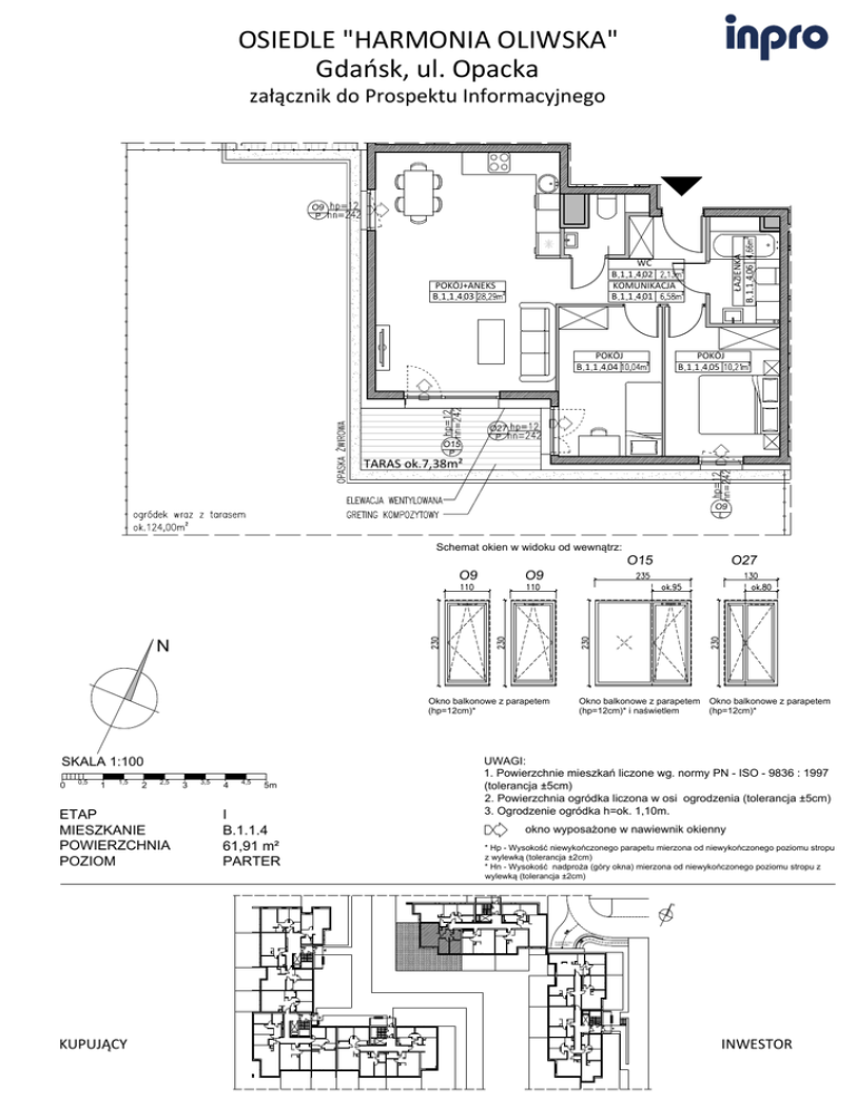
OSIEDLE "HARMONIA OLIWSKA" Gdańsk, ul. Opacka
TARAS ok.10,45m²
OSIEDLE "HARMONIA OLIWSKA"
Gdańsk, ul. Opacka
załącznik do Prospektu Informacyjnego
O9
ŁAZIENKA
B 1 1 4 06
P
WC
B 1 1 4 02
KOMUNIKACJA
B 1 1 4 01
POKÓJ+ANEKS
B 1 1 4 03
POKÓJ
B 1 1 4 04
POKÓJ
B 1 1 4 05
O27
O15
P
P
TARAS ok.7,38m²
O9
L
Schemat okien w widoku od wewnątrz:
O9
O9
O15
O27
N
Okno balkonowe z parapetem
(hp=12cm)*
SKALA 1:100
0
0,5
1
1,5
2
2,5
ETAP
MIESZKANIE
POWIERZCHNIA
POZIOM
3
3,5
4
4,5
5m
I
B.1.1.4
61,91 m²
PARTER
Okno balkonowe z parapetem Okno balkonowe z parapetem
(hp=12cm)* i naświetlem
(hp=12cm)*
UWAGI:
1. Powierzchnie mieszkań liczone wg. normy PN - ISO - 9836 : 1997
(tolerancja ±5cm)
2. Powierzchnia ogródka liczona w osi ogrodzenia (tolerancja ±5cm)
3. Ogrodzenie ogródka h=ok. 1,10m.
okno wyposażone w nawiewnik okienny
* Hp - Wysokość niewykończonego parapetu mierzona od niewykończonego poziomu stropu
z wylewką (tolerancja ±2cm)
* Hn - Wysokość nadproża (góry okna) mierzona od niewykończonego poziomu stropu z
wylewką (tolerancja ±2cm)
N
WJAZD DO HALI
GARAŻOWEJ
KUPUJĄCY
INWESTOR