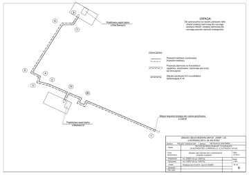
Rys.Nr6 - Schemat alarmowy

Transkrypt

Rys.Nr6 - Schemat alarmowy
8
UWAGA:
6
Dla uproszczenia na rysunku pokazano tylko
obwód instalacji alarmowej dla rurociągu
zasilania.Obwód instalacji alarmowej dla
rurociągu powrotu wykonać analogicznie.
Projektowany węzeł cieplny
ul.Wita Stwosza 8
7
OZNACZENIA:
Przewód miedziany ocynkowany
Przewód miedziany
Przewody alarmowe na końcówkach
zapętlone, zaizolowane i zamknięte pod mufą
lub end-cap'em
5
4
Złączka zaciskowa S-4 na podkładce
dystansującej H-19
2
3
T1
Uniwersalna puszka przyłączeniowa UPP
Uziemienie (połączenie puszki z rurą stalową)
U1
Końcówka zerująca lokalizatora
Kabel połączeniowy koncentryczny RG-63
zakończony wtyczkami gwintowanymi
( długość kabla podano na schemacie )
K
L-301
Lokalizator L-301 ,czteroobwodowy.
Miejsce włączenia
istniejąca sieć cieplna
preizolowana
Długość kontrolowanej
pętli do
1000 m.
2 x DN 65
Projektowany węzeł cieplny
ul.Mariacka 32
1
ZAKŁAD USŁUG BUDOWLANYCH JÓZEF LIS
ul.KOSSAKA 25/12, 48-303 NYSA
Stadium
Obiekt
Treść
opracowania
PROJEKT BUDOWLANY
Branża
BUDOWA SIECI CIEPLNEJ W/P 2 X DN 65/50/40/32
- SCHEMAT ALARMOWY
Projektował
inż..JÓZEF LIS upr. 33/87/Op
Opracował
inż..JÓZEF LIS upr. 33/87/Op
Kreślił
Sprawdził
Kier. prac.
INSTALACJE SANITARNE
SIEĆ CIEPLNA PREIZOLOWANA W/P 2 X DN 65/50/40/32
DO BUDYNKÓW PRZY UL.MARIACKIEJ 32 i UL.W.STWOSZA 8 W NYSIE
Współpraca mgr inż.A.RUTA, mgr inż.A. MAJERZ
Data
12.2013
Skala
1:500
Nr rys.
6