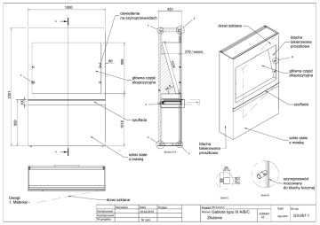
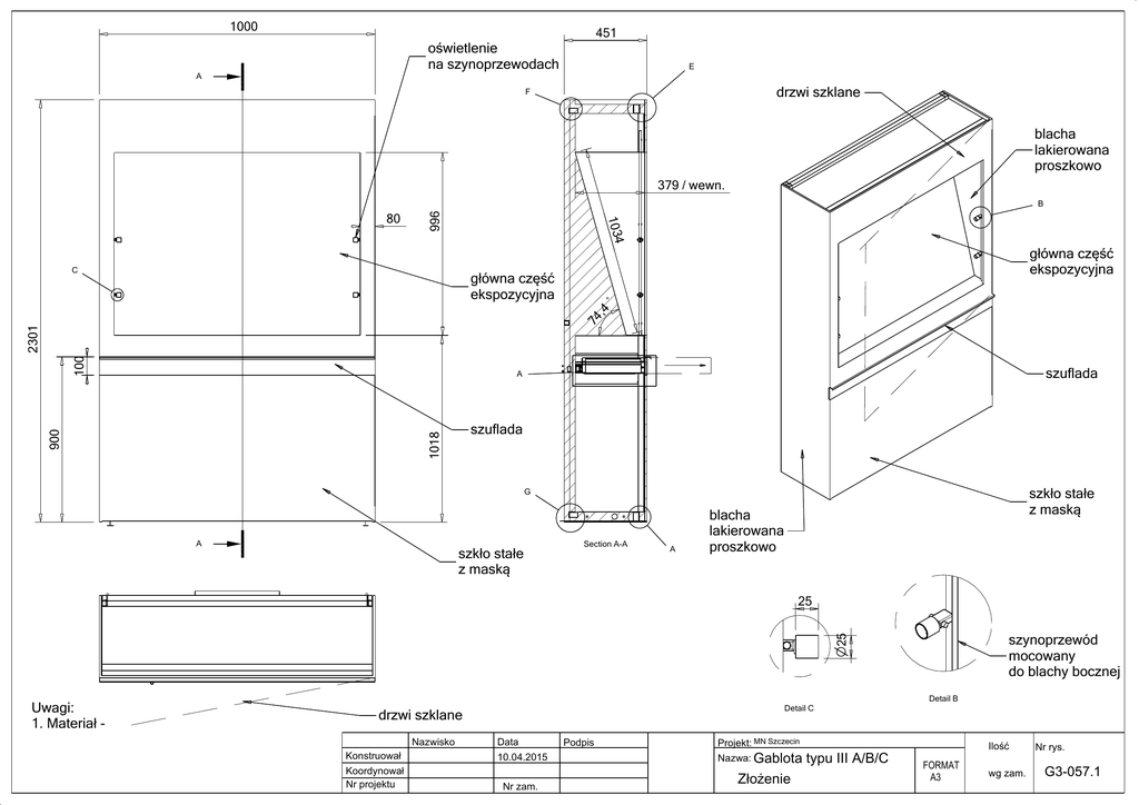
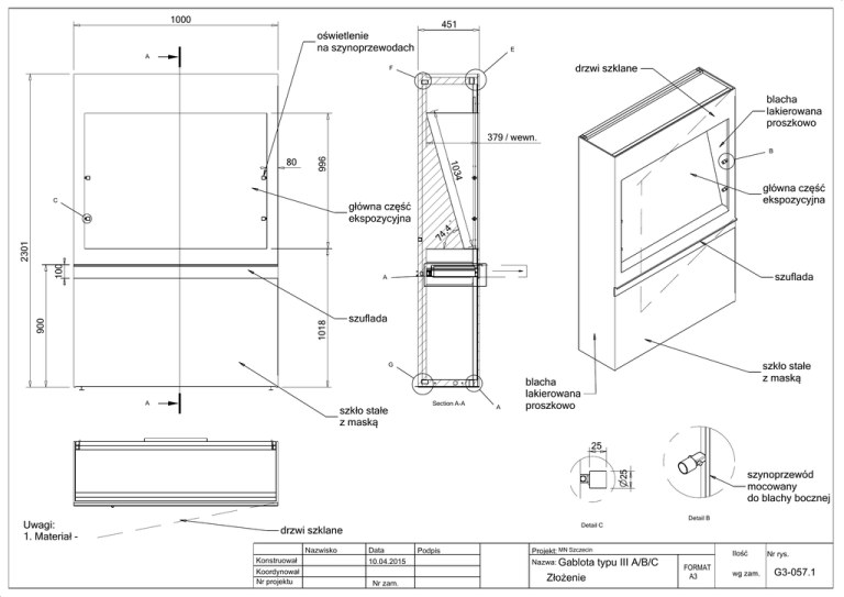
Rysunki gablot typ III

Transkrypt

Rysunki gablot typ III
1000
451
oświetlenie
na szynoprzewodach
E
A
drzwi szklane
F
blacha
lakierowana
proszkowo
379 / wewn.
1034
80
996
B
C
główna część
ekspozycyjna
100
2301
74
,4
˚
główna część
ekspozycyjna
szuflada
szuflada
1018
900
A
szkło stałe
z maską
G
A
szkło stałe
z maską
Section A-A
A
blacha
lakierowana
proszkowo
n25
25
Uwagi:
1. Materiał -
szynoprzewód
mocowany
do blachy bocznej
Detail B
Detail C
drzwi szklane
Konstruował
Koordynował
Nr projektu
Nazwisko
Data
10.04.2015
Nr zam.
Podpis
Projekt: MN Szczecin
Nazwa: Gablota
Złożenie
typu III A/B/C
Ilość
FORMAT
A3
wg zam.
Nr rys.
G3-057.1
szkło otwierane
głównej części
ekspozycyjnej
B
szkło górne szuflady
VSG 44.4
zawias taśmowy
60
100
22
uchwyt stalowy
na całej szerokości
gabloty
szkło
lakierowane
frontu szuflady
profile lakierowane
proszkowo
szkło stałe gabloty
B
300 / głębokość ekspozycyjna
blacha stalowa #2mm
lakierowana proszkowo
Detail A
szkło górne szuflady
VSG 44.4
16
bok wewnętrzny
gabloty - blacha
stalowa lakierowana
proszkowo
profile lakierowane
proszkowo
12
oświetlenie LED
w profilu
prowadnica
kulkowa
Uwagi:
1. Materiał -
blacha stalowa #2mm
lakierowana proszkowo
Przekrój B-B
Konstruował
Koordynował
Nr projektu
Nazwisko
Data
10.04.2015
Nr zam.
Podpis
Projekt: MN Szczecin
Nazwa: Gablota
typu III A/B/C
Szuflada - szczegóły
Ilość
FORMAT
A3
wg zam.
Nr rys.
G3-058.1
dostęp do zamka
i systemu ryglującego
od góry gabloty
profil stalowy
50x30x2 ramy
nośnej
profil szkła
profil stalowy
50x30x2 ramy
nośnej
szkło z maską
Detail E
rama nośna
gabloty
profil stalowy
50x30x2 ramy
nośnej
Detail F
profil stalowy
50x30x2 ramy
nośnej
rama nośna
gabloty
szkło z maską
profil szkła
profil stalowy
50x30x2 ramy
nośnej
stopka regulacyjna
Uwagi:
1. Materiał -
dostęp do systemu
ryglującego
od spodu gabloty
Detail G
Konstruował
Koordynował
Nr projektu
Nazwisko
Data
10.04.2015
Nr zam.
Podpis
Projekt: MN Szczecin
Nazwa: Gablota
Szczegóły
typu III A/B/C
Ilość
FORMAT
A3
wg zam.
Nr rys.
G3-059.1