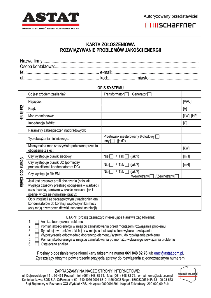
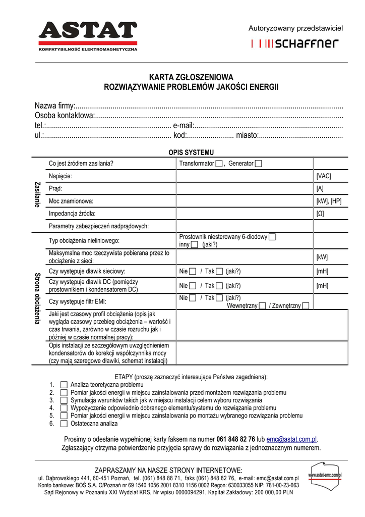
karta zgłoszeniowa_problemu_PQ

Transkrypt

karta zgłoszeniowa_problemu_PQ
Autoryzowany przedstawiciel
KARTA ZGŁOSZENIOWA
ROZWIĄZYWANIE PROBLEMÓW JAKOŚCI ENERGII
Nazwa firmy:.........................................................................................................................................
Osoba kontaktowa:...............................................................................................................................
tel.:................................................................ e-mail:............................................................................
ul.:................................................................. kod:........................ miasto:...........................................
OPIS SYSTEMU
Co jest źródłem zasilania?
Transformator , Generator Zasilanie
Napięcie:
[VAC]
Prąd:
[A]
Moc znamionowa:
[kW], [HP]
Impedancja źródła:
[Ω]
Parametry zabezpieczeń nadprądowych:
Typ obciąŜenia nieliniowego:
Prostownik niesterowany 6-diodowy inny (jaki?)
Maksymalna moc rzeczywista pobierana przez to
obciąŜenie z sieci:
[kW]
Strona obciąŜenia
Czy występuje dławik sieciowy:
Nie / Tak (jaki?)
[mH]
Czy występuje dławik DC (pomiędzy
prostownikiem i kondensatorem DC)
Nie / Tak (jaki?)
[mH]
Czy występuje filtr EMI:
Nie / Tak (jaki?)
Wewnętrzny / Zewnętrzny Jaki jest czasowy profil obciąŜenia (opis jak
wygląda czasowy przebieg obciąŜenia – wartość i
czas trwania, zarówno w czasie rozruchu jak i
później w czasie normalnej pracy):
Opis instalacji ze szczegółowym uwzględnieniem
kondensatorów do korekcji współczynnika mocy
(czy mają szeregowe dławiki, schemat instalacji)
1.
2.
3.
4.
5.
6.
ETAPY (proszę zaznaczyć interesujące Państwa zagadniena):
Analiza teoretyczna problemu
Pomiar jakości energii w miejscu zainstalowania przed montaŜem rozwiązania problemu
Symulacja warunków takich jak w miejscu instalacji celem wyboru rozwiązania
WypoŜyczenie odpowiednio dobranego elementu/systemu do rozwiązania problemu
Pomiar jakości energii w miejscu zainstalowania po montaŜu wybranego rozwiązania problemu
Ostateczna analiza
Prosimy o odesłanie wypełnionej karty faksem na numer 061 848 82 76 lub [email protected].
Zgłaszający otrzyma potwierdzenie przyjęcia sprawy do rozwiązania z jednoznacznym numerem.
ZAPRASZAMY NA NASZE STRONY INTERNETOWE:
ul. Dąbrowskiego 441, 60-451 Poznań, tel. (061) 848 88 71, faks (061) 848 82 76, e-mail: [email protected]
Konto bankowe: BOŚ S.A. O/Poznań nr 69 1540 1056 2001 8310 1156 0002 Regon: 630033055 NIP: 781-00-23-663
Sąd Rejonowy w Poznaniu XXI Wydział KRS, Nr wpisu 0000094291, Kapitał Zakładowy: 200 000,00 PLN