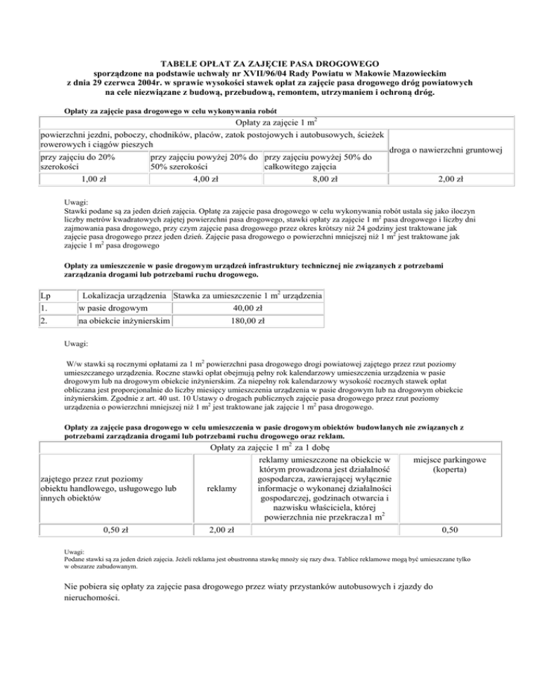
Tabela opłat za zajęcie pasa drogowego

Transkrypt

Tabela opłat za zajęcie pasa drogowego
TABELE OPŁAT ZA ZAJĘCIE PASA DROGOWEGO
sporządzone na podstawie uchwały nr XVII/96/04 Rady Powiatu w Makowie Mazowieckim
z dnia 29 czerwca 2004r. w sprawie wysokości stawek opłat za zajęcie pasa drogowego dróg powiatowych
na cele niezwiązane z budową, przebudową, remontem, utrzymaniem i ochroną dróg.
Opłaty za zajęcie pasa drogowego w celu wykonywania robót
Opłaty za zajęcie 1 m2
powierzchni jezdni, poboczy, chodników, placów, zatok postojowych i autobusowych, ścieżek
rowerowych i ciągów pieszych
przy zajęciu do 20%
szerokości
przy zajęciu powyżej 20% do przy zajęciu powyżej 50% do
50% szerokości
całkowitego zajęcia
1,00 zł
4,00 zł
droga o nawierzchni gruntowej
8,00 zł
2,00 zł
Uwagi:
Stawki podane są za jeden dzień zajęcia. Opłatę za zajęcie pasa drogowego w celu wykonywania robót ustala się jako iloczyn
liczby metrów kwadratowych zajętej powierzchni pasa drogowego, stawki opłaty za zajęcie 1 m2 pasa drogowego i liczby dni
zajmowania pasa drogowego, przy czym zajęcie pasa drogowego przez okres krótszy niż 24 godziny jest traktowane jak
zajęcie pasa drogowego przez jeden dzień. Zajęcie pasa drogowego o powierzchni mniejszej niż 1 m2 jest traktowane jak
zajęcie 1 m2 pasa drogowego
Opłaty za umieszczenie w pasie drogowym urządzeń infrastruktury technicznej nie związanych z potrzebami
zarządzania drogami lub potrzebami ruchu drogowego.
Lp
Lokalizacja urządzenia Stawka za umieszczenie 1 m2 urządzenia
1.
w pasie drogowym
40,00 zł
2.
na obiekcie inżynierskim
180,00 zł
Uwagi:
W/w stawki są rocznymi opłatami za 1 m2 powierzchni pasa drogowego drogi powiatowej zajętego przez rzut poziomy
umieszczanego urządzenia. Roczne stawki opłat obejmują pełny rok kalendarzowy umieszczenia urządzenia w pasie
drogowym lub na drogowym obiekcie inżynierskim. Za niepełny rok kalendarzowy wysokość rocznych stawek opłat
obliczana jest proporcjonalnie do liczby miesięcy umieszczenia urządzenia w pasie drogowym lub na drogowym obiekcie
inżynierskim. Zgodnie z art. 40 ust. 10 Ustawy o drogach publicznych zajęcie pasa drogowego przez rzut poziomy
urządzenia o powierzchni mniejszej niż 1 m2 jest traktowane jak zajęcie 1 m2 pasa drogowego.
Opłaty za zajęcie pasa drogowego w celu umieszczenia w pasie drogowym obiektów budowlanych nie związanych z
potrzebami zarządzania drogami lub potrzebami ruchu drogowego oraz reklam.
Opłaty za zajęcie 1 m2 za 1 dobę
zajętego przez rzut poziomy
obiektu handlowego, usługowego lub
innych obiektów
0,50 zł
reklamy
reklamy umieszczone na obiekcie w
którym prowadzona jest działalność
gospodarcza, zawierającej wyłącznie
informacje o wykonanej działalności
gospodarczej, godzinach otwarcia i
nazwisku właściciela, której
powierzchnia nie przekracza1 m2
miejsce parkingowe
(koperta)
2,00 zł
0,50
Uwagi:
Podane stawki są za jeden dzień zajęcia. Jeżeli reklama jest obustronna stawkę mnoży się razy dwa. Tablice reklamowe mogą być umieszczane tylko
w obszarze zabudowanym.
Nie pobiera się opłaty za zajęcie pasa drogowego przez wiaty przystanków autobusowych i zjazdy do
nieruchomości.