Pobierz schemat - Gal Development

Transkrypt

Pobierz schemat - Gal Development
1
2
3
4
5
6
7
8
9
10
11
12
13
14
15
16
17
18
19
20
21
22
23
24
25
26
27
28
29
30
15
16
17
18
19
20
0
380
260
przewód dymowy
0.6 pokój dzienny
25,8 m2
taras
15,7 m2
12,1 m2
450
0.5 kuchnia
10,9 m2
25
13x18/26
43
50
25
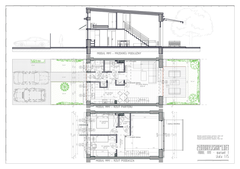
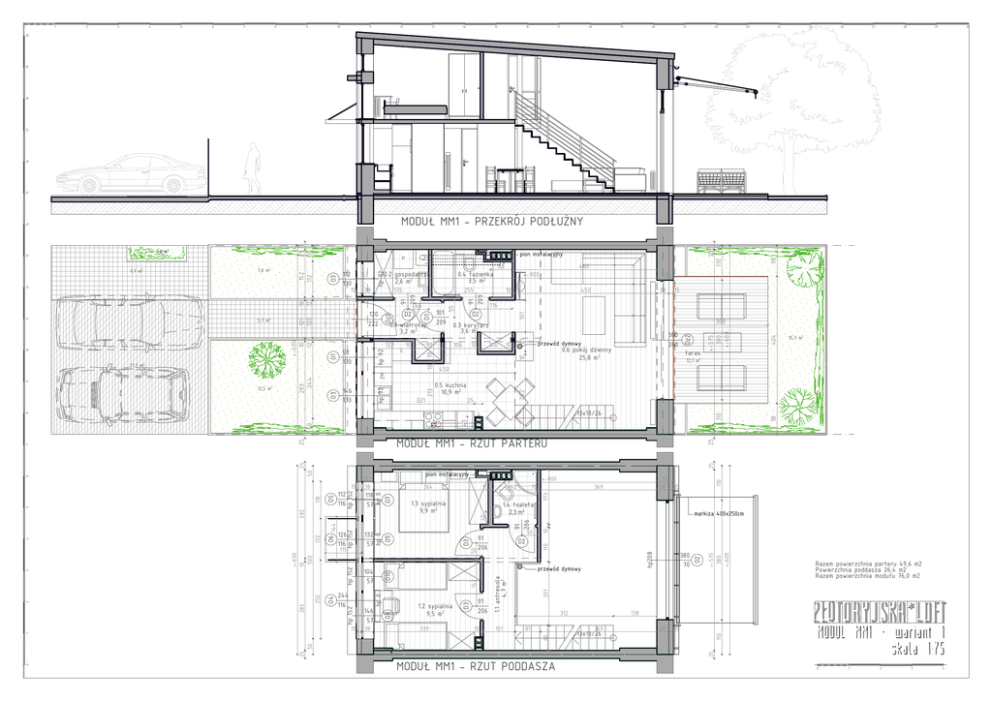
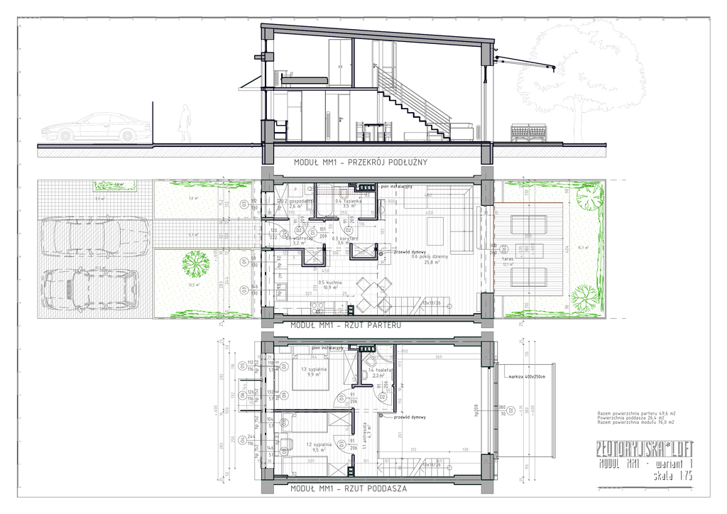
MODUŁ MM1 - RZUT PARTERU
25
25
1.4 toaleta
91
206
50
101
312
+-575
380
+-600
Razem powierzchnia parteru 49,6 m2
Powierzchnia poddasza 26,4 m2
Razem powierzchnia modułu 76,0 m2
81
138
369
80
38
15
25
25
50
13x18/26
110
10
1.1 antresola
4,7 m2
142
339
91
206
380
70
O2
110
D2
hp208
91
206
1
38
1.2 sypialnia
9,5 m2
D3
hp 0
146
57
markiza 400x250cm
przewód dymowy
O10
104
57
53
38 15
369
2,3 m2
40
50
D3
hp 0
O9
132
57
O8
hp 152
244
116
hp 152
O4
250
283
hp 152
O6 144
132
4
+-600
10
500
115
3
2
126
116
10
10
1.3 sypialnia
9,9 m2
142
173
15
201
118
57
+-900
364
110
pion instalacyjny
53
38
hp 0
O7
hp 152
118
112
116
15
282
5
O5
50
6
404
10
98
100
300
242
321
213
hp 92
O3
146
130
15
0
98
25
110
15
25
7
38
116
10
10
450
+-575
380
+-600
91
209
106
10
101
D1
10 70
L
92
53
ZM
hp 92
O1
Dz1
121
120
98
130
10
101
D2
209 0.3 korytarz
3,6 m2
460
+-900
8
12,5 m2
283
244
9
21,3
m2
122
55
91
209
10
12
10
+-600
10
12
11
5,7 m2
65
D2
0.1 wiatrołap
3,2 m2
120
222
68
0.4 łazienka
3,5 m2
255
61
0.2 gospodarcze
2,6 m2
175
10
hp 92
O3
112
53
130
15 38
110
25
50
7,0 m2
12
7,7 m2
pion instalacyjny
P
152
112
13
1,0 m2
Dz2
14
MODUŁ MM1 - PRZEKRÓJ PODŁUŻNY
MODUŁ MM1 - RZUT PODDASZA
MODUL MM1 − wariant 1
skala 1:75
0
1
2
3
4