FMS-12.01

Transkrypt

FMS-12.01
337
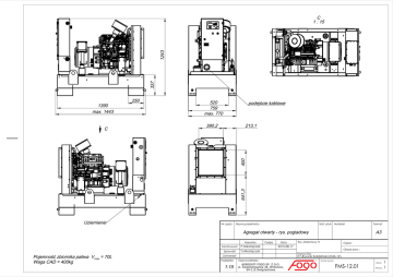
1243
C
1 : 15
1390
max. 1443
520
759
max. 770
podejście kablowe
390,2
213,1
641,3
400
C
250
Uziemienie
Nr części
Ilość sztuk
Nazwa przedmiotu
Materiał
A3
Agregat otwarty - rys. pogladowy
Nazwisko
Pojemność zbiornika paliwa Vmax = 70L
Waga CAD = 400kg
Konstruował
P.Mikołajczak
Sprawdził
T.Mikołajczak
Podpis
Data
1:15
Rys. złożeniowy nr
Ciężar:
2015-08-17
Zatwierdził
Podziałka
Format
Obszar pow.:
Nazwa Dos
D:\Rysunki SolidWorks\FMS-12\
Nazwa zakładu
AGREGATY FOGO SP. Z O.O.
ul. Święciechowska 36, Wilkowice,
64-115 Święciechowa
Numer rysunku
FMS-12.01
1
Arkuszy: 1
Arkusz: