Deklaracja o wysokości opłaty za gospodarowanie odpadami

Transkrypt

Deklaracja o wysokości opłaty za gospodarowanie odpadami
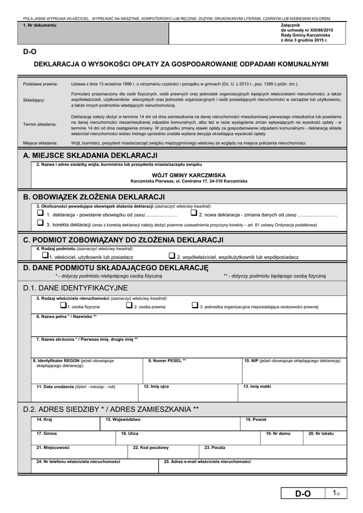
POLA JASNE WYPEŁNIA WŁAŚCICIEL. WYPEŁNIAĆ NA MASZYNIE, KOMPUTEROWO LUB RĘCZNIE, DUŻYMI, DRUKOWANYMI LITERAMI, CZARNYM LUB NIEBIESKIM KOLOREM.
Załącznik
do uchwały nr XIII/88/2015
Rady Gminy Karczmiska
z dnia 3 grudnia 2015 r.
1. Nr dokumentu
D-O
DEKLARACJA O WYSOKOŚCI OPŁATY ZA GOSPODAROWANIE ODPADAMI KOMUNALNYMI
Podstawa prawna:
Ustawa z dnia 13 września 1996 r. o utrzymaniu czystości i porządku w gminach (Dz. U. z 2013 r., poz. 1399 z późn. zm.).
Składający:
Formularz przeznaczony dla osób fizycznych, osób prawnych oraz jednostek organizacyjnych będących właścicielami nieruchomości, a także
współwłaścicieli, użytkowników wieczystych oraz jednostek organizacyjnych i osób posiadających nieruchomości w zarządzie lub użytkowaniu,
a także innych podmiotów władających nieruchomością.
Termin składania:
Deklarację należy złożyć w terminie 14 dni od dnia zamieszkania na danej nieruchomości mieszkaniowej pierwszego mieszkańca lub powstania
na danej nieruchomości niezamieszkanej odpadów komunalnych, albo też w razie wystąpienia zmian wpływających na wysokość opłaty - w
terminie 14 dni od dnia nastąpienia zmiany. W przypadku zmiany stawki opłaty za gospodarowanie odpadami komunalnymi - deklarację składa
właściciel nieruchomości wobec którego uprzednio została wydana decyzja określająca wysokość opłaty.
Miejsce składania:
Wójt, burmistrz, prezydent miasta/zarząd związku międzygminnego właściwy ze względu na miejsce położenia nieruchomości.
A. MIEJSCE SKŁADANIA DEKLARACJI
2. Nazwa i adres siedziby wójta, burmistrza lub prezydenta miasta/zarządu związku
WÓJT GMINY KARCZMISKA
Karczmiska Pierwsze, ul. Centralna 17, 24-310 Karczmiska
B. OBOWIĄZEK ZŁOŻENIA DEKLARACJI
3. Okoliczności powodujące obowiązek złożenia deklaracji (zaznaczyć właściwy kwadrat):
 1. deklaracja - powstanie obowiązku od (data) ............………  2. nowa deklaracja - zmiana danych od (data) ...........……………
 3. korekta deklaracji (wraz z korektą deklaracji należy złożyć pisemne uzasadnienia przyczyny korekty – art. 81 ustawy Ordynacja podatkowa)
C. PODMIOT ZOBOWIĄZANY DO ZŁOŻENIA DEKLARACJI
4. Rodzaj podmiotu (zaznaczyć właściwy kwadrat):
1. właściciel, użytkownik lub posiadacz
 2. współwłaściciel, współużytkownik lub współposiadacz
D. DANE PODMIOTU SKŁADAJĄCEGO DEKLARACJĘ
* - dotyczy podmiotu niebędącego osobą fizyczną
** - dotyczy podmiotu będącego osobą fizyczną
D.1. DANE IDENTYFIKACYJNE
5. Rodzaj właściciela nieruchomości (zaznaczyć właściwy kwadrat):
1. osoba fizyczna
 2. osoba prawna
 3. jednostka organizacyjna nieposiadająca osobowości prawnej
6. Nazwa pełna * / Nazwisko **
7. Nazwa skrócona * / Pierwsze imię, drugie imię **
8. Identyfikator REGON (jeżeli obowiązuje
skłądającego deklarację)
10. NIP (jeżeli obowiązuje skłądającego deklarację)
9. Numer PESEL **
12. Imię ojca
11. Data urodzenia (dzień - miesiąc - rok)
13. Imię matki
D.2. ADRES SIEDZIBY * / ADRES ZAMIESZKANIA **
14. Kraj
15. Województwo
17. Gmina
21. Miejscowość
24. Nr telefonu właściciela nieruchomości
16. Powiat
18. Ulica
19. Nr domu
22. Kod pocztowy
20. Nr lokalu
23. Poczta
25. Adres e-mail właściciela nieruchomości
D-O
1/3
POLA JASNE WYPEŁNIA WŁAŚCICIEL. WYPEŁNIAĆ NA MASZYNIE, KOMPUTEROWO LUB RĘCZNIE, DUŻYMI, DRUKOWANYMI LITERAMI, CZARNYM LUB NIEBIESKIM KOLOREM.
E. DANE NIERUCHOMOŚCI, NA KTÓREJ POWSTAJĄ ODPADY KOMUNALNE
E.1. POŁOŻENIE NIERUCHOMOŚCI
26. Adres
E.2. TYTUŁ PRAWNY (zaznaczyć właściwy kwadrat)
27. Rodzaj własności
1. własność
 2. współwłasność
29. Rodzaj użytkowania
1. użytkowanie wieczyste  2. współużytkowanie
28. Rodzaj posiadania samoistnego
1. posiadanie
30. Rodzaj posiadania zależnego
1. posiadanie
 2. współposiadanie
 2. współposiadanie
F. OŚWIADCZENIE O DOKONYWANIU SELEKTYWNEGO ZBIERANIA ODPADÓW
31. (zaznaczyć właściwy kwadrat)
Oświadczam, że dokonuję selektywnego zbierania odpadów komunalnych na ww. nieruchomości
Oświadczam, że nie dokonuję selektywnego zbierania odpadów komunalnych na ww. nieruchomości


G. OŚWIADCZENIA DOTYCZĄCE OPŁAT (wybrać opcję właściwą dla danej nieruchomości)
32. Oświadczam, że na terenie nieruchomości zamieszkałej, określonej w części E deklaracji, zamieszkuje ……………. osób (podać ilość
osób).
33. Oświadczam, że na nieruchomości niezamieszkałej, określonej w części E deklaracji, odpady komunalne gromadzone są w ilości
…………… (podać ilość pojemników) o pojemności …………… (podać pojemność pojemnika -60l, 120l, 240l, 1100l, 7000l) miesięcznie.
H. ZWOLNIENIA OD OPŁATY
Zwolnienia od opłaty przysługujące na podstawie aktualnej uchwały Rady Gminy Karczmiska w sprawie wprowadzenia zwolnień od opłaty za gospodarowanie odpadami
komunalnymi
34. (wskazać zakres zwolnienia)
1) ............................................................................................................................................................................................................................
2) ………………………………………………………………………………………………………………………………………………………………..........
I. ŁĄCZNA KWOTA OPŁATY (oblicza i wpisuje właściciel nieruchomości – zgodnie z treścią aktualnie obowiazującej uchwały Rady Gminy
Karczmiska w sprawie wyboru metod ustalenia opłaty i ustalenia stawek opłaty za gospodarowanie odpadami komunalnymi)
I.1. Kwota miesięcznej opłaty z nieruchomości zamieszkałej
35.
Ilość osób zamieszkująca gospodarstwo domowe (poz. 32) x wysokość stawki opłaty podanej w obowiązującej
uchwale Rady Gminy Karczmiska
I.2. Kwota miesięcznej opłaty z nieruchomości niezamieszkałej
………………………… zł
36.
Ilość zadeklarowanej liczby pojemników i ich pojemności (poz. 33) x wysokość stawki opłaty podanej
w obowiązującej uchwale Rady Gminy Karczmiska
I.3. Łączna kwota opłaty miesięcznej
………………………… zł
37.
Suma kwot opłat z poz. 35 i poz. 36
………………………… zł
Kwota opłaty kwartalnej (Kwota opłaty z poz. 37 x 3 miesiące)
38.
………………………… zł
J. INFORMACJA O ZAŁĄCZNIKACH (do niniejszej deklaracji dołączono)
39. Liczba i nazwy załączników
K. PODPIS WŁASCICIELA/ OSOBY REPREZENTUJĄCEJ WŁAŚCICIELA
40. Imię
41. Nazwisko
42. Data wypełnienia deklaracji (dzień - miesiąc - rok)
43. Podpis (pieczęć) właściciela lub osoby władającej nieruchomością/
osoby reprezentującej
D-O
2/3
POLA JASNE WYPEŁNIA WŁAŚCICIEL. WYPEŁNIAĆ NA MASZYNIE, KOMPUTEROWO LUB RĘCZNIE, DUŻYMI, DRUKOWANYMI LITERAMI, CZARNYM LUB NIEBIESKIM KOLOREM.
L. ADNOTACJE WÓJTA, BURMISTRZA, PREZYDENTA MIASTA/ZARZĄDU ZWIĄZKU
44. Uwagi organu
45. Data (dzień - miesiąc - rok)
46. Podpis przyjmującego formularz
Pouczenie
Niniejsza deklaracja stanowi podstawę do wystawienia tytułu wykonawczego, zgodnie z przepisami ustawy z
dnia 17 czerwca 1966 r. o postępowaniu egzekucyjnym w administracji (Dz.U. z 2014 r., poz. 1619 z późn. zm.).
Objaśnienia
Zgodnie z Uchwałą Nr XIII/87/2015 Rady Gminy Karczmiska z dnia 3 grudnia 2015 r. w sprawie wyboru
metody ustalenia opłaty i ustalenia stawek opłaty za gospodarowanie odpadami komunalnymi, stawki
opłaty wynoszą:
- dla nieruchomości zamieszkałych: 7 zł miesięcznie od każdej osoby, gdy odpady zbierane są w sposób
selektywny lub 14 zł miesięcznie od każdej osoby, gdy odpady nie są zbierane w sposób selektywny;
- dla nieruchomości niezamieszkałych, gdy odpady zbierane są w sposób selektywny:
1) za pojemnik o pojemności 60 l – w wysokości 11 zł,
2) za pojemnik o pojemności 120 l – w wysokości 20 zł,
3) za pojemnik o pojemności 240 l – w wysokości 40 zł,
4) za pojemnik o pojemności 1100 l – w wysokości 178 zł,
5) za pojemnik o pojemności 7000 l – w wysokości 955 zł,
- dla nieruchomości niezamieszkałych, gdy odpady nie są zbierane w sposób selektywny:
1) za pojemnik o pojemności 60 l – w wysokości 18 zł,
2) za pojemnik o pojemności 120 l – w wysokości 36 zł,
3) za pojemnik o pojemności 240 l – w wysokości 70 zł,
4) za pojemnik o pojemności 1100 l – w wysokości 330 zł,
5) za pojemnik o pojemności 7000 l – w wysokości 1139 zł.
D-O
3/3