IR-1_2016 - Urząd Gminy Wojaszówka

Transkrypt

IR-1_2016 - Urząd Gminy Wojaszówka
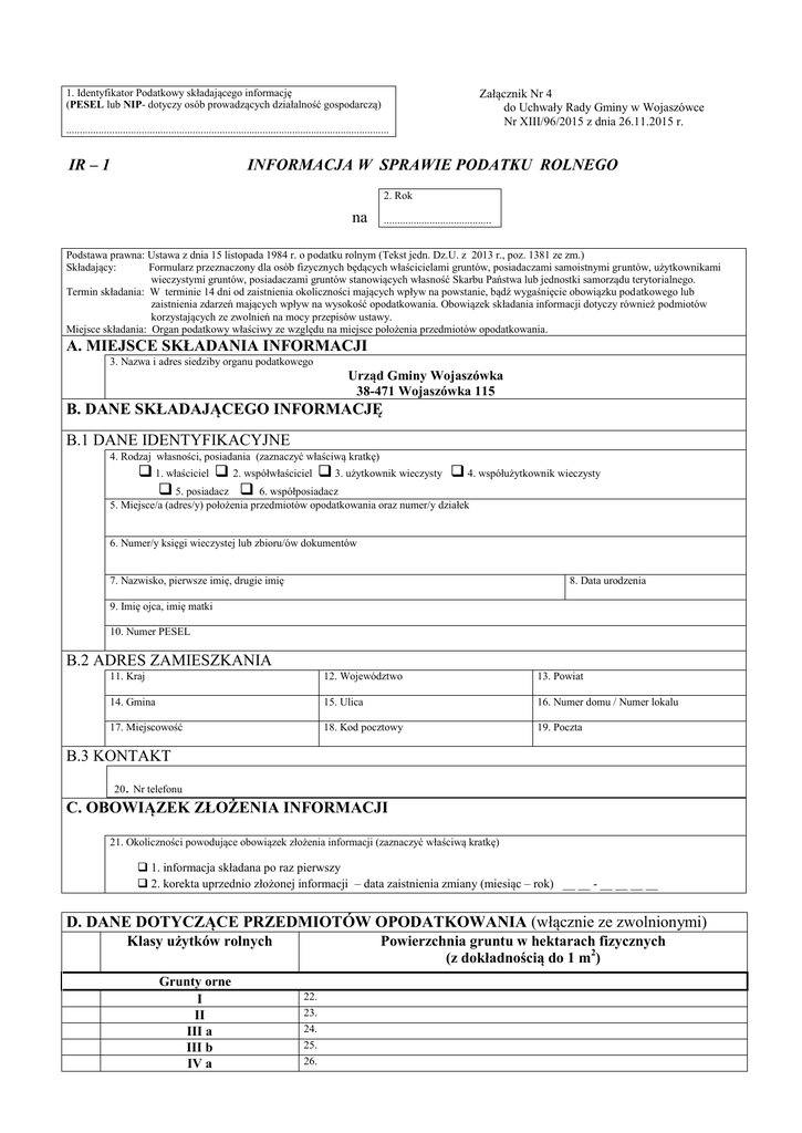
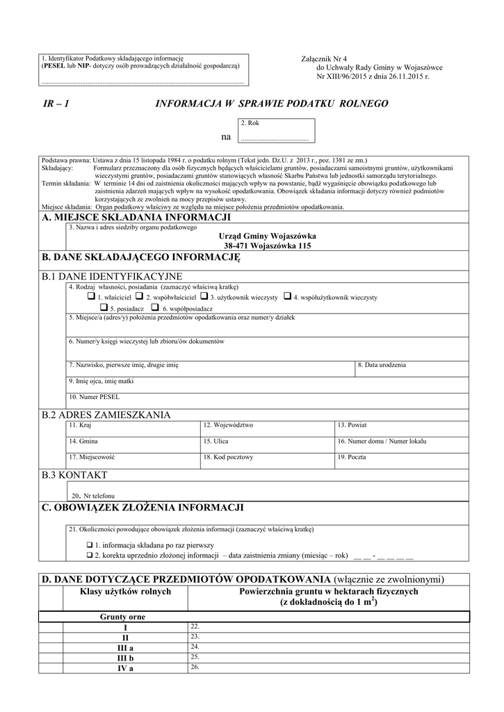
1. Identyfikator Podatkowy składającego informację
(PESEL lub NIP- dotyczy osób prowadzących działalność gospodarczą)
........................................................................................................................
IR – 1
Załącznik Nr 4
do Uchwały Rady Gminy w Wojaszówce
Nr XIII/96/2015 z dnia 26.11.2015 r.
INFORMACJA W SPRAWIE PODATKU ROLNEGO
2. Rok
na
........................................
Podstawa prawna: Ustawa z dnia 15 listopada 1984 r. o podatku rolnym (Tekst jedn. Dz.U. z 2013 r., poz. 1381 ze zm.)
Składający:
Formularz przeznaczony dla osób fizycznych będących właścicielami gruntów, posiadaczami samoistnymi gruntów, użytkownikami
wieczystymi gruntów, posiadaczami gruntów stanowiących własność Skarbu Państwa lub jednostki samorządu terytorialnego.
Termin składania: W terminie 14 dni od zaistnienia okoliczności mających wpływ na powstanie, bądź wygaśnięcie obowiązku podatkowego lub
zaistnienia zdarzeń mających wpływ na wysokość opodatkowania. Obowiązek składania informacji dotyczy również podmiotów
korzystających ze zwolnień na mocy przepisów ustawy.
Miejsce składania: Organ podatkowy właściwy ze względu na miejsce położenia przedmiotów opodatkowania.
A. MIEJSCE SKŁADANIA INFORMACJI
3. Nazwa i adres siedziby organu podatkowego
Urząd Gminy Wojaszówka
38-471 Wojaszówka 115
B. DANE SKŁADAJĄCEGO INFORMACJĘ
B.1 DANE IDENTYFIKACYJNE
4. Rodzaj własności, posiadania (zaznaczyć właściwą kratkę)
 1. właściciel  2. współwłaściciel  3. użytkownik wieczysty  4. współużytkownik wieczysty
 5. posiadacz  6. współposiadacz
5. Miejsce/a (adres/y) położenia przedmiotów opodatkowania oraz numer/y działek
6. Numer/y księgi wieczystej lub zbioru/ów dokumentów
7. Nazwisko, pierwsze imię, drugie imię
8. Data urodzenia
9. Imię ojca, imię matki
10. Numer PESEL
B.2 ADRES ZAMIESZKANIA
11. Kraj
12. Województwo
13. Powiat
14. Gmina
15. Ulica
16. Numer domu / Numer lokalu
17. Miejscowość
18. Kod pocztowy
19. Poczta
B.3 KONTAKT
20. Nr telefonu
C. OBOWIĄZEK ZŁOŻENIA INFORMACJI
21. Okoliczności powodujące obowiązek złożenia informacji (zaznaczyć właściwą kratkę)
 1. informacja składana po raz pierwszy
 2. korekta uprzednio złożonej informacji – data zaistnienia zmiany (miesiąc – rok) __ __ - __ __ __ __
D. DANE DOTYCZĄCE PRZEDMIOTÓW OPODATKOWANIA (włącznie ze zwolnionymi)
Klasy użytków rolnych
Grunty orne
I
II
III a
III b
IV a
Powierzchnia gruntu w hektarach fizycznych
(z dokładnością do 1 m2)
22.
23.
24.
25.
26.
IV b
V
VI
VI z
Łąki i pastwiska
I
II
III
IV
V
VI
VI z
Sady
I
II
III, III a
III b
IV, IV a
IV b
V
VI
VI z
27.
28.
29.
30.
31.
32.
33.
34.
35.
36.
37.
38.
39.
40.
41.
42.
43.
44.
45.
46.
Grunty rolne zabudowane
I-IV
V-VI
Grunty pod stawami
a) zarybione łososiem, trocią, głowacicą,
palią i pstrągiem
b) zarybione innymi gatunkami ryb oraz
grunty pod stawami niezarybionymi
Grunty zadrzewione i zakrzewione
na użytkach rolnych
I -IV
V - VI
Grunty pod rowami
47.
48.
49.
50.
51.
52.
53.
Użytki rolne o nieustalonym
przeliczniku powierzchni
54.
RAZEM (wiersze 22-54)
55.
E. GRUNTY POŁOŻONE NA TERENIE INNYCH GMIN
56. Nazwa gminy
57. Nazwa gminy
58. Nazwa gminy
x
x
..................................... ...................................
Powierzchnia użytków rolnych 59.
w ha fizycznych
(z dokładnością do 1 m2)
Powierzchnia gruntów w ha
63.
przeliczeniowych
(z dokładnością do 1 m2)
........................................
60.
61.
62. Razem (wiersze 59-61)
64.
65.
66. Razem (wiersze 63-65)
F. INFORMACJA DOTYCZĄCA ZWOLNIEŃ I ULG PODATKOWYCH
PRZEDMIOT ZWOLNIENIA/ULGI
POWIERZCHNIA W HA FIZYCZNYCH
Art. 12 ust. 1 pkt 4 – Grunty przeznaczone na utworzenie nowego gospodarstwa
rolnego lub powiększenie już istniejącego do powierzchni nieprzekraczającej 100 ha
Art. 12 ust. 1 pkt 8 – Użytki ekologiczne
67.
Art. 12 ust. 1 pkt 11 – Grunty wpisane do rejestru zabytków, pod warunkiem
ich zagospodarowania i utrzymania zgodnie z przepisami o ochronie zabytków
i opiece nad zabytkami
Art. 13 b ust. 1 - Ulga dla gruntów położonych na terenach podgórskich i górskich
(zaznaczyć właściwy kwadrat)
69.
(z dokładnością do 1 m2)
ha
68.
ha
ha
 30 % (klasy - I, II, III, IIIa, IIIb)
 60 % (klasy - IV, IVa, IVb)
G. INFORMACJA O INNYCH ZWOLNIENIACH I ULGACH PODATKOWYCH
WYNIKAJĄCYCH Z USTAWY LUB UCHWAŁY RADY GMINY
70. Ulga
(podać rodzaj, klasę gruntów i przepis prawa – z jakiego tytułu występuje zwolnienie/ulga oraz powierzchnię gruntów w ha z dokładnością do 1 m2)
PRZEDMIOT ZWOLNIENIA/ULGI I PRZEPIS PRAWA
POWIERZCHNIA W HA FIZYCZNYCH
71.
72.
............................................................................................................................. . ............................................................................................
.............................................................................................................................. ............................................................................................
H. OŚWIADCZENIE I PODPIS SKŁADAJĄCEGO / OSOBY REPREZENTUJĄCEJ SKŁADAJĄCEGO
Oświadczam, że podane przeze mnie dane są zgodne z prawdą.
73. Imię
74. Nazwisko
75. Data wypełnienia (dzień - miesiąc - rok)
-
76. Podpis (pieczęć) składającego / osoby reprezentującej składającego
(niepotrzebne skreślić)
-
_______ _______ _____________________
I. ADNOTACJE ORGANU PODATKOWEGO
77. Uwagi organu podatkowego
Pouczenie: Za podanie nieprawdy lub zatajenie prawdy i przez to narażenie podatku na uszczuplenie grozi
odpowiedzialność przewidziana w Kodeksie karnym skarbowym.
Dane współwłaścicieli, współposiadaczy, współużytkowników wieczystych:
I
1. Nazwisko, pierwsze imię, drugie imię, data urodzenia
2. Imię ojca, imię matki
3. Numer PESEL
4. NIP- dotyczy osób prowadzących działalność gospodarczą
5. Adres zamieszkania
II
1. Nazwisko, pierwsze imię, drugie imię, data urodzenia
2. Imię ojca, imię matki
3. Numer PESEL
4. NIP- dotyczy osób prowadzących działalność gospodarczą
5. Adres zamieszkania
III
1. Nazwisko, pierwsze imię, drugie imię, data urodzenia
2. Imię ojca, imię matki
3. Numer PESEL
5. Adres zamieszkania
4. NIP- dotyczy osób prowadzących działalność gospodarczą