Załącznik numer 2 do odpowiedzi 48

Transkrypt

Załącznik numer 2 do odpowiedzi 48
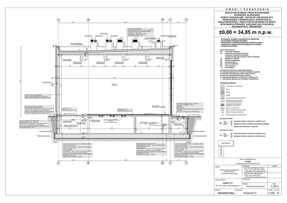
U W A G I
B
A
B'
1 0865
438
2x papa termozgrzewalna
wylewka betonowa grub. min.10 cm ze spadkiem
folia PE wodoszczelna, paroprzepuszczalna
styrodur grub. min. 20 cm
paroizolacja - powłoka Zentrifix F92
strop żelbetowy grub. 15 cm
WMD160FEN
8%
+11,15
C'
2315
±0,00 = 34,85 m n.p.w.
wentylator przeciwwybuchowy
typ: DAExC 160
kominek wentylacyjny
np. prod. POLPROFILI®
+10,68
60
60
60
kominek wentylacyjny
np. prod. POLPROFILI®
+10,00
60
+11,15
- WYSOKOŚĆ ŚCIANEK PODOKIENNYCH MIERZONA
OD POZIOMU POSADZKI GOTOWEJ
- SZEROKOŚĆ OTWORÓW MIERZONA W ŚWIETLE MURU
- WYSOKOŚĆ POMIESZCZEŃ PODAWANA OD POZIOMU
POSADZKI GOTOWEJ
+10,68
+10,00
oznaczenia literowe:
DR - drzwiczki rewizyjne
hp - wysokość ścianki pod otworem
(mierzona od poziomu posadzki
gotowej do górnego poziomu stanu surowego)
op - przebicie w stropie
SI
- ścianka instalacyjna
SZ - samozamykacz
wp - wpust w podłodze
RS - rura spustowa
rs - rura stalowa
3%
15
+8,90
+8,75
+8,00
wieniec wg proj.
konstrukcyjnego
+8,00
podciąg wg proj.
konstrukcyjnego
10 12 38
podciąg wg proj.
konstrukcyjnego
40
306
+8,00
podciąg wg proj.
konstrukcyjnego
40
228
10 12
38
wieniec wg proj.
konstrukcyjnego
+8,00
podciąg wg proj.
konstrukcyjnego
40
306
40
300
38
1 600
38
22
12
oznaczenia odporności pożarowej przegród:
R - nośność ogniowa (w minutach), określona zgodnie
z Polską Normą dotyczącą zasad ustalania klas
odporności ogniowej elementów budynku,
E - szczelność ogniowa (w minutach), określona jw.
I - izolacyjność ogniowa (w minutach), określona jw.
10
daszek żelbetowy
oznaczenia graficzne:
ATR 2
875
1 015
60
300
+8,00
O Z N A C Z E N I A
WSZYSTKIE WYMIARY PRZED WYKONANIEM
SPRAWDZIĆ NA BUDOWIE
ROBOTY BUDOWLANO - INSTALACYJNE MUSZĄ BYĆ
PROWADZONE Z RÓWNOLEGŁĄ KOORDYNACJĄ
MIĘDZYBRANŻOWĄ. PRZED PRZYSTĄPIENIEM DO ROBÓT
WYKONAWCA POWINIEN ZAPOZNAĆ SIĘ Z CAŁOŚCIĄ
DOKUMENTACJI BRANŻOWEJ
60
WMD160FEN
60
WMD160DAS
WMD160DAS
C
1135
I
CEGŁA PEŁNA I KRATÓWKA
BELIT
BETON
panele aluminiowe ALUCOBOND
wełna mineralna PANELROCK F grub.12 cm
ściana konstrukcyjna grub. 38 cm wg proj. konstr.
ŻELBET
ŚCIANY GIPSOWO-KARTONOWE
OKŁADZINA ELEWACYJNA Z
PUSTAKÓW BETONOWYCH
300
100
38
650
25
397
podciąg wg proj.
konstrukcyjnego
90
38
oznaczenia drzwi :
-0,60
200
Polistyrenowe wyoblenie
Polistyrenowe wyoblenie
Polistyrenowe wyoblenie
oznaczenia okien:
-3,40
30
30
wylewka zbrojona siatką - grub.10 cm
płyta żelbetowa grub. 60 cm - wg proj. konstrukcyjnego
jastrych ochronny - 5 cm
2 warstwy folii PE
Superflex®100- masa bitumiczna z wtopioną pośrodku
tkaniną z włókna szklanego prod. DEITERMAN
gruntowanie materiałem Eurolan®3K prod.DEITERMAN
beton B25 - grub. 10 cm
piasek ubijany warstwami 10-25cm
wylewka zbrojona siatką grub.10 cm zatarta na gładko
papa termozgrzewalna
płyta żelbetowa grub.60 cm - wg proj. konstrukcyjnego
jastrych ochronny - 5 cm
2 warstwy folii PE
Superflex®100- masa bitumiczna z wtopioną pośrodku
tkaniną z włókna szklanego prod.DEITERMAN
gruntowanie materiałem Eurolan®3K prod.DEITERMAN
beton B25 - grub. 10 cm
piasek ubijany warstwami 10-25cm
1 0865
438
A
B
B'
szerokość otworu mierzona w świetle muru
wysokość otworu mierzona w świetle muru
15
BUDYNEK A
wylewka zbrojona siatką grub.10 cm zatarta na gładko
papa termozgrzewalna
płyta żelbetowa grub.60 cm - wg proj. konstrukcyjnego
jastrych ochronny - 5 cm
2 warstwy folii PE
Superflex®100- masa bitumiczna z wtopioną pośrodku
tkaniną z włókna szklanego prod.DEITERMAN
gruntowanie materiałem Eurolan®3K prod.DEITERMAN
beton B25 - grub. 10 cm
piasek ubijany warstwami 10-25cm
1135
100
200
BUDYNEK B
15
wysokość otworu mierzona od poziomu podłogi
gotowej do wysokości nadproża
10
Polistyrenowe wyoblenie
szerokość otworu mierzona w świetle muru
25 8
-2,70
-2,80
100
200
hp=90
KABLOWNIA 220 kV
otwór 90x130 cm
spód -2,70m
wg proj. konstrukcyjnego
RZĘDNA STANU WYKOŃCZONEGO
droga
hp=90
DEITERMANN
Eurolan
-1,05
RZĘDNA STANU SUROWEGO
-0,20 = 34,65 m n.p.w.
6
15 10 8
otwór w płycie żelbetowej
60x30cm
wg proj. konstrukcyjnego
IZOLACJA PRZECIWWILGOCIOWA
D
nadproże wg proj.
konstrukcyjnego
117
-0,28
-0,70
otwór 50x20 cm
oś na poz.-0,70m
2%
-0,45
IZOLACJA TERMICZNA
2
38
-0,63
20
-0,23
-0,15
PRZEJŚCIA PRZEWODÓW I
PRZEBICIA W ŚCIANACH
210
247
8
±0,00=34,85 m n.p.w.
-0,03
130
±0,00=34,85 m n.p.w.
3
wylewka grub. 3 cm
płyta żelbetowa grub.20 cm
20
3
wylewka grub. 3 cm
płyta żelbetowa grub.20 cm
podciąg wg proj.
konstrukcyjnego
warstwa osłaniająca z folii kubełkowej
Styrofoam IB prod. Dow - grub. 8 cm
Superflex®100- masa bitumiczna z wtopioną pośrodku
tkaniną z włókna szklanego prod. DEITERMAN
gruntowanie materiałem Eurolan®3K prod.DEITERMAN
ściana żelbetowa grub. 38 cm
kostka betonowa grub. 8 cm - kolor szary
kruszywo ze spadkiem 10-15 cm
folia PVC
geowłóknina
izolacja termiczna - płyty Floormate 500 grub. 6 cm
2 x papa
strop grub. 15 cm wg proj. konstrukcyjnego
szyny jezdne
wg proj. konstrukcyjnego
bloczki betonowe TeknoAmerBlok
Styrofoam IB prod. Dow - grub. 8 cm
Superflex®100- masa bitumiczna z wtopioną pośrodku
tkaniną z włókna szklanego prod. DEITERMAN
gruntowanie materiałem Eurolan®3K prod.DEITERMAN
ściana konstrukcyjna grub. 38 cm wg proj. konstr.
2 % -0,15
Biuro Architektoniczne
PLEWA
Al. Racławickie 6/8 20-028 Lublin
2315
C
C'
Obiekt:
Stacja elektroenergetyczna
220/110/15 kV
ul.Towarowa,Warszawa
Zleceniodawca:
KARENT S.C.
Stadium:
20 - 570 Lublin ul.Szmaragdowa 1
Branża:
ARCHITEKTURA
Projektant:
mgr inż. arch. Mariusz Plewa
nr upr. bud. 46/98 UW Kraków
w specjalności architektonicznej
mgr inż. arch. Marta Plewa
nr upr. bud. Rz/A-05/05
w specjalności architektonicznej
Opracował:
PROJEKT BUDOWLANY
Rysunek:
Przekrój F-F
podpis:
data:
11.2012
skala:
nr rys.:
1:100
10