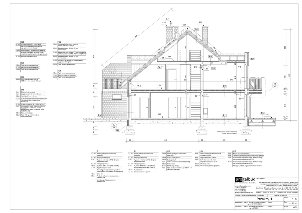
Przekrój poprzeczny.

Transkrypt

Przekrój poprzeczny.
9.47
9.06
9.06
8.74
D1
6
87
265
S5
B10
S4
4.86
1
C
S4
3.41
945
W-1
897
B
1
2.80
P2
85
14 30
D1
B4
A-9
2.37
B6
P4
0.00
-0.02
23 17
P1
80
P5
213
210
237
B7
1
A
40 10 30
Wełna mineralna, λD ≤ 0,035 [W/mK]
Konstrukcja z profili stalowych CD pod
płyty gipsowo kartonowe, wraz z
wypełnieniem wełną mineralną, λD ≤
0,035 [W/mK]
0,3 mm Folia paroizolacyjna
2,5 cm Płyta GKF gr. 12,5mm x 2 na
ruszcie stalowym
173
14 40 15
46
4,5 cm Płyta gipsowo kartonowa gr.
12,5mm x 2 na ruszcie stalowym
223
Bloczki wapienno-piaskowe
1,5 cm Tynk cementowo-wapienny
250
12 cm
16 cm
3 cm
W-1
S3
A-10
1,5 cm Tynk cementowo-wapienny
Dachówka ceramiczna
Łaty drewniane 40 mm x 50 mm
Kontrłaty 32 mm x 50 mm
Wiatroizolacja wysokoparoprzepuszczalna
Konstrukcja dachu wg projektu
konstrukcji
25
1,5 cm Tynk cementowo-wapienny
Bloczki wapienno-piaskowe
1,5 cm Tynk cementowo-wapienny
2 cm
4 cm
3,2 cm
0,2 mm
-
P3
S2
Mur z bloczków z betonu komórkowego
o gęstosci 600 kg/m3
24 cm
S5
28
5.64
243
S3
1,5 cm Tynk cementowo-wapienny
Elewacyjna płyta "Infatec P", lub równoważna.
(płyta styropianowa EPS, λD ≤ 0,033 [W/mK])
0,5 cm Zaprawa klejąca "Infatec K", lub
równoważna
24 cm
39
°
18 30
Beton B20 wodoszczelny
12 cm
°
39
233
24 cm
0,5 cm Zaprawa klejąca "Infatec K", lub
równoważna
34
0,5 cm Hydroizolacja - papa termozgrzewalna
Podkład gruntujący: asfaltowy roztwór
modyfikowany kauczukiem do gruntowania
1,5 cm Kształtka klinkierowa w systemie
Infatec, lub równoważnym
533
Styropian XPS λD ≤ 0,035 W/mK
Klej poliuretanowy do mocowania
styropianu na hydroizolacji
355
S2
S1
10 cm
A-8
S1
Podbudowa żwirowo-piaskowa
do poz. gruntu nośnego
60
P1
649
P2
60
P3
1,5 cm Panele podłogowe laminowane
klasa AC4
1,5 cm Panele podłogowe laminowane
klasa AC4
3 cm
Deskowanie z desek komorowych
ryflowanych WPC
0,5 cm Pianka polietylenowa
5 cm
Wylewka cementowa M12, zbrojona
przeciwskurczowo
0,5 cm Pianka polietylenowa
5 cm
Wylewka cementowa M12, zbrojona
przeciwskurczowo
8 cm
10cm
Legary drewniane 8x8cm
0,2 mm Folia polietylenowa
10 cm Styropian XPS, λD ≤ 0,036 [W/mK]
4 mm Papa termozgrzewalna
Podkład gruntujący: asfaltowy roztwór
modyfikowany kauczukiem do gruntowania
0,2 mm Folia polietylenowa
5 cm
Styropian EPS λD ≤ 0,037 [W/mK]
wytrzymałość na zginanie >50kPa
0,5 cm
2,5 cm
2 cm
3,2 cm
20 cm
4 cm
10 cm
30 cm
16 cm Płyta żelbetowa
1,5 cm Tynk cementowo-wapienny
Suchy jastrych
Wełna mineralna λD ≤ 0,039 [W/mK]
Deskowanie
Konstrukcja stropu
Płyta gipsowo kartonowa gr.12,5mm x 1
na ruszcie stalowym
60
P4
1,5 cm Panele podłogowe laminowane
klasa AC4
Pianka polietylenowa
375
30 cm
20 cm
Belki drewniane 10x10cm
Stopa fundamentowa ST-3
Warstwa żwiru
Warstwa zagęszczonego piasku
P5
8 cm
3 cm
5 cm
Kostka brukowa betonowa
Zaprawa cementowo piaskowa1:4 (wyrób gotowy)
Warstwa z kruszywa łamanego stabilizowanego
mechanicznie o uziarnieniu 0/31.5
20 cm
Warstwa z kruszywa łamanego stabilizowanego
mechanicznie o uziarnieniu 0/63
Istniejące podłoże zagęszczone mechanicznie
Beton B10
Podbudowa tłuczniowa zagęszczana
mechanicznie
Tytuł projektu
Istniejące podłoże zagęszcone
mechanicznie
ul. Unii Europejskiej 10/31
32-600 Oświęcim
tel. 33 876 28 31
www.progalbud.pl
email: [email protected]
Budowa budynków mieszkalnych jednorodzinnych w zabudowie
szeregowej wraz z instalacjami wewnętrznymi, infrastrukturą
towarzyszącą oraz budową indywidualnych zjazdów.
Lokalizacja Oświęcim ul. Malczewskiego dz. nr 729, 730, 731, 732,
733, 734, 735, 736, 737, 289/177, 289/151, 289/152
Inwestor
OTBS Sp. z o.o. ul. 11 Listopada 16C 32-600 Oświęcim
Stadium: Projekt architektoniczno - budowlany
Przekrój 1
Branża: Architektura
Skala
Projektował: mgr inż. arch Krzysztof Rudzielewicz
up. nr MPOIA/012/2009
Podpis:
Data
Sprawdził:
Podpis:
Nr rys.
mgr inż. arch Adam Wanatowicz
up. nr 273/82
1 : 50
11.2014r
A-5