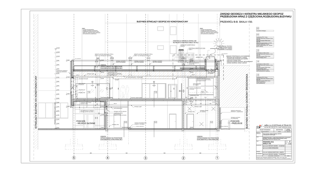
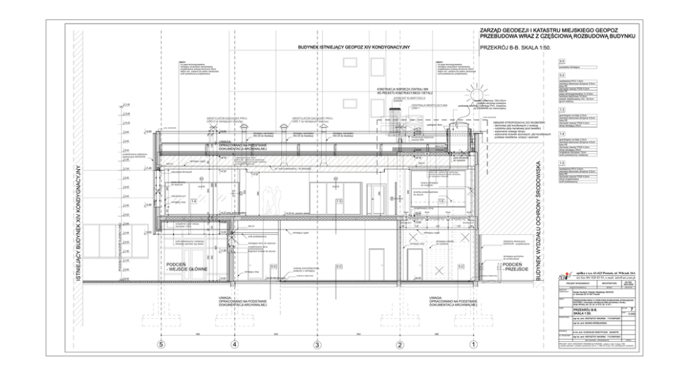
44 PW_rys_7 przekroj BB

Transkrypt

44 PW_rys_7 przekroj BB
ZARZĄD GEODEZJI I KATASTRU MIEJSKIEGO GEOPOZ
PRZEBUDOWA WRAZ Z CZĘŚCIOWĄ ROZBUDOWĄ BUDYNKU
PRZEKRÓJ B-B. SKALA 1:50.
BUDYNEK ISTNIEJĄCY GEOPOZ XIV KONDYGNACYJNY
DACH
- 2x papa termozgrzewalna
- istniejący stropodach wentylowany
- projektowana izolacja termiczna 30cm
wełna min. szklana lub wełna celulozowa
- sufit podwieszony projektowany
0.0
DACH
- 2x papa termozgrzewalna
- istniejący stropodach wentylowany
- projektowana izolacja termiczna 30cm
wełna min. szklana lub wełna celulozowa
- sufit podwieszony projektowany
posadzka istniejąca
0.2
wykładzina PCV 1,0cm
warstwa betonowa zbrojona 5,0cm
folia PE
styropian twardy FS30 4,0cm
folia PE
papa termozgrzewalna 1x 0,5cm
warstwa betonowa 12,0cm
piasek stabilizowany min. 30,0cm
grunt rodzimy
KONSTRUKCJA WSPORCZA CENTRALI WM
WG PROJEKTU KONSTRUKCYJNEGO I DETALU
AGREGAT KLIMATYZACJI
DAIKIN
+11.40
świetlik systemowy 120x120cm
kopułka akrylowa podwójna
podstawa świetlika z twardego PVC, ocieplona
np ESSMANN lub równorzędny
CENTRALA WENTYLACYJNA
LNW-1
1.3
+10.80
+10.20
nowe opierzenie
WENTYLATOR DACHOWY PROJ.
LWD-1 (w istniejacym otworze)
proj. opierzenie
wiązar kratowy
wiązar kratowy
162
144
144
konstrukcja wsporcza
centrali WM
HEA120
+8.40
IPE240
płyta kanałowa
do rozbiórki
+8.16
NS-01
+7.20
ist. sufit podwieszony - do likwidacji
izolacja termiczna 30cm
wełna min. szklana lub celulozowa
sposób rozwiązania będzie określony
po wykonaniu odkrywki
+7.27
zabudowa fermacell
+7.07
389
300
280
280
300
S1
h=215
300
istniejący słup
1.3
1.4
ścianka podparapetowa
do skucia
h=215
EI60
+4.80
ściana istniejąca
do rozbiórki
h=215
zabudowa g-k
+5.40
+4.80
h=215
240
+6.00
S5
389
S2
otwór okienny
do wykucia
S8
+6.60
1.5
+3.00
34
+3.93
IPE240
+4.27
+4.17
WYLEWKA BZ-01
NS-01
93
81
ocieplenie rygli i stropu
styropian 12cm
IPE240
+4,23-ist. poziom pietra
PŁYTA ŻELBET. PZ-01
12
24
+4.20
+3.60
+4.27 proj. poziom pietra
10
53
projektowany strop
+3.00
40
+3.00
IPE240
IPE240
PŁYTA ŻELBET. PZ-01
PŁYTA ŻELBET. PZ-01
137
137
+3.93
WYLEWKA BZ-01
137
istniejący rygiel
29
istniejący rygiel
sufit podwieszony
sufit podwieszony metalowy
listwowy (panele) wg detalu
istniejące okno do wykucia
429
+2.40
+1.20
okładzina elewacyjna
KERAION - projektowana
istniejące schody
do rozbiórki
projektowane okno
+1.80
fragment ścianki do skucia
istniejąca pochylnia
do przebudowy
PODCIEŃ
- WEJŚCIE GŁÓWNE
+0.60
istniejący słup
302
+1.80
302
PODZIAŁY OKŁADZINY ELEWACYJNEJ
ISTNIEJĄCY BUDYNEK XIV KONDYGNACYJNY
istniejący wentylator
WD-25 do likwidacji
izolacja termiczna 30cm
wełna min. szklana lub celulozowa
sposób rozwiązania będzie określony
po wykonaniu odkrywki
89
istniejący rygiel
NS-01
+7.20
UWAGA:
OPRACOWANO NA PODSTAWIE
DOKUMENTACJI ARCHIWALNEJ
+8.16
+7.80
istniejący wentylator
WD-25 do likwidacji
wiązar kratowy
projektowana okładzina
elewacyjna KERAION
wiązar kratowy
wiązar kratowy
+9.00
+8.40
istniejący wentylator
WD-25 do likwidacji
+9.78
+9.60
+9.45
wiązar kratowy
+9.60
18
+9.60
18
+9.60
OBSZAR STROPODACHU DO ROZBIÓRKI
- demontaż płyt korytkowych z izolacją
- rozbiórka płyty kanałowej (pod świetliki)
- wykonanie nowego stropu
- wykonanie ścianek ażurowych, płyt korytkowych
podstaw świetlików, izolacji i opierzeń
polistyren 8cm
0.0
istniejący słup
izolację przeciwilgociową
połączyć z istniejącą
0.2
PODCIEŃ
- PRZEJŚCIE
0.2
izolacja p.wilgociowa
±0.00=89,85mnpm
-0.02
±0.00
izolacja p.wilgociowa
±0.00
BUDYNEK WYDZIAŁU OCHRONY ŚRODOWISKA
WENTYLATOR DACHOWY PROJ.
LWD-2 (w istniejacym otworze)
granitogres na kleju 2,0cm
warstwa betonowa zbrojona 4,0cm
folia PE
styropian twardy FS30 4,0cm
strop istniejący 24cm
1.4
granitogres na kleju 2,0cm
warstwa betonowa zbrojona 4,0cm
folia PE
styropian twardy FS30 4,0cm
strop istniejący 24cm
ocieplenie styropian 12cm
sufit podwieszony metalowy
1.5
wykladzina PCV 2,0cm
warstwa betonowa zbrojona 5,0cm
folia PE
styropian twardy FS30 4,0cm
strop projektowany
sufit podwieszony
a
ur
kt
ite
ch
ar acje
iz je
l
a
re tyc
es
nw
i
PROJEKT WYKONAWCZY
ARCHITEKTURA
ZG-FBZ.
3420-35/08
STADIUM DOKUMENTACJI
BRANŻA
UMOWA NR
INWESTOR:
ZAMAWIAJĄCY:
UWAGA:
OPRACOWANO NA PODSTAWIE
DOKUMENTACJI ARCHIWALNEJ
UWAGA:
OPRACOWANO NA PODSTAWIE
DOKUMENTACJI ARCHIWALNEJ
spółka z o.o. 61-623 Poznań, ul. Wilczak 16A
tel./fax 061 820 85 93, e-mail: [email protected]
OBIEKT:
TEMAT:
PROJEKTOWAŁ:
Zarząd Geodezji i Katastru Miejskiego GEOPOZ
ul. Gronowa 20, 61-827 Poznań
PRZEBUDOWA WRAZ Z CZĘŚCIOWĄ ROZBUDOWĄ ISTNIEJĄCEGO
BUDYNKU ( dobudowa zewnętrznej klatki schodowej z windą )
obręb Winiary, ark. 23, dz. nr 5/12, dz. nr 5/11
PRZEKRÓJ B-B.
SKALA 1:50.
RYS NR:
DATA:
7
12.2008.
mgr inż. arch. KRZYSZTOF SIKORSKI 7131/50/P/2001
mgr inż. arch. MONIKA WRÓBLEWSKA
SPRAWDZIŁ:
480
5
540
4
540
3
480
2
GŁ. PROJEKTANT:
1
dr inż. arch. EUGENIUSZ SKRZYPCZAK 244/84/PW
mgr inż. arch. KRZYSZTOF SIKORSKI 7131/50/P/2001
IMIĘ I NAZWISKO - UPRAWNIENIA NR
PODPIS
PROJEKT JEST CHRONIONY PRAWEM AUTORSKIM - ustawa z dnia 4 lutego 1994
o prawie autorskim i prawach pokrewnych (Dz.U. z 1994 Nr 24 poz. 83 z późniejszymi zmianami)