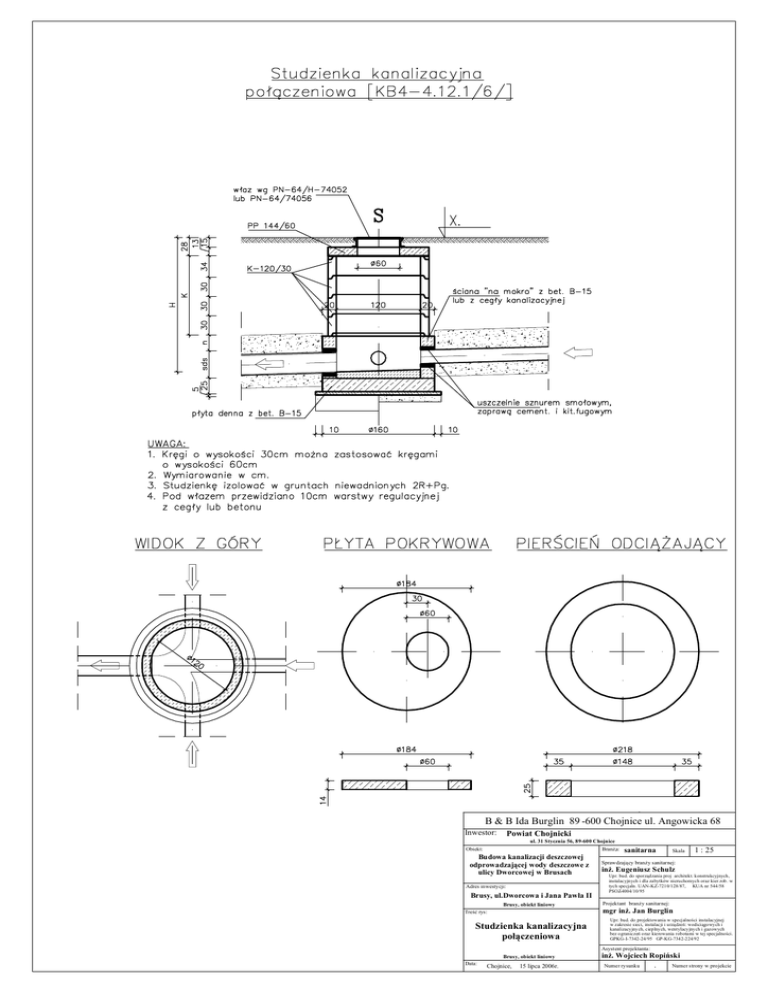
Zał. nr 7 - Studzienka kanalizacyjna

Transkrypt

Zał. nr 7 - Studzienka kanalizacyjna
B & B Ida Burglin 89 -600 Chojnice ul. Angowicka 68
Inwestor:
Powiat Chojnicki
ul. 31 Stycznia 56, 89-600 Chojnice
Obiekt:
Branża:
Budowa kanalizacji deszczowej
odprowadzającej wody deszczowe z
ulicy Dworcowej w Brusach
Adres inwestycji:
Brusy, ul.Dworcowa i Jana Pawła II
Brusy, obiekt liniowy
sanitarna
Skala
1 : 25
Sprawdzający branży sanitarnej:
inż. Eugeniusz Schulz
Upr. bud. do sporządzania proj architekt. konstrukcyjnych,
instalacyjnych i dla zabytków nieruchomych oraz kier.rob. w
tych specjaln. UAN-KZ-7210/128/87, KUA nr 544/58
PSOZ-4004/10/95
Projektant branży sanitarnej:
mgr inż. Jan Burglin
Treść rys:
Studzienka kanalizacyjna
połączeniowa
Upr. bud. do projektowania w specjalności instalacyjnej
w zakresie sieci, instalacji i urządzeń: wodiciągowych i
kanalizacyjnych, cieplnych, wentylacyjnych i gazowych
bez ograniczeń oraz kierowania robotami w tej specjalności.
GPKG-I-7342-24/95 GP-KG-7342-224/92
Asystent projektanta:
Brusy, obiekt liniowy
Data:
Chojnice,
15 lipca 2006r.
inż. Wojciech Ropiński
Numer rysunku
.
Numer strony w projekcie