POZIOM 0 POZIOM -1

Transkrypt

POZIOM 0 POZIOM -1
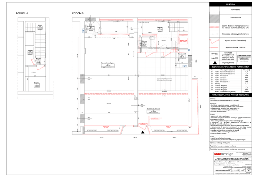
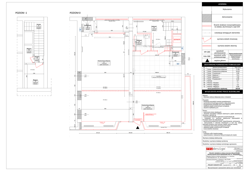
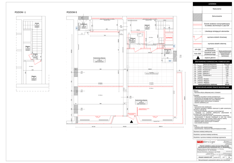
LEGENDA
Wyburzenia
POZIOM -1
POZIOM 0
45
Zamurowania
wnęka okienna wys.85cm x szer.597cm
hparapet 250cm
20
218,2
90
210
Zaplecze1
04
13,4 m2
lastryko
424
Ścianki działowe nowoprojektowane
na stelażu aluminiowym z płyt G/K
102
145
160
140
130
210
15
55
Likwidacja istniejących elementów
374
HP=393cm
41
SE
wymiana stolarki okiennej
HP=285
Przedsionek2
06
2,95 m2
lastryko
67
430,26
597,38
Hsk=368
194
10
135
210
90
70
Korytarz
08
1,1 m2
lastryko
123
wymiana stolarki drzwiowej
SERWER
212,39
177,26
159,99
Zaplecze2
05
1,82 m2
lastryko
wys. ścianki działowej 268cm
Magazyn
09
2,2 m2
lastryko
105
175,36
186,54
Przedsionek1
03
2,08 m2
lastryko
33
SE
Schody
07
6,7 m2
lastryko
demontaż skrzynki
elektrycznej
wnęka okienna wys.85cm x szer.400cm
hparapet 250cm
149
Powierzchnia sklepowa
01
71,85 m2
plytki ceramiczne
BE
43
Nr.
01
02
03
04
05
06
07
08
09
10
70
Hsk=368cm
- likwidacja sufitu podwieszanego
128
Magazyn
10
6,95 m2
lastryko
HP=378cm
HP=389cm
HP=378cm
HP=389cm
110
210
110
Pow. [m2]
71,85
54,04
2,08
13,4
1,82
2,95
6,7
1,1
2,2
6,95
293,95
Nazwa pomieszczenia
Parter - Powierzchnia sklepowa
Parter - Powierzchnia sklepowa
Parter - Przedsionek 1
Parter - Zaplecze 1
Parter - Zaplecze 2
Parter - Przedsionek 2
Schody
Piwnica - Korytarz
Piwnica - Magazyn
Piwnica - Magazyn
Suma powierzchni użytkowej
WYSZCZEGÓLNIONE PRACE BUDOWLANE
HP=285cm
Witryna:
- Wymiana witryny sklepowej wraz z drzwiami
51
584
Powierzchnia sklepowa
02
54,04 m2
plytki ceramiczne
51
169
109
210
140
210
669,59
125
140
HP=285cm
nowoprojektowana ścianka
działowa przeszklona
Kurtyna powietrzna
nad drzwiam
42
109
Numer pomieszczenia
Powierzchnia [m2]
Rodzaj posadzki
demontowanej
ZESTAWIENIE POWIERZCHNI POMIESZCZEŃ
596,85
552
113
210
113
292
584
507,77
51
Nazwa pomieszczenia
wejście główne
HP=238cm
238
wysokość
pomieszczenia
wysokość sufitu
podwieszanego
Parapet - stół
h= 75cm
85,49
Parapet - stół
h= 75cm
45
hparapet 74cm
457,29
340,28
585,18
Posadzki:
- likwidacja wszystkich warstw posadzkowych
- wyrównanie do jednego poziomu calej powierzchni
- przygotowanie posadzki pod nowe okładziny
- układanie płytek ceramicznych w toalecie,
- ułozenie wykładziny pvc
Ściany:
- wyburzenie ścian działowych
- zerwanie wszystkich okładzin ściennych tj płytki ceramiczne,
obudowy z płyt g/k itp.
- nowe ściany działowe wykonane w technologii g/k
- instalacjie c.o., wod-kan, elektryczne, poprowadzić w
bruzdach ścian lub zabudowa g/k
- wyrównanie powierzchni ścian, szpachlowanie, tynkowanie,
- zamurowanie 5 otworów drzwiowych w tym trzy otwory
wewnątrz budynku oraz przerwy między witryną i ścianą
- malowanie ścian farbą emulsyjną do wnętrz
- układanie płytek ceramicznych w toalecie
- nowa stolarka drzwiowa
Sufity:
- rozbiórka sufitu kasetonowego
- szpachlowanie, malowanie farbą emulsyjną do wnętrz
Wymiana instalacji elektrycznej
Rozbiórka i wymiana instalacji sanitarnej
Rozbiórka i wymiana instalacji centralnego ogrzewania
JEDNOSTKA ODPOWIEDZIALNA ZA OPRACOWANIE
REA Design
sp. z o.o.
ul.Ogrodowa 5a, 55-093 Kiełczów
tel. 501 874787, 501 87 4747
[email protected]
TEMAT OPRACOWANIA
PROJEKT ARANŻACJI LOKALU NA CELE BIBLIOTECZNE
ZNAJDUJĄCEGO SIĘ W WARSZAWIE PRZY UL. BROWARNEJ 4
INWESTOR
Biblioteka Publiczna w Dzielnicy Śródmieście m. st. Warszawy,
ul. Marszałkowska 9/15, 00 - 626 Warszawa
ADRES INWESTYCJI
Warszawa Śródmieście, ul. Browarna 4, rejon Powiśle
PROJEKTANT WNĘTRZ
PROJEKTANT ARCHITEKTURY
AGNIESZKA OPIELA mgr inż. arch. ANNA JAWOROWSKA-SWARBUŁA
upr. nr 175/00/DUW
STADIUM
PROJEKT KONCEPCYJNY
DATA
grudzień 2013
SKALA
1:50
NR. RYSUNKU
02
NAZWA RYSUNKU
Rzut pomieszczeń z zaznaczeniem zakresu prac remontowych