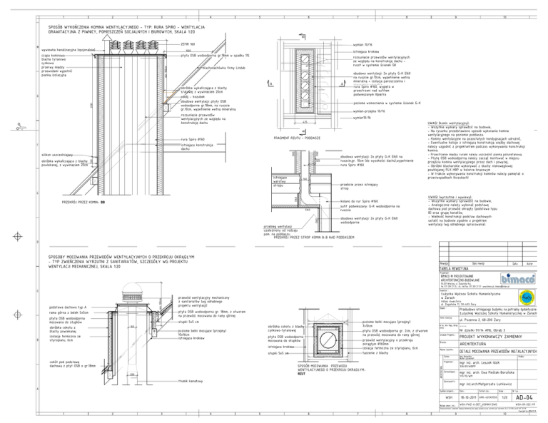
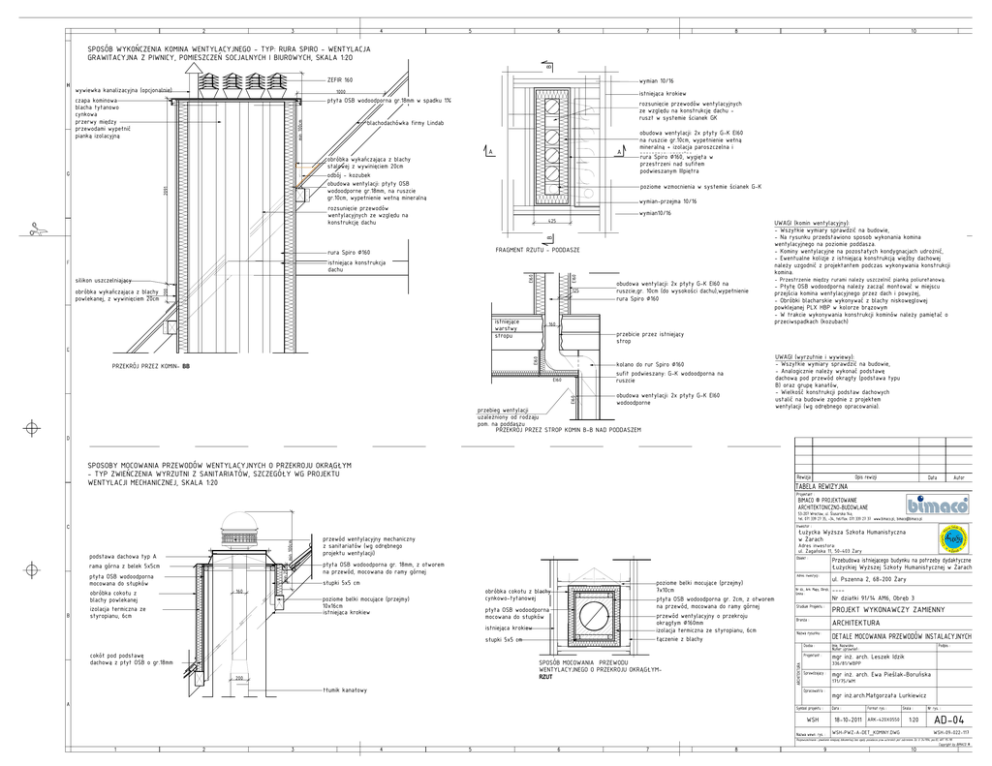
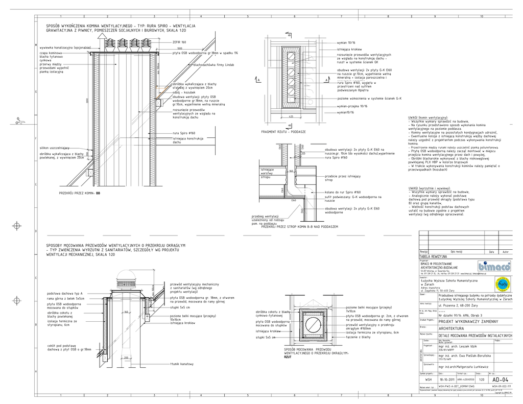
Ad-04 WSH-PWZ-A-DET-KOMIN

Transkrypt

Ad-04 WSH-PWZ-A-DET-KOMIN
B
ZEFIR 160
wywiewka kanalizacyjna (opcjonalnie)
czapa kominowa
blacha tytanowo
cynkowa
wymian 10/16
min 100cm
1000
2091
A
A
paroprzepuszczalna
przestrzeni nad sufitem
wodoodporne gr.18mm, na ruszcie
wymian-przejma 10/16
425
UWAGI (komin wentylacyjny):
B
wymian10/16
- Na rysunku przedstawiono sposob wykonania komina
wentylacyjnego na poziomie poddasza.
FRAGMENT RZUTU - PODDASZE
dachu
200
EI60
EI60
komina.
125
przeciwspadkach (kozubach)
160
warstwy
stropu
strop
EI60
UWAGI (wyrzutnie i wywiewy):
BB
sufit podwieszany: G-K wodoodporna na
ruszcie
EI60
EI60
wodoodporne
przebieg wentylacji
pom. na poddaszu
min 100cm
WENTYLACJI MECHANICZNEJ, SKALA 1:20
min.20cm
podstawa dachowa typ A
Adres inwestora:
projektu wentylacji)
----
7x10cm
160
cynkowo-tytanowej
blachy powlekanej
izolacja termiczna ze
styropianu, 6cm
10x16cm
PROJEKT WYKONAWCZY ZAMIENNY
ARCHITEKTURA
izolacja termiczna ze styropianu, 6cm
336/81/WBPP
200
RZUT
171/75/WM
WSH
18-10-2011 ARK-420X0550
WSH-PWZ-A-DET_KOMINY.DWG
1:20
AD-04
WSH-09-022-117