KLATKA C POZIOM 7

Transkrypt

KLATKA C POZIOM 7
5
6
B
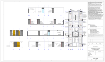
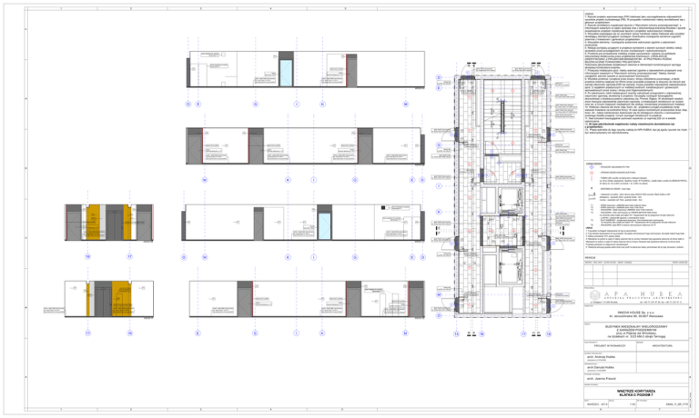
płytki 30x60 ciemnoszare
np. Nowa Gala CN14 natural
taśma led w profilu
fugi dopasowane do fug posadzki
D
taśma led
w profilu (na suficie)
WIDOK AA
T4
E
90
200
cokół - płytki 8x60 ciemnoszare
np. Nowa Gala C-P-CN14
fugi dopasowane do fug posadzki
D1
T4
xx
T4
T4
numer mieszkania
malowany na suficie
taśma led
w profilu (na suficie)
xx
118
cokół - płytki 8x60 ciemnoszare
np. Nowa Gala C-P-CN14
D1
118
drzwi
laminat identyczny z T4
płytki 30x60 ciemnoszare
np. Nowa Gala CN14 natural
90
200
drzwi
kolor RAL 7043
63
T4
63
drzwi rewizyjne do szachtu
otynkowane T1
D
T4
C
T4
A
drzwi rewizyjne do szachtu
otynkowane T1
numer mieszkania
malowany na suficie
M
płytki 30x60 białe ryflowane
np. Nowa Gala K-P-CN99 natural
9x16,61
28
płytki 30x60 ciemnoszare
np. Nowa Gala CN14 natural
T4
5
90
200
T1
taśma led w profilu
T1
numer mieszkania
malowany na suficie
taśma led
w profilu (na suficie)
drzwi
laminat identyczny z T4
drzwi
laminat identyczny z T4
drzwi
laminat identyczny z T4
cokół - płytki 8x60 ciemnoszare
np.Nowa Gala C-P-CN14
cokół - płytki 8x60 ciemnoszare
np.Nowa Gala C-P-CN14
cokół - płytki 8x60 ciemnoszare
np. Nowa Gala C-P-CN14
cokół - płytki 8x60 ciemnoszare
np. Nowa Gala C-P-CN14
fugi dopasowane do fug posadzki
fugi dopasowane do fug posadzki
fugi dopasowane do fug posadzki
fugi dopasowane do fug posadzki
63
xx
T4
63
G
T4
90
200
taśma led
w profilu (na suficie)
242
taśma led w profilu
xx
numer mieszkania
malowany na suficie
UWAGI:
1. Rysunki projektu wykonawczego (PW) traktować jako uszczegółowienie odpowiednich
rysunków projektu budowlanego (PB). W przypadku rozbieżności należy skontaktować się z
głównym projektantem.
2. Rysunki architektury rozpatrywać łącznie z "Warunkami ochrony przeciwpożarowej", z
informacjami zawartymi w części opisowej oraz z dokumentacją branżową Rozstaw i sposób
posadowienia urządzeń rozpatrywać łącznie z projektem wykonawczym instalacji.
3. Wszystkie pojawiające się na rysunkach nazwy handlowe należy traktować jako przykład
określający standard przyjętych rozwiązań. Ewentualne rozwiązania zamienne uzgodnić
pisemnie z Inwestorem i generalnym projektantem.
4. Wszystkie elementy i rozwiązania systemowe wykonywać zgodnie z zaleceniami
producenta.
5. Relacje pomiędzy przyjętymi w projekcie wymiarami a stanem surowym obiektu należy
sprawdzić przed przystąpieniem do prac montażowych i wykończeniowych.
6. Przebicia pod prowadzenie instalacji zostały wyrysowane i opisane na podstawie
dokumentacji dostarczonej przez projektantów branżowych. LOKALIZACJE
ZWERYFIKOWAĆ Z PROJEKTAMI BRANŻOWYMI - W PRZYPADKU RÓŻNIC
BEZZWŁOCZNIE POWIADOMIĆ PROJEKTANTA.
Wykonanie jakichkolwiek dodatkowych otworów w elementach konstrukcyjnych wymaga
akceptacji konstruktora budynku.
7. Przepusty instalacyjne ppoż. należy wykonać zgodnie z odpowiednimi przepisami oraz
informacjami zawartymi w "Warunkach ochrony przeciwpożarowej". Należy również
uwzględnić warunki zawarte w opracowaniach branżowych.
8. Wszelkie przebicia i przejścia przez ściany i stropy oddzielenia pozarowego, a także
przebicia średnicy większej niż 40mm przez pozostałe przegrody w stosunku do których jest
wymóg odporności ogniowej EI60 lub wyższej, muszą posiadać odpowiednie zabezpieczenie
ppoż. (z wyjątkiem pojedynczych rur instalacji wodnych, kanalizacyjnych i grzewczych,
wprowadzanych przez ściany i stropy pom.higienosanitarnych)
9. Po zakończeniu robót instalacyjnych szachty zabudować przegrodami o odpowiedniej
odporności ogniowej, określonej w projekcie. Szczegóły rozwiązań bezwzględnie
skonsultować z dostawcą systemu zabudowy (np. Promat, Rigips). W obudowach osadzić
drzwi rewizyjne odpowiedniej odporności ogniowej, w lokalizacjach określonych na rzutach
oraz ew. w innych miejscach niezbędnych dla obsługi i konserwacji prowadzonych instalacji.
10. Wielkości otworów dla drzwi, klap, bram, itd., projektanci przyjęli przykładowo (brak
wskazań Inwestora na konkretne firmy). W razie wyboru konkretnych producentów drzwi, klap,
bram, itd., należy każdorazowo dostosować się do istniejących otworów z zachowaniem
podanego światła przejścia i innych wymagań określonych w projekcie.
11. Nad schodami bezwzględnie zachować wysokość co najmniej 225 cm w świetle
wykończenia.
12. W razie jakichkolwiek wątpliwości należy niezwłocznie skontaktować się
z projektantem.
13. Prawa autorskie do tego rysunku należą do APA HUBKA, bez jej zgody rysunek nie może
być wykorzystywany lub reprodukowany.
płytki 30x60 białe
np. Nowa Gala CN99 natural
D2
90
200
T1
płytki 30x60 ciemnoszare
np. Nowa Gala CN14 natural
T4
T4
taśma led w profilu
płytki 30x30 ciemnoszare
np.Nowa Gala CN14 natural
5
25
T4
242
T4
D1
T4
5
płytki 30x60 białe ryflowane
np. Nowa Gala K-P-CN99 natural
D1
K
242
I
9x16,61
28
G
9x16,61
28
E
242
D
5 25
E
płytki 30x60 białe
np. Nowa Gala CN99 natural
płytki 30x60 białe
np. Nowa Gala CN99 natural
EI30
OZNACZENIA:
WIDOK BB
M
K
I
G
E
D
I
90
200
65
- OPRAWA OŚWIETLENIOWA SUFITOWA
242
EI30
90
200
D2
płytki 30x60 ciemnoszare
np. Nowa Gala CN14 natural
D2
EI30
piktogram
malowany na suficie
płytki 30x60 ciemnoszare
np. Nowa Gala CN14 natural
- TAŚMA LED w profilu na taśmę led z matowym kloszem
np. firmy LEDtec (dystrybutor: Spotline) model: IP FLEXROLL, światło białe w profilu ALUMINIUM PROFIL;
dł. taśmy ok. 3m (2,45m na ścianie + ok. 0,55m na suficie)
242
65
- DZWONEK DO DRZWI - kolor biały
xx
K
drzwi rewizyjne do szachtu
otynkowane T1
T1
T4
płytki 30x60 ciemnoszare
np. Nowa Gala CN14 natural
drzwi
kolor RAL 7043
E
E
cokół - płytki 8x60 ciemnoszare
np. Nowa Gala C-P-CN14
cokół - płytki 8x60 ciemnoszare
np. Nowa Gala C-P-CN14
fugi dopasowane do fug posadzki
fugi dopasowane do fug posadzki
fugi dopasowane do fug posadzki
F
C
cokół - płytki 8x60 ciemnoszare
np. Nowa Gala C-P-CN14
WIDOK EE
WIDOK CC
T4
90
200
O
M
K
I
G
E
D
xx
taśma led
w profilu (na suficie)
T3
M
taśma led w profilu
T1
T1
drzwi
laminat identyczny z T4
drzwi windy kolor RAL 7043
drzwi
laminat identyczny z T4
cokół - płytki 8x60 ciemnoszare
np. Nowa Gala C-P-CN14
cokół - płytki 8x60 ciemnoszare
np. Nowa Gala C-P-CN14
cokół - płytki 8x60 ciemnoszare
np. Nowa Gala C-P-CN14
cokół - płytki 8x60 ciemnoszare
np. Nowa Gala C-P-CN14
fugi dopasowane do fug posadzki
fugi dopasowane do fug posadzki
fugi dopasowane do fug posadzki
fugi dopasowane do fug posadzki
numer mieszkania
malowany na suficie
xx
taśma led w profilu
xx
63
T463
taśma led w profilu
drzwi
laminat identyczny z T4
90
200
T4
AUTOR /AUTHOR:
płytki 30x60 ciemnoszare
np. Nowa Gala CN14 natural
T4
WIDOK DD
PODPIS / SIGNATURE:
ul. Grottgera 7, 51-630 Wrocław
tel: +48 71/ 337 47 00, fax: +48 71/ 337 47 11
INWESTOR:
T4
INNOVA HOUSE Sp. z o.o.
Al. Jerozolimskie 94, 00-807 Warszawa
fugi dopasowane do fug posadzki
WIDOK FF
ZMIANY / CHANGES:
taśma led
w profilu (na suficie)
90
200
płytki 30x60 ciemnoszare
np. Nowa Gala CN14 natural
cokół - płytki 8x60 ciemnoszare
np. Nowa Gala C-P-CN14
DATA / DATE:
PRACOWNIA:
60
T1
numer mieszkania
malowany na suficie
D1
T3
REW/RAV:
75
taśma led
w profilu (na suficie)
lustro
T4
REWIZJE
T4
drzwi rewizyjne do szachtu
otynkowane T1
numer mieszkania
malowany na suficie
265
T4
90
200
60
T4
T1
drzwi rewizyjne
obudowane T3
płytki 30x60 ciemnoszare
np. Nowa Gala CN14 natural
T4
T3
T6
UWAGI:
1. Fugi płytek na biegach dopasowane do fug na spocznikach.
2. Fugi cokołów dopasowane do fug posadzki. Dla płytek ciemnoszarych fuga ciemnoszara, dla płytek białych fuga biała.
3. Należy przewidzieć 20% zapasu płytek.
4. Malowania na suficie w części A należy wykonać tak by numery mieszkań były poprawnie widoczne od strony klatki A.
Malowania na suficie w części B należy wykonać tak by numery mieszkań były poprawnie widoczne od strony wind.
Przykłady pokazane na załączonych wizualizacjach.
5. Okładzinę tworzącą opaskę wokół drzwi oraz profil na taśmę led należy zamontować tak by były zlicowane z tynkiem.
numer mieszkania
malowany na suficie
75
T1
T4
lustro
EI60
63
17
płytki 30x60 białe
np. Nowa Gala CN99 natural
T3
T4
16
F
63
płytki 30x60 ciemnoszare
np. Nowa Gala CN14 natural
T5
taśma led
w profilu (na suficie)
D1
drzwi
laminat identyczny z T4
T1
D1
T1
płytki 30x60 ciemnoszare
np. Nowa Gala CN14 natural
T3
- SPIEK kwarcowy- LAMINAM kolor biały Collecion Neve
- SPIEK kwarcowy- LAMINAM kolor szary Tredi Zinco
- OKŁADZINA - Spiek kwarcowy LAMINAM, kolor Tredi Carbonio
- OKŁADZINA - kolor ciemnoszary np.TRESPA METEON Slate Wood,
na narożniku płyty ścięte pod kątem 45° i dopasowane tak by połączenie nie było widoczne
- LUSTRO - podział tafli zgodnie z rozwinięciem ściany
- BLAT KAMIENNY - konglomerat kwarcowy, Gris Antracita kolor ciemnoszary
na narożniku płyty ścięte pod kątem 45° i dopasowane tak by połączenie nie było widoczne
- OKŁADZINA- płyta MDF w kolorze ciemnoszarym zbliżonym do T5
281
T1
T4
252
T4
drzwi windy kolor RAL 7043
lustro
106
taśma led w profilu
T3
106
T1
płytki 30x60 białe
np. Nowa Gala CN99 natural
EI60
265
lustro
T1
T2
T3
T4
- malowanie na suficie - kolor ciemno-szary NCS-S-7500 czcionka "Bank Gothic Lt Bt"
piktogramy - wysokość 30cm, grubość kreski - 3cm
numery - wysokość cyfr 10cm, grubość kreski - 3cm
B
T3
D1
T3
T4
242
T4
xx
T4
77
242
77
drzwi rewizyjne do szachtu
otynkowane T1
D
D
- POCZĄTEK UKŁADANIA PŁYTEK
piktogram
malowany na suficie
B
7
F
4
E
3
C
2
F
1
O
G
I
K
M
15
16
17
D
E
C
16
A
17
B
OBIEKT:
BUDYNEK MIESZKALNY WIELORODZINNY
Z GARAŻEM PODZIEMNYM
przy ul.Pięknej we Wrocławiu,
na działkach nr: 3/23 AM-2 obręb Tarnogaj
18
KLATKA C POZIOM 7
FAZA PROJEKTU:
BRANŻA:
ARCHITEKTURA
PROJEKT WYKONAWCZY
GŁÓWNY PROJEKTANT:
arch. Andrzej Hubka
uprawnienia nr 215/76/WWM
SPRAWDZAJĄCY:
arch.Danuta Hubka
uprawnienia nr 214/83/WBPP
A
A
RYSUNEK WYKONAŁ:
arch. Joanna Freund
WNĘTRZE KORYTARZA
KLATKA C POZIOM 7
DATA:
SKALA:
MARZEC 2014
1
2
3
4
5
6
NR RYSUNKU:
03045_11_DR_7170
1:50
7
03045_11_AR_7100.pln
NAZWA RYSUNKU: